Ferienhaus J6460 in Vibedalen 11, Houvig
Wenn ihr ein gemütliches Ferienhaus in Houvig sucht, in dem euer Hund ebenfalls herzlich willkommen ist, dann könnte das Ferienhaus im Vibedalen 11 in Houvig mit seinen 90 m2 eine gute Wahl für euch sein. Das Ferienhaus bietet euch genügend Platz, um mit bis zu 5 Personen Urlaub zu machen. Mit nur 400 Metern zum Strand und der Nordsee, habt ihr immer die Gelegenheit der Hektik des Alltags bei einem ausgiebigen Strandspaziergang zu entfliehen.
Ferienhaus mit Holzofen und energiesparender Luft-zu-Luft Wärmepumpe
Wenn ihr das Ferienhaus betretet, werdet ihr von einem großen Wohnraum begrüßt, der die Küche, das Wohnzimmer und den Essbereich miteinander verbindet. Der Wohnraum wird sicher zum Mittelpunkt für eure Urlaubsaktivitäten. Sei es beim gemeinsamen Kochen, bei lustigen Spieleabenden oder während ihr es euch auf dem Sofa mit eurer Lieblingsserie gemütlich macht. Hier findet jeder etwas, was ihm gefällt. An kalten und regnerischen Tage könnt ihr euch mit einem guten Buch und einem warmen Tee vor dem Holzofen setzen und dem Prasseln des Feuers lauschen. Für eine konstante und angenehme Wärme sorgt die energiesparende Luft-zu-Luft Wärmepumpe im Ferienhaus.
Abends könnt ihr euch nach einem Abendspaziergang in die 4 Schlafzimmer des Ferienhauses zurückziehen, um euch für einen neuen und erlebnisreichen Urlaubstag zu stärken. An die praktischen Dinge wie eine Waschmaschine und eine Geschirrspülmaschine wurden ebenfalls gedacht.
Naturgrundstück mit Schaukel und Sandkiste im Vibedalen 11
Das Ferienhaus im Vibedalen 11 in Houvig liegt auf einem ca. 1200 m2 großem Naturgrundstück und bietet somit eurem Hund und euren Kindern genügend Platz zum Erkunden. Für die Kleinen gibt es am Ferienhaus eine Sandkiste, in denen sie kleine Sandburgen bauen können, während die größeren Kinder sich auf der Schaukel austoben können. Ihr könnt es euch währenddessen auf der Terrasse mit einem Kaltgetränk gemütlich machen und die Sonne genießen. An einem lauen Sommerabend könnt ihr einen gelungenen Urlaubstag mit einem Grillabend ausklingen lassen. Unter der Außendusche könnt ihr von April-November eure Füße abspülen.
Vom Ferienhaus aus sind es nur ca. 400 Meter bis zum feinen Sandstrand und den tosenden Wellen der Nordsee. Der feine Sandstrand lädt euch zu ausgiebigen Spaziergängen ein, die auch euer Hund sicher toll finden wird. Die Nordsee ist zu jeder Jahreszeit einen Besuch wert, sodass ihr im Sommer die größten Sandburgen bauen könnt, während ihr im Herbst und Winter nach einem Sturm die Chance habt Bernstein zu finden.
Wenn ihr euch nach Aktivitäten und einem stetigen Treiben sehnt, dann ist der Ferienort Søndervig nur eine kurze Autofahrt entfernt. Hier findet ihr kleine Cafés, Restaurants und Supermärkte. Nachdem ihr die größten Sandburgen am Strand gebaut habt, könnt ihr euch die großen Kunstwerke aus Sand beim Sandskulpturenfestival ansehen.
Hausbilder
Ausstattung
Allgemeines
- Anzahl Haustiere maximal: 1
- Anzahl Personen: 5
- Anzahl Personen: 5
- Baujahr: 1965
- Grundstücksfläche: 1.200 m²
- Haustiere erlaubt
- Nichtraucher
- Renovierung: 2013
- Wohnfläche: 90 m²
Entfernungen
- Abstand Einkauf: 2.100 m
- Abstand Wasser: 400 m Nordsee
Wohnbereich
- Flachbildfernseher
- Kaminofen
Schlafbereich
- Anzahl Doppelbetten: 1
- Anzahl Einzelbetten: 3
- Anzahl Schlafzimmer: 4
Küche
- Geschirrspüler
- Herd Induktion mit Backofen
- Kühlschrank
- Mikrowelle
- Tiefkühler: 60 l
Bad
- Anzahl Badezimmer: 1
- Waschmaschine
Multimedia
- Internationales Fernsehen
- Internet
- Radio
Aussenbereich
- Gartenmöbel
- Grundstück Naturgrundstück
- Grill
- Liegestuhl
- Sandkiste
- Schaukel
- Sonnenschirm
- Terrasse: 1 offen
Sonstiges
-
Besonderheiten Abstellraum
iPod Dock - Fußbodenheizung Bad
- Hauswechseltag Samstag
- Kinderhochstuhl
- Wärmepumpe
Neben- und Verbrauchskosten
Die aktuellen Verbrauchskosten finden Sie im nächsten Schritt im Buchungsformular.
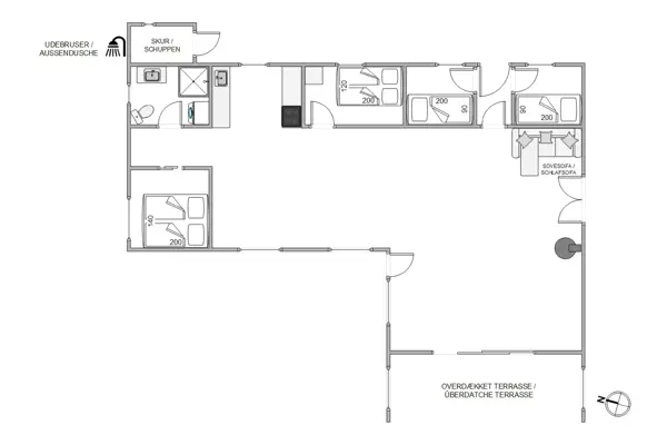
Raumaufteilung
Lageplan
Ferienhaus J6460
Vibedalen 11
Houvig
6950 Ringkøbing
Belegungskalender
- Reisedauer auswählen
- Anzahl Reisende auswählen
- Anreisetag im Belegungskalender anklicken
- Sie bekommen Verfügbarkeit und Preis angezeigt
| 2026 | 1 | 2 | 3 | 4 | 5 | 6 | 7 | 8 | 9 | 10 | 11 | 12 | 13 | 14 | 15 | 16 | 17 | 18 | 19 | 20 | 21 | 22 | 23 | 24 | 25 | 26 | 27 | 28 | 29 | 30 | 31 |
| Mai | F | S | S | M | D | M | D | F | S | S | M | D | M | D | F | S | S | M | D | M | D | F | S | S | M | D | M | D | F | S | S |
| Juni | M | D | M | D | F | S | S | M | D | M | D | F | S | S | M | D | M | D | F | S | S | M | D | M | D | F | S | S | M | D | |
| Juli | M | D | F | S | S | M | D | M | D | F | S | S | M | D | M | D | F | S | S | M | D | M | D | F | S | S | M | D | M | D | F |
| August | S | S | M | D | M | D | F | S | S | M | D | M | D | F | S | S | M | D | M | D | F | S | S | M | D | M | D | F | S | S | M |
| September | D | M | D | F | S | S | M | D | M | D | F | S | S | M | D | M | D | F | S | S | M | D | M | D | F | S | S | M | D | M | |
| Oktober | D | F | S | S | M | D | M | D | F | S | S | M | D | M | D | F | S | S | M | D | M | D | F | S | S | M | D | M | D | F | S |
| November | S | M | D | M | D | F | S | S | M | D | M | D | F | S | S | M | D | M | D | F | S | S | M | D | M | D | F | S | S | M | |
| Dezember | D | M | D | F | S | S | M | D | M | D | F | S | S | M | D | M | D | F | S | S | M | D | M | D | F | S | S | M | D | M | D |
| 2027 | 1 | 2 | 3 | 4 | 5 | 6 | 7 | 8 | 9 | 10 | 11 | 12 | 13 | 14 | 15 | 16 | 17 | 18 | 19 | 20 | 21 | 22 | 23 | 24 | 25 | 26 | 27 | 28 | 29 | 30 | 31 |
| Januar | F | S | S | M | D | M | D | F | S | S | M | D | M | D | F | S | S | M | D | M | D | F | S | S | M | D | M | D | F | S | S |
| Februar | M | D | M | D | F | S | S | M | D | M | D | F | S | S | M | D | M | D | F | S | S | M | D | M | D | F | S | S | |||
| März | M | D | M | D | F | S | S | M | D | M | D | F | S | S | M | D | M | D | F | S | S | M | D | M | D | F | S | S | M | D | M |
| April | D | F | S | S | M | D | M | D | F | S | S | M | D | M | D | F | S | S | M | D | M | D | F | S | S | M | D | M | D | F | |
| Mai | S | S | M | D | M | D | F | S | S | M | D | M | D | F | S | S | M | D | M | D | F | S | S | M | D | M | D | F | S | S | M |
| Juni | D | M | D | F | S | S | M | D | M | D | F | S | S | M | D | M | D | F | S | S | M | D | M | D | F | S | S | M | D | M | |
| Juli | D | F | S | S | M | D | M | D | F | S | S | M | D | M | D | F | S | S | M | D | M | D | F | S | S | M | D | M | D | F | S |
| August | S | M | D | M | D | F | S | S | M | D | M | D | F | S | S | M | D | M | D | F | S | S | M | D | M | D | F | S | S | M | D |
| September | M | D | F | S | S | M | D | M | D | F | S | S | M | D | M | D | F | S | S | M | D | M | D | F | S | S | M | D | M | D | |
| Oktober | F | S | S | M | D | M | D | F | S | S | M | D | M | D | F | S | S | M | D | M | D | F | S | S | M | D | M | D | F | S | S |
| November | M | D | M | D | F | S | S | M | D | M | D | F | S | S | M | D | M | D | F | S | S | M | D | M | D | F | S | S | M | D | |
| Dezember | M | D | F | S | S | M | D | M | D | F | S | S | M | D | M | D | F | S | S | M | D | M | D | F | S | S | M | D | M | D | F |
| 2028 | 1 | 2 | 3 | 4 | 5 | 6 | 7 | 8 | 9 | 10 | 11 | 12 | 13 | 14 | 15 | 16 | 17 | 18 | 19 | 20 | 21 | 22 | 23 | 24 | 25 | 26 | 27 | 28 | 29 | 30 | 31 |
| Januar | S | S | M | D | M | D | F | S | S | M | D | M | D | F | S | S | M | D | M | D | F | S | S | M | D | M | D | F | S | S | M |
| Februar | D | M | D | F | S | S | M | D | M | D | F | S | S | M | D | M | D | F | S | S | M | D | M | D | F | S | S | M | D | ||
| März | M | D | F | S | S | M | D | M | D | F | S | S | M | D | M | D | F | S | S | M | D | M | D | F | S | S | M | D | M | D | F |
| April | S | S | M | D | M | D | F | S | S | M | D | M | D | F | S | S | M | D | M | D | F | S | S | M | D | M | D | F | S | S | |
| Mai | M | D | M | D | F | S | S | M | D | M | D | F | S | S | M | D | M | D | F | S | S | M | D | M | D | F | S | S | M | D | M |
| Juni | D | F | S | S | M | D | M | D | F | S | S | M | D | M | D | F | S | S | M | D | M | D | F | S | S | M | D | M | D | F | |
| Juli | S | S | M | D | M | D | F | S | S | M | D | M | D | F | S | S | M | D | M | D | F | S | S | M | D | M | D | F | S | S | M |
| August | D | M | D | F | S | S | M | D | M | D | F | S | S | M | D | M | D | F | S | S | M | D | M | D | F | S | S | M | D | M | D |
| September | F | S | S | M | D | M | D | F | S | S | M | D | M | D | F | S | S | M | D | M | D | F | S | S | M | D | M | D | F | S | |
| Oktober | S | M | D | M | D | F | S | S | M | D | M | D | F | S | S | M | D | M | D | F | S | S | M | D | M | D | F | S | S | M | D |
| November | M | D | F | S | S | M | D | M | D | F | S | S | M | D | M | D | F | S | S | M | D | M | D | F | S | S | M | D | M | D | |
| Dezember | F | S | S | M | D | M | D | F | S | S | M | D | M | D | F | S | S | M | D | M | D | F | S | S | M | D | M | D | F | S | S |
| 2029 | 1 | 2 | 3 | 4 | 5 | 6 | 7 | 8 | 9 | 10 | 11 | 12 | 13 | 14 | 15 | 16 | 17 | 18 | 19 | 20 | 21 | 22 | 23 | 24 | 25 | 26 | 27 | 28 | 29 | 30 | 31 |
| Januar | M | D | M | D | F | S | S | M | D | M | D | F | S | S | M | D | M | D | F | S | |||||||||||