Ferienhaus 727 in Slusen 27, Hvide Sande
"Slusenhusene" ist ein moderner Ferienhauskomplex, der zentral in Hvide Sande, nordöstlich der Schleuse liegt. Dieses Reihenhaus befindet sich mitten zwischen den Häuserreihen in der zweiten Reihe zum Wasser. Es begrüßt Sie mit einem Whirlpool und einer Sauna in den Badezimmern, einem schönen Aufenthaltsraum mit einem Kaminofen und mit Aussicht auf den Ringkøbing Fjord.
Einrichtung
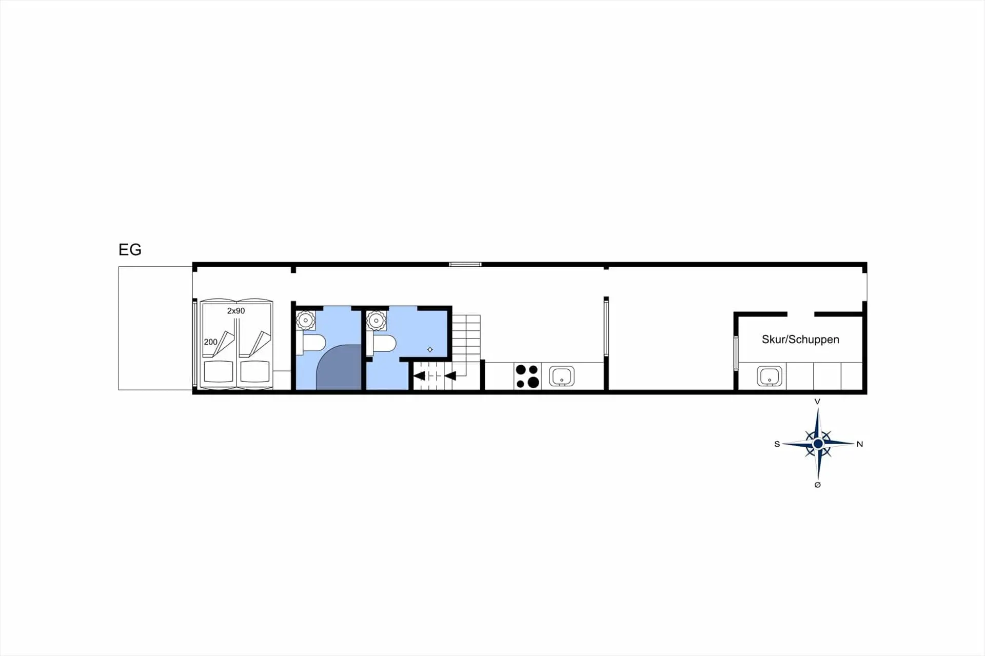
Das 116 m² umfassende Hausinnere besticht mit einer hellen und einladenden Wohnatmosphäre. Der Wohnraum verfügt über hohe Decken und ein großes Panoramafenster gen Süden, das viel Sonne einströmen lässt und einen Blick auf den Fjord eröffnet. Der im Wohnraum platzierte Kaminofen sorgt für viel Gemütlichkeit, während Sie sich auf dem Sofa vor dem Flachbild-TV entspannen. Die beiden Badezimmer sind im Erdgeschoss platziert. Während eines mit einer Sauna überzeugt, verwöhnt das andere mit einem Whirlpool - perfekt für einen Wellnessabend. In der gut ausgestatteten Küche bereiten Sie gemeinsam Ihre Mahlzeiten zu, die Sie anschließend am Esstisch genießen. Die Schlafplätze verteilen sich auf ein Schlafzimmer im Erdgeschoss und auf ein weiteres im Obergeschoss. Im Nebengebäude ist ein Hauswirtschaftsraum untergebracht, in dem eine Waschmaschine, ein Wäschetrockner, eine Gefriermöglichkeit und ein Fischreinigungsplatz für Sie bereitstehen.
Außenbereich
Zwischen dem Nebengebäude und dem Haus befindet sich ein geschlossener Innenhof, auf dem Sie sich völlig ungestört auf den Gartenmöbeln niederlassen können. Gen Süden schließt eine schöne Terrasse an den Schlafraum im Erdgeschoss. Im Obergeschoss verwöhnt Sie ein kleiner Balkon mit Aussicht auf das Wasser.
Lage
Die Lage an der Schleuse ist ideal für Angler, die gerne nah am besten Angelgewässer des Ortes wohnen möchten. Selbstverständlich ist es auch für alle andere Besucher reizvoll, so nah am Ringkøbing Fjord, an der Nordsee und am Ortskern Hvide Sandes zu wohnen. Innerhalb einer Viertelstunde spazieren Sie zu Fuß an den Nordseestrand. Schneller erreicht ist der Ortskern südlich der Schleuse, in dem sich diverse gute Restaurants und schöne Geschäfte auf Ihren Besuch freuen. Surfer erfreuen sich an den guten Surfspots am Fjord. Wer sich einmal auf Wasserskiern oder dem Wakeboard versuchen möchte, hat dazu im Kabelpark die Möglichkeit. Per Fahrrad, zu Fuß und per Pkw können Sie gut in die wunderschöne Natur Holmsland Klits aufbrechen, die durch heidebedeckte Landschaften und herrliche Dünen geprägt wird.
GRATIS! Kostenloser Verleih von Kinderreisebetten und Hochstühlen. Mieter eines Hauses, in das ein Hund mitgebracht werden darf, können ein Hundebett ausleihen. Die Abholung und Rückgabe erfolgt bei Feriepartner Hvide Sande.
Lademöglichkeit für E-Autos: Schauen Sie bitte unter "Ausstattung" nach, ob bei diesem Mietobjekt eine Lademöglichkeit für E-Autos vorhanden ist.
Hausbilder
Ausstattung
Allgemeines
- Anzahl Haustiere maximal: 1
- Anzahl Personen: 4
- Baujahr: 2004
- Fernwärme
- Grundstücksfläche: 120 m² Naturgrundstück
- Inkl. Endreinigung
- Nichtraucher
-
Tolle Aussicht Fjordblick
Panorama - Wohnfläche: 116 m²
Entfernungen
- Abstand Einkauf: 600 m Ganzjährig geöffnet
- Abstand Golfplatz: 14.000 m
- Abstand Restaurant: 300 m
- Abstand Schwimmhalle: 200 m
- Abstand Strand: 1.100 m Sand-/Steinstrand
- Abstand Küste: 50 m
- Abstand Fjord: 50 m
Wohnbereich
- Kaminofen
Schlafbereich
- Anzahl Doppelbetten: 2 2 x 90 x 200
Küche
- Dunstabzug
- Geschirrspüler
- Herd
- Kaffeemaschine
- Kühlschrank l mit Gefrierfach
- Mikrowelle
- Tiefkühler: 150 l
- Wasserkocher
Bad
- Anzahl Duschen: 1
- Anzahl Toiletten: 2
- Trockner
- Waschmaschine
Wellness
- Sauna
- Whirlpool Innenwhirlpool
Multimedia
- CD-Player
- Deutsches Fernsehen
- DVD-Player
- Internationales Fernsehen Waoo lille pakke
-
Internationales Fernsehen norwegische Programme
Schwedisches Fernsehen - Internationales Fernsehen Dänisches Fernsehen
- Internet Kostenloses Wi-Fi - Mehr als 100 Mbit
Aussenbereich
- Gartenmöbel
- Grill
- Terrasse: 25 m² Offene Terrasse
Sonstiges
- Anglerfreundlich Innen Fisch-Reinigungsplatz
- Anzahl Etagen: 2
- Balkon: 1 m²
- Bei diesem Haus inkl. Wasser
- Besonderheiten Gute Angelmöglichkeiten
- Das Aufladen von Elektroautos ist nicht erlaubt
Neben- und Verbrauchskosten
Die aktuellen Verbrauchskosten finden Sie im nächsten Schritt im Buchungsformular.
Raumaufteilung
Lageplan
Ferienhaus 727
Slusen 27
Hvide Sande
6960 Hvide Sande
Belegungskalender
- Reisedauer auswählen
- Anzahl Reisende auswählen
- Anreisetag im Belegungskalender anklicken
- Sie bekommen Verfügbarkeit und Preis angezeigt
| 2026 | 1 | 2 | 3 | 4 | 5 | 6 | 7 | 8 | 9 | 10 | 11 | 12 | 13 | 14 | 15 | 16 | 17 | 18 | 19 | 20 | 21 | 22 | 23 | 24 | 25 | 26 | 27 | 28 | 29 | 30 | 31 |
| Mai | F | S | S | M | D | M | D | F | S | S | M | D | M | D | F | S | S | M | D | M | D | F | S | S | M | D | M | D | F | S | S |
| Juni | M | D | M | D | F | S | S | M | D | M | D | F | S | S | M | D | M | D | F | S | S | M | D | M | D | F | S | S | M | D | |
| Juli | M | D | F | S | S | M | D | M | D | F | S | S | M | D | M | D | F | S | S | M | D | M | D | F | S | S | M | D | M | D | F |
| August | S | S | M | D | M | D | F | S | S | M | D | M | D | F | S | S | M | D | M | D | F | S | S | M | D | M | D | F | S | S | M |
| September | D | M | D | F | S | S | M | D | M | D | F | S | S | M | D | M | D | F | S | S | M | D | M | D | F | S | S | M | D | M | |
| Oktober | D | F | S | S | M | D | M | D | F | S | S | M | D | M | D | F | S | S | M | D | M | D | F | S | S | M | D | M | D | F | S |
| November | S | M | D | M | D | F | S | S | M | D | M | D | F | S | S | M | D | M | D | F | S | S | M | D | M | D | F | S | S | M | |
| Dezember | D | M | D | F | S | S | M | D | M | D | F | S | S | M | D | M | D | F | S | S | M | D | M | D | F | S | S | M | D | M | D |
| 2027 | 1 | 2 | 3 | 4 | 5 | 6 | 7 | 8 | 9 | 10 | 11 | 12 | 13 | 14 | 15 | 16 | 17 | 18 | 19 | 20 | 21 | 22 | 23 | 24 | 25 | 26 | 27 | 28 | 29 | 30 | 31 |
| Januar | F | S | S | M | D | M | D | F | S | S | M | D | M | D | F | S | S | M | D | M | D | F | S | S | M | D | M | D | F | S | S |
| Februar | M | D | M | D | F | S | S | M | D | M | D | F | S | S | M | D | M | D | F | S | S | M | D | M | D | F | S | S | |||
| März | M | D | M | D | F | S | S | M | D | M | D | F | S | S | M | D | M | D | F | S | S | M | D | M | D | F | S | S | M | D | M |
| April | D | F | S | S | M | D | M | D | F | S | S | M | D | M | D | F | S | S | M | D | M | D | F | S | S | M | D | M | D | F | |
| Mai | S | S | M | D | M | D | F | S | S | M | D | M | D | F | S | S | M | D | M | D | F | S | S | M | D | M | D | F | S | S | M |
| Juni | D | M | D | F | S | S | M | D | M | D | F | S | S | M | D | M | D | F | S | S | M | D | M | D | F | S | S | M | D | M | |
| Juli | D | F | S | S | M | D | M | D | F | S | S | M | D | M | D | F | S | S | M | D | M | D | F | S | S | M | D | M | D | F | S |
| August | S | M | D | M | D | F | S | S | M | D | M | D | F | S | S | M | D | M | D | F | S | S | M | D | M | D | F | S | S | M | D |
| September | M | D | F | S | S | M | D | M | D | F | S | S | M | D | M | D | F | S | S | M | D | M | D | F | S | S | M | D | M | D | |
| Oktober | F | S | S | M | D | M | D | F | S | S | M | D | M | D | F | S | S | M | D | M | D | F | S | S | M | D | M | D | F | S | S |
| November | M | D | M | D | F | S | S | M | D | M | D | F | S | S | M | D | M | D | F | S | S | M | D | M | D | F | S | S | M | D | |
| Dezember | M | D | F | S | S | M | D | M | D | F | S | S | M | D | M | D | F | S | S | M | D | M | D | F | S | S | M | D | M | D | F |
| 2028 | 1 | 2 | 3 | 4 | 5 | 6 | 7 | 8 | 9 | 10 | 11 | 12 | 13 | 14 | 15 | 16 | 17 | 18 | 19 | 20 | 21 | 22 | 23 | 24 | 25 | 26 | 27 | 28 | 29 | 30 | 31 |
| Januar | S | S | M | D | M | D | F | S | S | M | D | ||||||||||||||||||||
FAQ
Wie hoch sind die Nebenkosten?
Die Kosten für Strom, Wasser, (bei einigen Häusern Gas) werden nach tagesaktuellen Preisen abgerechnet und hängen von vielen verschiedenen Faktoren ab, wie zum Beispiel Anzahl Personen, Größe des Hauses oder Ausstattung. In der Regel lässt sich sagen, dass ein Standardhaus ohne Pool, Whirlpool und Sauna im Sommer ca. 5 kWh pro Person pro Tag verbraucht. Im Winter gerne bei 10 kWh und darüber. Bei Poolhäusern mit Whirlpool und Sauna liegt der Wert im Sommer bei ca. 20 kWh und im Winter ca. bei 40 kWh. Auch hier variieren die Preise stark von Größe des Pools, Ausstattung, Größe des Hauses, Modell des Whirlpools und individuellem Verbrauch im Haus. Der Wasserverbrauch variiert ebenfalls stark und kann bei ca. 0,1-0,2 m³ pro Person pro Tag in einem Standardhaus liegen und bei Poolhäusern bei ca. 0,4-0,5 m³. Wenn eine Kaution bei der Buchung angegeben ist, ist diese angepasst an den ungefähren Durchschnittsverbrauch an Nebenkosten im Haus.
Alle Angaben ohne Gewähr und dienen lediglich als Richtwert und nicht als tatsächliche Prognose.
Kann ich das Haus reservieren?
Reservierungen sind in der Regel nicht möglich. In einigen Fällen ist es uns jedoch möglich, Reservierungen zu erstellen. Fragen Sie gerne direkt bei uns an, ob für dieses Haus eine Reservierung möglich ist.
Wie bekomme ich den Schlüssel für das Ferienhaus?
Mittlerweile sind bei fast allen Feriepartner Ferienhäusern Schlüsselboxen an den Häusern angebracht. Über den “Mein Feriepartner”- Link in der Buchungsbestätigung erhalten Sie Zugang zu Ihrer Buchung und können im Fenster der Schlüsselübergabe 48 Stunden vor Anreise einen Zugangscode einsehen, über welchen Sie den Schlüssel am Haus erhalten.
Ab wann ist das Haus bezugsbereit?
Die Ferienhäuser werden zwischen 10 Uhr und 16 Uhr gereinigt und sind spätestens ab 16 Uhr bezugsbereit. Wann Ihr Ferienhaus am Anreisetag gereinigt wird, entscheidet das Büro vor Ort kurz vorher, in Absprache mit dem Servicepersonal und der effektivsten Route für die Servicekräfte. Sobald Ihr Ferienhaus bezugsbereit ist, erhalten Sie, sofern Ihre Mobilnummer korrekt angegeben ist, eine SMS von Feriepartner mit dem Bescheid und allen wichtigen Informationen zum Beziehen Ihres Ferienhauses.
Wie läuft die Bezahlung ab?
Nach Aufgabe der Buchung und Bestätigung seitens Feriepartner wird die erste Rate in Höhe von 25 % des Mietpreises auf Ihrem Mietvertrag sofort fällig. Sie können die Raten und Beträge im Mietvertrag oder über “Mein Feriepartner” einsehen. Bis 70 Tage vor Anreise ist die Frist für den noch offenen Restbetrag Ihrer Buchung. Sind weniger als 70 Tage bis zur Anreise, wird der gesamte Betrag in einer Rate fällig.
Wie sind die Umbuchungs- / Stornierungsbedingungen?
Bei Feriepartner ist eine Reiserücktrittsversicherung immer im Mietpreis inklusive enthalten. Sie erhalten Informationen zu den Bedingungen nach Abschluss der Buchung oder bei der Versicherungsgesellschaft Tryg A/S. Bei Stornierungen ohne den Gebrauch der Reiserücktrittsversicherung werden bis 70 Tage vor Anreise 25 % des Mietpreises fällig. Dies entspricht der ersten Rate. Ab 70 Tagen vor Anreise bis zum Anreisetag werden 80 % fällig, ab dem Anreisetag 100 %. Umbuchungen können bei Feriepartner gegen eine Gebühr von 70 € bis 70 Tage vor Anreise vorgenommen werden, allerdings nur im gleichen Kalenderjahr.
Wann erhalte ich meine Nebenkostenabrechnung?
Die Abrechnung geschieht, sofern Feriepartner alle Informationen korrekt vorliegen, innerhalb von 14 Tagen nach Abreise. Denken Sie daran Ihre IBAN und BIC bei Feriepartner zu hinterlegen, sofern Sie per Banküberweisung gezahlt haben, damit Feriepartner einen eventuellen Restbetrag auf Ihr Konto zurück überweisen kann.
Jugendgruppen unter 25 Jahren?
Bei Feriepartner gilt eine Jugendgruppe ab 3 Personen und bis 25 Jahre der einzelnen Mitreisenden. Zwei Personen unter 25 Jahre gelten i. d. R. nicht als Jugendgruppe. In speziellen Fällen können wir individuell für Sie anfragen.