Ferienhaus 745 in Slusen 45, Hvide Sande
Allein die Aussicht wäre Grund genug, um sich für dieses schöne Urlaubsdomizil in Hvide Sande zu entscheiden. Vom Wohnraum, von einem der Schlafräume und von der Südterrasse blicken Sie über den Ringkøbing Fjord und genießen dabei das entspannte Urlaubsleben.
Einrichtung
Das 113 m² große Ferienhaus aus dem Jahr 2007 befindet sich in der ersten Häuserreihe vor dem Fjordufer. Lediglich eine Fjordwiese trennt Sie vom Wasser. Absolut nichts schränkt die Panoramaaussicht ein, an der Sie sich nicht sattsehen werden. Eines der drei Schlafzimmer verwöhnt mit einem Ausblick auf den Fjord. Was könnte es Schöneres geben, als nach dem ersten Augenaufschlag vom Bett aus über das Wasser zu blicken? Im angrenzenden Wohnraum fungiert der Fjord ebenfalls als malerische Kulisse. Der Wohnraum lädt mit seinen Lehnstühlen, dem Sofa, dem Flachbild-TV und dem Kaminofen zu gemütlichen Stunden im Kreise Ihrer Lieben ein. Die gut eingerichtete Küche ist offen mit dem Wohnraum verbunden. Beide Badezimmer sind hochwertig. Eines verwöhnt mit einem Whirlpool, im anderen verströmt die Sauna Wellnessflair. Das Nebengebäude beherbergt praktischerweise einen Fischreinigungsplatz, einen Kühlschrank mit Gefriermöglichkeit, eine Waschmaschine und einen Wäschetrockner.
Außenbereich
Zwischen Garage und Ferienhaus erwartet Sie ein geschlossener, abgeschirmter Hinterhof, auf dem Sie das schöne Wetter angenehm ungestört genießen. Viel Sonne, frische Seeluft und Aussicht auf die wogenden Wellen des Fjords bietet Ihnen die nach Süden gerichtete Terrasse, die sich in Verlängerung des Wohnraums befindet.
Lage
Das Ferienhaus ist Teil des modernen Wohnkomplexes "Slusehusene". Wie der Name vermuten lässt, wohnen Sie direkt an der großen Schleuse des Hafenortes Hvide Sande und somit traumhaft zentral. Südlich der Schleuse erwartet Sie das Zentrum mit gemütlichen Straßen, die von schönen Geschäften und guten Lokalitäten gesäumt werden. Fußläufig erreichbar sind darüber hinaus der beliebte Tyskerhavn, die Schwimmhalle und vieles mehr. Angler wird die Nähe zu den guten Angelplätzen im Hafen begeistern. Nach einem schönen Spaziergang stehen Sie am attraktiven Nordseestrand, der zum Baden, Sonnen, Spielen und Spazierengehen einlädt. Surfer und andere Wassersportler zieht es zum nahen Surfspot Westwind Nord.
GRATIS! Kostenloser Verleih von Kinderreisebetten und Hochstühlen. Mieter eines Hauses, in das ein Hund mitgebracht werden darf, können ein Hundebett ausleihen. Die Abholung und Rückgabe erfolgt bei Feriepartner Hvide Sande.
Lademöglichkeit für E-Autos: Schauen Sie bitte unter Regeln nach, ob bei diesem Mietobjekt eine Lademöglichkeit für E-Autos vorhanden ist.
Hausbilder
Ausstattung
Allgemeines
- Anzahl Haustiere maximal: 1
- Anzahl Personen: 6
- Baujahr: 2007
- Energiesparhaus
- Fernwärme
- Grundstücksfläche: 166 m² Naturgrundstück
- Inkl. Endreinigung
- Nichtraucher
-
Tolle Aussicht Fjordblick
Panorama - Wohnfläche: 113 m²
Entfernungen
- Abstand Einkauf: 700 m Ganzjährig geöffnet
- Abstand Golfplatz: 14.000 m
- Abstand Restaurant: 400 m
- Abstand Schwimmhalle: 300 m
- Abstand Strand: 1.200 m Sand-/Steinstrand
- Abstand Küste: 70 m
- Abstand Fjord: 70 m
Wohnbereich
- Kaminofen
Schlafbereich
- Anzahl Doppelbetten: 2 2x90x200
- Anzahl Einzelbetten: 2 80x200
Küche
- Dunstabzug
- Extra Backofen
- Geschirrspüler
- Kaffeemaschine
- Kochplatten: 1 elektrische, 4 Kochzonen
- Kühlschrank l mit Gefrierfach
- Kühlschrank l mit Gefrierfach
- Mikrowelle
- Wasserkocher
Bad
- Anzahl Duschen: 1
- Anzahl Toiletten: 2
- Trockner
- Waschmaschine
Wellness
- Gratis Schwimmbad Hvide Sande Svømmehal
- Sauna
- Whirlpool Innenwhirlpool
Multimedia
- CD-Player
- Deutsches Fernsehen
-
Internationales Fernsehen norwegische Programme
Schwedisches Fernsehen - Internationales Fernsehen 29 Kanäle unter anderem DR, TV2 und 16 deutsche, 1 norwegische und 2 schwedische Sender
- Internationales Fernsehen Dänisches Fernsehen
- Internet Kostenloses Wi-Fi - Mehr als 100 Mbit
Aussenbereich
- Garage
- Gartenmöbel
- Grill El-grill
- Liegestuhl
- Terrasse: 50 m² Offene Terrasse
Sonstiges
- Anglerfreundlich Innen Fisch-Reinigungsplatz
- Besonderheiten Gute Angelmöglichkeiten
- Ladestation für Elektroautos Ladegerät für Elektrofahrzeuge vorhanden (Typ-2-Stecker, Kabel mitbringen))
Neben- und Verbrauchskosten
Die aktuellen Verbrauchskosten finden Sie im nächsten Schritt im Buchungsformular.
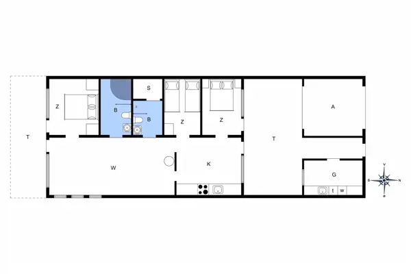
Raumaufteilung
Lageplan
Ferienhaus 745
Slusen 45
Hvide Sande
6960 Hvide Sande
Belegungskalender
- Reisedauer auswählen
- Anzahl Reisende auswählen
- Anreisetag im Belegungskalender anklicken
- Sie bekommen Verfügbarkeit und Preis angezeigt
| 2026 | 1 | 2 | 3 | 4 | 5 | 6 | 7 | 8 | 9 | 10 | 11 | 12 | 13 | 14 | 15 | 16 | 17 | 18 | 19 | 20 | 21 | 22 | 23 | 24 | 25 | 26 | 27 | 28 | 29 | 30 | 31 |
| Mai | F | S | S | M | D | M | D | F | S | S | M | D | M | D | F | S | S | M | D | M | D | F | S | S | M | D | M | D | F | S | S |
| Juni | M | D | M | D | F | S | S | M | D | M | D | F | S | S | M | D | M | D | F | S | S | M | D | M | D | F | S | S | M | D | |
| Juli | M | D | F | S | S | M | D | M | D | F | S | S | M | D | M | D | F | S | S | M | D | M | D | F | S | S | M | D | M | D | F |
| August | S | S | M | D | M | D | F | S | S | M | D | M | D | F | S | S | M | D | M | D | F | S | S | M | D | M | D | F | S | S | M |
| September | D | M | D | F | S | S | M | D | M | D | F | S | S | M | D | M | D | F | S | S | M | D | M | D | F | S | S | M | D | M | |
| Oktober | D | F | S | S | M | D | M | D | F | S | S | M | D | M | D | F | S | S | M | D | M | D | F | S | S | M | D | M | D | F | S |
| November | S | M | D | M | D | F | S | S | M | D | M | D | F | S | S | M | D | M | D | F | S | S | M | D | M | D | F | S | S | M | |
| Dezember | D | M | D | F | S | S | M | D | M | D | F | S | S | M | D | M | D | F | S | S | M | D | M | D | F | S | S | M | D | M | D |
| 2027 | 1 | 2 | 3 | 4 | 5 | 6 | 7 | 8 | 9 | 10 | 11 | 12 | 13 | 14 | 15 | 16 | 17 | 18 | 19 | 20 | 21 | 22 | 23 | 24 | 25 | 26 | 27 | 28 | 29 | 30 | 31 |
| Januar | F | S | S | M | D | M | D | F | S | S | M | D | M | D | F | S | S | M | D | M | D | F | S | S | M | D | M | D | F | S | S |
| Februar | M | D | M | D | F | S | S | M | D | M | D | F | S | S | M | D | M | D | F | S | S | M | D | M | D | F | S | S | |||
| März | M | D | M | D | F | S | S | M | D | M | D | F | S | S | M | D | M | D | F | S | S | M | D | M | D | F | S | S | M | D | M |
| April | D | F | S | S | M | D | M | D | F | S | S | M | D | M | D | F | S | S | M | D | M | D | F | S | S | M | D | M | D | F | |
| Mai | S | S | M | D | M | D | F | S | S | M | D | M | D | F | S | S | M | D | M | D | F | S | S | M | D | M | D | F | S | S | M |
| Juni | D | M | D | F | S | S | M | D | M | D | F | S | S | M | D | M | D | F | S | S | M | D | M | D | F | S | S | M | D | M | |
| Juli | D | F | S | S | M | D | M | D | F | S | S | M | D | M | D | F | S | S | M | D | M | D | F | S | S | M | D | M | D | F | S |
| August | S | M | D | M | D | F | S | S | M | D | M | D | F | S | S | M | D | M | D | F | S | S | M | D | M | D | F | S | S | M | D |
| September | M | D | F | S | S | M | D | M | D | F | S | S | M | D | M | D | F | S | S | M | D | M | D | F | S | S | M | D | M | D | |
| Oktober | F | S | S | M | D | M | D | F | S | S | M | D | M | D | F | S | S | M | D | M | D | F | S | S | M | D | M | D | F | S | S |
| November | M | D | M | D | F | S | S | M | D | M | D | F | S | S | M | D | M | D | F | S | S | M | D | M | D | F | S | S | M | D | |
| Dezember | M | D | F | S | S | M | D | M | D | F | S | S | M | D | M | D | F | S | S | M | D | M | D | F | S | S | M | D | M | D | F |
| 2028 | 1 | 2 | 3 | 4 | 5 | 6 | 7 | 8 | 9 | 10 | 11 | 12 | 13 | 14 | 15 | 16 | 17 | 18 | 19 | 20 | 21 | 22 | 23 | 24 | 25 | 26 | 27 | 28 | 29 | 30 | 31 |
| Januar | S | S | M | D | M | D | F | S | S | M | D | ||||||||||||||||||||
FAQ
Wie hoch sind die Nebenkosten?
Die Kosten für Strom, Wasser, (bei einigen Häusern Gas) werden nach tagesaktuellen Preisen abgerechnet und hängen von vielen verschiedenen Faktoren ab, wie zum Beispiel Anzahl Personen, Größe des Hauses oder Ausstattung. In der Regel lässt sich sagen, dass ein Standardhaus ohne Pool, Whirlpool und Sauna im Sommer ca. 5 kWh pro Person pro Tag verbraucht. Im Winter gerne bei 10 kWh und darüber. Bei Poolhäusern mit Whirlpool und Sauna liegt der Wert im Sommer bei ca. 20 kWh und im Winter ca. bei 40 kWh. Auch hier variieren die Preise stark von Größe des Pools, Ausstattung, Größe des Hauses, Modell des Whirlpools und individuellem Verbrauch im Haus. Der Wasserverbrauch variiert ebenfalls stark und kann bei ca. 0,1-0,2 m³ pro Person pro Tag in einem Standardhaus liegen und bei Poolhäusern bei ca. 0,4-0,5 m³. Wenn eine Kaution bei der Buchung angegeben ist, ist diese angepasst an den ungefähren Durchschnittsverbrauch an Nebenkosten im Haus.
Alle Angaben ohne Gewähr und dienen lediglich als Richtwert und nicht als tatsächliche Prognose.
Kann ich das Haus reservieren?
Reservierungen sind in der Regel nicht möglich. In einigen Fällen ist es uns jedoch möglich, Reservierungen zu erstellen. Fragen Sie gerne direkt bei uns an, ob für dieses Haus eine Reservierung möglich ist.
Wie bekomme ich den Schlüssel für das Ferienhaus?
Mittlerweile sind bei fast allen Feriepartner Ferienhäusern Schlüsselboxen an den Häusern angebracht. Über den “Mein Feriepartner”- Link in der Buchungsbestätigung erhalten Sie Zugang zu Ihrer Buchung und können im Fenster der Schlüsselübergabe 48 Stunden vor Anreise einen Zugangscode einsehen, über welchen Sie den Schlüssel am Haus erhalten.
Ab wann ist das Haus bezugsbereit?
Die Ferienhäuser werden zwischen 10 Uhr und 16 Uhr gereinigt und sind spätestens ab 16 Uhr bezugsbereit. Wann Ihr Ferienhaus am Anreisetag gereinigt wird, entscheidet das Büro vor Ort kurz vorher, in Absprache mit dem Servicepersonal und der effektivsten Route für die Servicekräfte. Sobald Ihr Ferienhaus bezugsbereit ist, erhalten Sie, sofern Ihre Mobilnummer korrekt angegeben ist, eine SMS von Feriepartner mit dem Bescheid und allen wichtigen Informationen zum Beziehen Ihres Ferienhauses.
Wie läuft die Bezahlung ab?
Nach Aufgabe der Buchung und Bestätigung seitens Feriepartner wird die erste Rate in Höhe von 25 % des Mietpreises auf Ihrem Mietvertrag sofort fällig. Sie können die Raten und Beträge im Mietvertrag oder über “Mein Feriepartner” einsehen. Bis 70 Tage vor Anreise ist die Frist für den noch offenen Restbetrag Ihrer Buchung. Sind weniger als 70 Tage bis zur Anreise, wird der gesamte Betrag in einer Rate fällig.
Wie sind die Umbuchungs- / Stornierungsbedingungen?
Bei Feriepartner ist eine Reiserücktrittsversicherung immer im Mietpreis inklusive enthalten. Sie erhalten Informationen zu den Bedingungen nach Abschluss der Buchung oder bei der Versicherungsgesellschaft Tryg A/S. Bei Stornierungen ohne den Gebrauch der Reiserücktrittsversicherung werden bis 70 Tage vor Anreise 25 % des Mietpreises fällig. Dies entspricht der ersten Rate. Ab 70 Tagen vor Anreise bis zum Anreisetag werden 80 % fällig, ab dem Anreisetag 100 %. Umbuchungen können bei Feriepartner gegen eine Gebühr von 70 € bis 70 Tage vor Anreise vorgenommen werden, allerdings nur im gleichen Kalenderjahr.
Wann erhalte ich meine Nebenkostenabrechnung?
Die Abrechnung geschieht, sofern Feriepartner alle Informationen korrekt vorliegen, innerhalb von 14 Tagen nach Abreise. Denken Sie daran Ihre IBAN und BIC bei Feriepartner zu hinterlegen, sofern Sie per Banküberweisung gezahlt haben, damit Feriepartner einen eventuellen Restbetrag auf Ihr Konto zurück überweisen kann.
Jugendgruppen unter 25 Jahren?
Bei Feriepartner gilt eine Jugendgruppe ab 3 Personen und bis 25 Jahre der einzelnen Mitreisenden. Zwei Personen unter 25 Jahre gelten i. d. R. nicht als Jugendgruppe. In speziellen Fällen können wir individuell für Sie anfragen.