
Hausboot 789 in Mamrelund 31, Hvide Sande
Wunderschöne Sonnenaufgänge, der Duft frischen Fjordwassers und ein seichter Wellenschlag. All Ihre Sinne werden von der Natur stimuliert, wenn Sie sich für dieses moderne Hausboot aus dem Jahr 2020 entscheiden. Das Boot liegt fest verankert an einem der besten Bootsplätze Mamrelunds und verwöhnt mit einem reizvollen Blick über den Ringkøbing Fjord. Hvide Sandes Ortskern ist fußläufig erreichbar.
Einrichtung
Freuen Sie sich bereits jetzt auf unvergessliche Urlaubstage! Selbst wenn Sie dieses Hausboot den gesamten Urlaub nicht verlassen, erwarten Sie außergewöhnlich schöne, andersartige Naturerlebnisse. Es ist etwas ganz Besonderes, während des Urlaubs komplett von Wasser umgeben zu sein, von den seichten Wellen in den Schlaf geschaukelt zu werden und durch die Fenster einen herrlichen Blick über den Fjord und den Hafen zu genießen. Der schöne Aufenthaltsraum des Bootes, der durch eine stilvolle Möblierung und einem Flachbild-TV inklusive Chromecast geprägt wird, setzt sich offen aus dem Wohnzimmer und der Küche zusammen. Dank der sich laufend verändernden Aussicht, die das nach Osten gerichtete Panoramafenster offenbart, werden Sie den Fernseher allerdings nicht sehr häufig nutzen. Der kleine Eingangsbereich verfügt über Schrankfläche. Ein Badezimmer mit einer Dusche ist vorhanden. Die Schlafplätze für insgesamt vier Personen verteilen sich auf zwei Schlafzimmer.
Außenbereich
Vom Wohnraum aus genießen Sie direkten Zugang zu einer kleinen Ostterrasse, auf der Sie ein wenig frische Luft schnappen und die Wetterlage prüfen können. Für längere Aufenthalte im Freien bietet sich die über eine Treppe erreichbare, 60 m² große Dachterrasse an, die nicht nur angenehm geräumig ist, sondern auch mit einem 360 Grad-Rundumblick zu begeistern weiß. Für diejenigen, die gern unter freiem Himmel schlafen, befindet sich in Verlängerung der Terrasse ein Schlafunterschlupf, der der Terrasse darüber hinaus guten Windschutz vor dem meist vorherrschenden Westwind bietet.
Lage
Das Hausboot liegt am Rande des Hafengebietes in Mamrelund, direkt am Ufer des Ringkøbing Fjords. Hier erleben Sie hautnah, wie die Fjordfischer auslaufen und mit ihrem täglichen Fang heimkehren. Mit ein wenig Glück beobachten Sie vor dem Hausboot Wildvögel und sogar Seehunde. Für Spaziergänge bietet sich der Fjordstien an, der entlang des Ufers verläuft. Alternativ spazieren Sie in den Ortskern und weiter an die Nordsee und Hvide Sandes reizvollen Sandstrand. Marmelund befindet sich in der Nähe der interessanten Geschäfte und schönen Restaurants des Hafens und der hervorragenden Angelplätze. Meer und Fjord bestechen durch fantastische Surfspots. Fahrradfahrern können wir schöne Touren durch die hübsche Dünen- und Heidelandschaft Holmsland Klits wärmstens empfehlen.
GRATIS! Kostenloser Verleih von Kinderreisebetten und Hochstühlen. Mieter eines Hauses, in das ein Hund mitgebracht werden darf, können ein Hundebett ausleihen. Die Abholung und Rückgabe erfolgt bei Feriepartner Hvide Sande.
Lademöglichkeit für E-Autos: Schauen Sie bitte unter "Ausstattung" nach, ob bei diesem Mietobjekt eine Lademöglichkeit für E-Autos vorhanden ist.
Hausbilder
Ausstattung
Allgemeines
- Anzahl Haustiere maximal: 1
- Anzahl Personen: 4
- Baujahr: 2020
- Energiesparhaus
- Grundstücksfläche: 60 m²
- Inkl. Endreinigung
- Nichtraucher
-
Tolle Aussicht Blick auf die Landschaft
Fjordblick - Wohnfläche: 60 m²
Entfernungen
- Abstand Einkauf: 200 m Ganzjährig geöffnet
- Abstand Golfplatz: 14.000 m
- Abstand Restaurant: 200 m
- Abstand Schwimmhalle: 1.500 m
- Abstand Strand: 400 m Sand-/Steinstrand
- Abstand Küste: 1 m
- Abstand Fjord: 1 m
Schlafbereich
-
Anzahl Doppelbetten: 2 140 x 200 cm
2 x 80 x 200 cm
Küche
- Dunstabzug
- Extra Backofen
- Geschirrspüler
- Kaffeemaschine
- Kochplatten: 1 elektrische, 4 Kochzonen
- Offene Küche
- Wasserkocher
Bad
- Anzahl Duschen: 1
- Anzahl Toiletten: 1
Multimedia
- Deutsches Fernsehen
- Internationales Fernsehen Dänisches Fernsehen, DR gratis kanaler
- Internet Kostenloses Wi-Fi - Mehr als 20 Mbit
Aussenbereich
- Gartenmöbel
- Liegestuhl
- Terrasse: 60 m² Teilw. überdachte Terrasse
Sonstiges
- Anzahl Etagen: 2
- Das Aufladen von Elektroautos ist nicht erlaubt
- Wärmepumpe Mit Kühlfunktion
- Sonstiges Chromecast, Streaming af danske programmer via eget abonnement.
Neben- und Verbrauchskosten
Die aktuellen Verbrauchskosten finden Sie im nächsten Schritt im Buchungsformular.
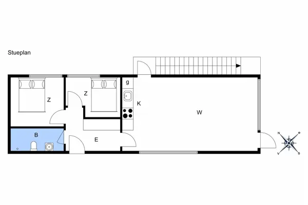
Raumaufteilung



Lageplan
Hausboot 789
Mamrelund 31
Hvide Sande
6960 Hvide Sande
Belegungskalender
- Reisedauer auswählen
- Anzahl Reisende auswählen
- Anreisetag im Belegungskalender anklicken
- Sie bekommen Verfügbarkeit und Preis angezeigt
2025 | 1 | 2 | 3 | 4 | 5 | 6 | 7 | 8 | 9 | 10 | 11 | 12 | 13 | 14 | 15 | 16 | 17 | 18 | 19 | 20 | 21 | 22 | 23 | 24 | 25 | 26 | 27 | 28 | 29 | 30 | 31 |
Oktober | M | D | F | S | S | M | D | M | D | F | S | S | M | D | M | D | F | S | S | M | D | M | D | F | S | S | M | D | M | D | F |
November | S | S | M | D | M | D | F | S | S | M | D | M | D | F | S | S | M | D | M | D | F | S | S | M | D | M | D | F | S | S | |
Dezember | M | D | M | D | F | S | S | M | D | M | D | F | S | S | M | D | M | D | F | S | S | M | D | M | D | F | S | S | M | D | M |
2026 | 1 | 2 | 3 | 4 | 5 | 6 | 7 | 8 | 9 | 10 | 11 | 12 | 13 | 14 | 15 | 16 | 17 | 18 | 19 | 20 | 21 | 22 | 23 | 24 | 25 | 26 | 27 | 28 | 29 | 30 | 31 |
Januar | D | F | S | S | M | D | M | D | F | S | S | M | D | M | D | F | S | S | M | D | M | D | F | S | S | M | D | M | D | F | S |
Februar | S | M | D | M | D | F | S | S | M | D | M | D | F | S | S | M | D | M | D | F | S | S | M | D | M | D | F | S | |||
März | S | M | D | M | D | F | S | S | M | D | M | D | F | S | S | M | D | M | D | F | S | S | M | D | M | D | F | S | S | M | D |
April | M | D | F | S | S | M | D | M | D | F | S | S | M | D | M | D | F | S | S | M | D | M | D | F | S | S | M | D | M | D | |
Mai | F | S | S | M | D | M | D | F | S | S | M | D | M | D | F | S | S | M | D | M | D | F | S | S | M | D | M | D | F | S | S |
Juni | M | D | M | D | F | S | S | M | D | M | D | F | S | S | M | D | M | D | F | S | S | M | D | M | D | F | S | S | M | D | |
Juli | M | D | F | S | S | M | D | M | D | F | S | S | M | D | M | D | F | S | S | M | D | M | D | F | S | S | M | D | M | D | F |
August | S | S | M | D | M | D | F | S | S | M | D | M | D | F | S | S | M | D | M | D | F | S | S | M | D | M | D | F | S | S | M |
September | D | M | D | F | S | S | M | D | M | D | F | S | S | M | D | M | D | F | S | S | M | D | M | D | F | S | S | M | D | M | |
Oktober | D | F | S | S | M | D | M | D | F | S | S | M | D | M | D | F | S | S | M | D | M | D | F | S | S | M | D | M | D | F | S |
November | S | M | D | M | D | F | S | S | M | D | M | D | F | S | S | M | D | M | D | F | S | S | M | D | M | D | F | S | S | M | |
Dezember | D | M | D | F | S | S | M | D | M | D | F | S | S | M | D | M | D | F | S | S | M | D | M | D | F | S | S | M | D | M | D |
2027 | 1 | 2 | 3 | 4 | 5 | 6 | 7 | 8 | 9 | 10 | 11 | 12 | 13 | 14 | 15 | 16 | 17 | 18 | 19 | 20 | 21 | 22 | 23 | 24 | 25 | 26 | 27 | 28 | 29 | 30 | 31 |
Januar | F | S | S | M | D | M | D | F | S | S | M |
FAQ
Wie hoch sind die Nebenkosten?
Die Kosten für Strom, Wasser, (bei einigen Häusern Gas) werden nach tagesaktuellen Preisen abgerechnet und hängen von vielen verschiedenen Faktoren ab, wie zum Beispiel Anzahl Personen, Größe des Hauses oder Ausstattung. In der Regel lässt sich sagen, dass ein Standardhaus ohne Pool, Whirlpool und Sauna im Sommer ca. 5 kWh pro Person pro Tag verbraucht. Im Winter gerne bei 10 kWh und darüber. Bei Poolhäusern mit Whirlpool und Sauna liegt der Wert im Sommer bei ca. 20 kWh und im Winter ca. bei 40 kWh. Auch hier variieren die Preise stark von Größe des Pools, Ausstattung, Größe des Hauses, Modell des Whirlpools und individuellem Verbrauch im Haus. Der Wasserverbrauch variiert ebenfalls stark und kann bei ca. 0,1-0,2 m³ pro Person pro Tag in einem Standardhaus liegen und bei Poolhäusern bei ca. 0,4-0,5 m³. Wenn eine Kaution bei der Buchung angegeben ist, ist diese angepasst an den ungefähren Durchschnittsverbrauch an Nebenkosten im Haus.
Alle Angaben ohne Gewähr und dienen lediglich als Richtwert und nicht als tatsächliche Prognose.
Kann ich das Haus reservieren?
Reservierungen sind in der Regel nicht möglich. In einigen Fällen ist es uns jedoch möglich, Reservierungen zu erstellen. Fragen Sie gerne direkt bei uns an, ob für dieses Haus eine Reservierung möglich ist.
Wie bekomme ich den Schlüssel für das Ferienhaus?
Mittlerweile sind bei fast allen Feriepartner Ferienhäusern Schlüsselboxen an den Häusern angebracht. Über den “Mein Feriepartner”- Link in der Buchungsbestätigung erhalten Sie Zugang zu Ihrer Buchung und können im Fenster der Schlüsselübergabe 48 Stunden vor Anreise einen Zugangscode einsehen, über welchen Sie den Schlüssel am Haus erhalten.
Ab wann ist das Haus bezugsbereit?
Die Ferienhäuser werden zwischen 10 Uhr und 16 Uhr gereinigt und sind spätestens ab 16 Uhr bezugsbereit. Wann Ihr Ferienhaus am Anreisetag gereinigt wird, entscheidet das Büro vor Ort kurz vorher, in Absprache mit dem Servicepersonal und der effektivsten Route für die Servicekräfte. Sobald Ihr Ferienhaus bezugsbereit ist, erhalten Sie, sofern Ihre Mobilnummer korrekt angegeben ist, eine SMS von Feriepartner mit dem Bescheid und allen wichtigen Informationen zum Beziehen Ihres Ferienhauses.
Wie läuft die Bezahlung ab?
Nach Aufgabe der Buchung und Bestätigung seitens Feriepartner wird die erste Rate in Höhe von 25 % des Mietpreises auf Ihrem Mietvertrag sofort fällig. Sie können die Raten und Beträge im Mietvertrag oder über “Mein Feriepartner” einsehen. Bis 70 Tage vor Anreise ist die Frist für den noch offenen Restbetrag Ihrer Buchung. Sind weniger als 70 Tage bis zur Anreise, wird der gesamte Betrag in einer Rate fällig.
Wie sind die Umbuchungs- / Stornierungsbedingungen?
Bei Feriepartner ist eine Reiserücktrittsversicherung immer im Mietpreis inklusive enthalten. Sie erhalten Informationen zu den Bedingungen nach Abschluss der Buchung oder bei der Versicherungsgesellschaft Tryg A/S. Bei Stornierungen ohne den Gebrauch der Reiserücktrittsversicherung werden bis 70 Tage vor Anreise 25 % des Mietpreises fällig. Dies entspricht der ersten Rate. Ab 70 Tagen vor Anreise bis zum Anreisetag werden 80 % fällig, ab dem Anreisetag 100 %. Umbuchungen können bei Feriepartner gegen eine Gebühr von 70 € bis 70 Tage vor Anreise vorgenommen werden, allerdings nur im gleichen Kalenderjahr.
Wann erhalte ich meine Nebenkostenabrechnung?
Die Abrechnung geschieht, sofern Feriepartner alle Informationen korrekt vorliegen, innerhalb von 14 Tagen nach Abreise. Denken Sie daran Ihre IBAN und BIC bei Feriepartner zu hinterlegen, sofern Sie per Banküberweisung gezahlt haben, damit Feriepartner einen eventuellen Restbetrag auf Ihr Konto zurück überweisen kann.
Jugendgruppen unter 25 Jahren?
Bei Feriepartner gilt eine Jugendgruppe ab 3 Personen und bis 25 Jahre der einzelnen Mitreisenden. Zwei Personen unter 25 Jahre gelten i. d. R. nicht als Jugendgruppe. In speziellen Fällen können wir individuell für Sie anfragen.