Ferienhaus H5457 in Fladsbjergvej 184, Klegod
Wenn ihr entweder mit mehreren Familien oder einer großen Gruppe von Freunden gemeinsam Urlaub machen wollt, dann solltet ihr euch dieses schöne, in 2022 renovierte Ferienhaus im Fladsbjergvej 184 in Klegod ansehen. Hier können bis zu 12 Personen einen Urlaub voller Unterhaltung und Entspannung genießen. Das Ferienhaus verfügt über einen Swimmingpool, einen Whirlpool und eine Sauna und ist nur 500 m von der Nordsee entfernt. Bis zu 2 Hunde sind im Ferienhaus willkommen, und wenn ihr ein Elektroauto fahren, könnt ihr es direkt am Ferienhaus aufladen. Im Haus wurde im 2023 gerade eine energiesparende Wärmepumpe für den Pool installiert, was zu weiteren Einsparungen beim Stromverbrauch im Vergleich zum berechneten Verbrauch führt.
Poolraum mit Pool, Whirlpool und Sauna
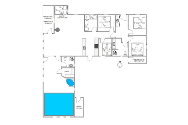
Im Poolraum des Ferienhauses warten einige Highlights auf euch, und ihr werdet hier sicher während eures Urlaubes viele Stunden verbringen. Hier gibt es einen 20 Quadratmeter großen Pool, den die Wasserratten unter euch sicher lieben werden.
Der Poolraum ist auch der Ort, an dem ihr euch ausgiebig entspannen könnt. Es gibt sogar einen Whirlpool und eine Sauna, die zum Entspannen und Erholen einladen, damit ihr während eures Urlaubs neue Energie tanken könnt. Der Poolraum ist mit einer Fußbodenheizung ausgestattet, sodass niemand kalte Füße bekommt, während ihr hier seid.
Hell, modern und einladend
Im Ferienhaus Fladsbjergvej 184 erwartet euch eine helle, moderne und einladende Einrichtung, und von dem Moment an, in dem ihr im Ferienhaus ankommt, wird es nicht lange dauern, bis ihr euch hier wie zu Hause fühlt.
Das Herzstück des Ferienhauses ist der Wohnraum, der auch euer Haupttreffpunkt im Urlaub ist. Im Wohnzimmer könnt gemeinsam kochen, Playstation 5 spielen und Filme ansehen, während im Hintergrund der Holzofen knistert. Im Wohnzimmer gibt es auch einen Alkoven, in dem ihr euch in Ruhe zurückziehen könnt.
Wenn euch die Energie ausgeht, könnt ihr euch in die Schlafzimmer des Ferienhauses zurückziehen. Das 191 Quadratmeter große Ferienhaus verfügt über 5 Schlafzimmer mit insgesamt 4 Doppelbetten und 2 Einzelbetten. Mit insgesamt 2 Badezimmern müsst ihr am nächsten Morgen nicht in der Schlange stehen und auf das Badezimmer warten.
Große Holzterrasse, Sandkasten und Schaukel
Vom Ferienhaus aus gelangt ihr auf die große Holzterrasse, auf der ihr die warmen und sonnigen Tage eures Urlaubs verbringen und die Aussicht auf die umliegende Landschaft genießen könnt. Gartenmöbel, Liegestühle und ein Gasgrill stehen euch zur Verfügung, damit ihr euren Urlaub im Freien in vollen Zügen genießen könnt.
Während ihr euch auf der Terrasse entspannt und euren Urlaub genießt, können die Kinder im Sandkasten auf der Terrasse spielen oder im Garten schaukeln, wo eine Schaukel für sie bereitsteht. Des Weiteren laden Fußballtore zum Kicken ein. Und die Sitzgelegenheit an der Ostseite des Ferienhauses ist ideal, um den möglichen Sonnenaufgang zu genießen.
Kurze Entfernung von nur 500 Metern zum Strand
Vom Ferienhaus im Fladsbjergvej 184 in Klegod sind es nur 500 Meter bis zu den tosenden Wellen der Nordsee und den breiten, schönen Sandstränden. Ihr könnt in kürzester Zeit dorthin wandern, und wenn ihr dort ankommt, habt ihr die Möglichkeit, im Meer zu schwimmen, am Strand spazieren zu gehen und vieles mehr.
Ihr könnt eure Ferieneinkäufe in Hvide Sande oder Søndervig erledigt, die ihr von Klegod aus mit dem Auto erreichen könnt. Hier gibt es sowohl Supermärkte als auch Spezialitätengeschäfte, in denen ihr während eures Urlaubs einkaufen könnt.
Hausbilder
Ausstattung
Allgemeines
- Anzahl Haustiere maximal: 2
- Anzahl Personen: 12
- Anzahl Personen: 12
- Baujahr: 1993
- Grundstücksfläche: 2.212 m²
- Haustiere erlaubt
- Inkl. Endreinigung
- Nichtraucher
- Renovierung: 2023
- Wohnfläche: 191 m²
Entfernungen
- Abstand Einkauf: 4.200 m
- Abstand Wasser: 500 m Nordsee
Wohnbereich
- Flachbildfernseher
- Kaminofen
- Schlafboden
Schlafbereich
- Anzahl Doppelbetten: 4
- Anzahl Einzelbetten: 2
- Anzahl Schlafzimmer: 5
Küche
- Geschirrspüler
- Herd Induktion mit Backofen
- Kühlschrank
- Mikrowelle
- Tiefkühler: 84 l
Bad
- Anzahl Badezimmer: 2
- Trockner
- Waschmaschine
Wellness
- Pool
- Poolgröße: 20 m²
- Sauna
Multimedia
- Deutsches Fernsehen Dänische und Deutsche
- Internationales Fernsehen
- Internet
Aussenbereich
- Gartenmöbel
- Grundstück Naturgrundstück
- Grill Gasgrill
- Liegestuhl
- Sandkiste
- Schaukel
- Sonnenschirm
-
Terrasse: 1 abgeschirmt
offen - Terrasse, geschlossen
- Terrasse, überdacht
Sonstiges
-
Besonderheiten Abstellraum
iPod Dock - Fußbodenheizung Bad
- Hauswechseltag Samstag
- Ladestation für Elektroautos
- Wärmepumpe
Neben- und Verbrauchskosten
Die aktuellen Verbrauchskosten finden Sie im nächsten Schritt im Buchungsformular.
Raumaufteilung
Lageplan
Ferienhaus H5457
Fladsbjergvej 184
Klegod
6950 Ringkøbing
Belegungskalender
- Reisedauer auswählen
- Anzahl Reisende auswählen
- Anreisetag im Belegungskalender anklicken
- Sie bekommen Verfügbarkeit und Preis angezeigt
| 2025 | 1 | 2 | 3 | 4 | 5 | 6 | 7 | 8 | 9 | 10 | 11 | 12 | 13 | 14 | 15 | 16 | 17 | 18 | 19 | 20 | 21 | 22 | 23 | 24 | 25 | 26 | 27 | 28 | 29 | 30 | 31 |
| Dezember | M | D | M | D | F | S | S | M | D | M | D | F | S | S | M | D | M | D | F | S | S | M | D | M | D | F | S | S | M | D | M |
| 2026 | 1 | 2 | 3 | 4 | 5 | 6 | 7 | 8 | 9 | 10 | 11 | 12 | 13 | 14 | 15 | 16 | 17 | 18 | 19 | 20 | 21 | 22 | 23 | 24 | 25 | 26 | 27 | 28 | 29 | 30 | 31 |
| Januar | D | F | S | S | M | D | M | D | F | S | S | M | D | M | D | F | S | S | M | D | M | D | F | S | S | M | D | M | D | F | S |
| Februar | S | M | D | M | D | F | S | S | M | D | M | D | F | S | S | M | D | M | D | F | S | S | M | D | M | D | F | S | |||
| März | S | M | D | M | D | F | S | S | M | D | M | D | F | S | S | M | D | M | D | F | S | S | M | D | M | D | F | S | S | M | D |
| April | M | D | F | S | S | M | D | M | D | F | S | S | M | D | M | D | F | S | S | M | D | M | D | F | S | S | M | D | M | D | |
| Mai | F | S | S | M | D | M | D | F | S | S | M | D | M | D | F | S | S | M | D | M | D | F | S | S | M | D | M | D | F | S | S |
| Juni | M | D | M | D | F | S | S | M | D | M | D | F | S | S | M | D | M | D | F | S | S | M | D | M | D | F | S | S | M | D | |
| Juli | M | D | F | S | S | M | D | M | D | F | S | S | M | D | M | D | F | S | S | M | D | M | D | F | S | S | M | D | M | D | F |
| August | S | S | M | D | M | D | F | S | S | M | D | M | D | F | S | S | M | D | M | D | F | S | S | M | D | M | D | F | S | S | M |
| September | D | M | D | F | S | S | M | D | M | D | F | S | S | M | D | M | D | F | S | S | M | D | M | D | F | S | S | M | D | M | |
| Oktober | D | F | S | S | M | D | M | D | F | S | S | M | D | M | D | F | S | S | M | D | M | D | F | S | S | M | D | M | D | F | S |
| November | S | M | D | M | D | F | S | S | M | D | M | D | F | S | S | M | D | M | D | F | S | S | M | D | M | D | F | S | S | M | |
| Dezember | D | M | D | F | S | S | M | D | M | D | F | S | S | M | D | M | D | F | S | S | M | D | M | D | F | S | S | M | D | M | D |
| 2027 | 1 | 2 | 3 | 4 | 5 | 6 | 7 | 8 | 9 | 10 | 11 | 12 | 13 | 14 | 15 | 16 | 17 | 18 | 19 | 20 | 21 | 22 | 23 | 24 | 25 | 26 | 27 | 28 | 29 | 30 | 31 |
| Januar | F | S | S | M | D | M | D | F | S | S | M | D | M | D | F | S | S | M | D | M | D | F | S | S | M | D | M | D | F | S | S |
| Februar | M | D | M | D | F | S | S | M | D | M | D | F | S | S | M | D | M | D | F | S | S | M | D | M | D | F | S | S | |||
| März | M | D | M | D | F | S | S | M | D | M | D | F | S | S | M | D | M | D | F | S | S | M | D | M | D | F | S | S | M | D | M |
| April | D | F | S | S | M | D | M | D | F | S | S | M | D | M | D | F | S | S | M | D | M | D | F | S | S | M | D | M | D | F | |
| Mai | S | S | M | D | M | D | F | S | S | M | D | M | D | F | S | S | M | D | M | D | F | S | S | M | D | M | D | F | S | S | M |
| Juni | D | M | D | F | S | S | M | D | M | D | F | S | S | M | D | M | D | F | S | S | M | D | M | D | F | S | S | M | D | M | |
| Juli | D | F | S | S | M | D | M | D | F | S | S | M | D | M | D | F | S | S | M | D | M | D | F | S | S | M | D | M | D | F | S |
| August | S | M | D | M | D | F | S | S | M | D | M | D | F | S | S | M | D | M | D | F | S | S | M | D | M | D | F | S | S | M | D |
| September | M | D | F | S | S | M | D | M | D | F | S | S | M | D | M | D | F | S | S | M | D | M | D | F | S | S | M | D | M | D | |
| Oktober | F | S | S | M | D | M | D | F | S | S | M | D | M | D | F | S | S | M | D | M | D | F | S | S | M | D | M | D | F | S | S |
| November | M | D | M | D | F | S | S | M | D | M | D | F | S | S | M | D | M | D | F | S | S | M | D | M | D | F | S | S | M | D | |
| Dezember | M | D | F | S | S | M | D | M | D | F | S | S | M | D | M | D | F | S | S | M | D | M | D | F | S | S | M | D | M | D | F |
| 2028 | 1 | 2 | 3 | 4 | 5 | 6 | 7 | 8 | 9 | 10 | 11 | 12 | 13 | 14 | 15 | 16 | 17 | 18 | 19 | 20 | 21 | 22 | 23 | 24 | 25 | 26 | 27 | 28 | 29 | 30 | 31 |
| Januar | S | S | M | D | M | D | F | S | S | M | D | M | D | F | S | S | M | D | M | D | F | S | S | M | D | M | D | F | S | S | M |
| Februar | D | M | D | F | S | S | M | D | M | D | F | S | S | M | D | M | D | F | S | S | M | D | M | D | F | S | S | M | D | ||
| März | M | D | F | S | S | M | D | M | D | F | S | S | M | D | M | D | F | S | S | M | D | M | D | F | S | S | M | D | M | D | F |
| April | S | S | M | D | M | D | F | S | S | M | D | M | D | F | S | S | M | D | M | D | F | S | S | M | D | M | D | F | S | S | |
| Mai | M | D | M | D | F | S | S | M | D | M | D | F | S | S | M | D | M | D | F | S | S | M | D | M | D | F | S | S | M | D | M |
| Juni | D | F | S | S | M | D | M | D | F | S | S | M | D | M | D | F | S | S | M | D | M | D | F | S | S | M | D | M | D | F | |
| Juli | S | S | M | D | M | D | F | S | S | M | D | M | D | F | S | S | M | D | M | D | F | S | S | M | D | M | D | F | S | S | M |
| August | D | M | D | F | S | S | M | D | M | D | F | S | S | M | D | M | D | F | S | S | M | D | M | D | F | S | S | M | D | M | D |
| September | F | S | S | M | D | M | D | F | S | S | M | D | M | D | F | S | S | M | D | M | D | F | S | S | M | D | M | D | F | S | |
| Oktober | S | M | D | M | D | F | S | S | M | D | M | D | F | S | S | M | D | M | D | F | S | S | M | D | M | D | F | S | S | M | D |
| November | M | D | F | S | S | M | D | M | D | F | S | S | M | D | M | D | F | S | S | M | D | M | D | F | S | S | M | D | M | D | |
| Dezember | F | S | S | M | D | M | D | F | S | S | M | D | M | D | F | S | S | M | D | M | D | F | S | S | M | D | M | D | F | S | S |
| 2029 | 1 | 2 | 3 | 4 | 5 | 6 | 7 | 8 | 9 | 10 | 11 | 12 | 13 | 14 | 15 | 16 | 17 | 18 | 19 | 20 | 21 | 22 | 23 | 24 | 25 | 26 | 27 | 28 | 29 | 30 | 31 |
| Januar | M | D | M | D | F | ||||||||||||||||||||||||||