Ferienhaus K6091 in Hybenvej 8, Lodbjerg Hede
Das 181m2 große Ferienhaus im Hybenvej 8 in Lodberg Hede mit Pool, Sauna und Whirlpool bietet Platz für 12 Personen und 2 Hunde. Ob im großzügigen Poolbereich mit dem hauseigenen Pool, Whirlpool und der Sauna oder im gemütlichen Wohnzimmer mit Kamin, hier kommt jeder auf seine Kosten.
Entspannung pur in der Sauna oder im Pool
Das geräumige Ferienhaus heißt euch und eure Vierbeiner herzlichst willkommen. Am Ferienhaus angekommen, kann der Urlaub direkt beginnen. Packt eure Sachen in die 5 Schlafzimmer mit 4 Doppelbetten, 2 Hochbetten, die Platz für 12 Personen bieten und dann ab in den Poolbereich. Tobt euch im Pool aus, entspannt im Whirlpool oder in der Sauna und genießt danach eure Köstlichkeiten, welche ihr in der gut ausgestatteten Küche zubereitet habt.
Im ebenfalls offenen Wohnzimmer könnt ihr vor dem Kamin entspannen oder viele, auch deutsche, Fernsehkanäle über den Apple TV anschauen. Im Ferienhaus stehen euch 2 Badezimmer zur Verfügung, wo ihr auch die Waschmaschine und den Trockner findet. Einem tollen Urlaub steht also nichts im Wege
Großes Grundstück im Hybenvej 8 in Lodberg Hede
Das 2093m2 große Naturgrundstück bietet viele Möglichkeiten für die ganze Familie. Die Kinder werden viel Spaß mit der Schaukel und der Sandkiste haben, während sich die Hunde richtig austoben können. Auf der geschützten Terrasse könnt ihr beim Sonnenbad oder beim Grillen herrliche Stunden verleben. Begeistert euch an den wunderschönen Sonnenuntergängen über den Dünen und macht euch auf den Weg zum Strand und schaut der Sonne zu, wie sie im Meer versinkt und den Himmel in den schönsten Farben einfärbt.
Erfreut euch an der Ruhe und der Natur von Lodberg Hede und kostet die schöne Urlaubszeit in vollen Zügen aus.
Den Golfplatz und viel Natur direkt vor der Tür
Lodberg Hede bietet dir eine ruhige Umgebung, die allerdings auch in direkter Nähe zum ”Trubel” von Søndervig liegt. Ihr könnt hier in der Natur richtig entspannen und habt kurze Wege zum Strand und zum Zentrum von Søndervig. Hier gibt es eine Vielzahl an Geschäften und Restaurants, die euren Urlaub bereichern werden. Eine Reise nach Ringkøbing, der schönen Handelsstadt mit “hyggeligen” Hafen, solltet ihr ebenfalls unbedingt mit einplanen. Oder versucht euch doch beim Golfen. Der Platz bietet für jeden Leistungsstand etwas. Auch Anfänger können hier unkompliziert den Golfsport kennenlernen und sich ausprobieren.
Hausbilder
Ausstattung
Allgemeines
- Anzahl Haustiere maximal: 2
- Anzahl Personen: 12
- Anzahl Personen: 12
- Baujahr: 1996
- Grundstücksfläche: 2.093 m²
- Haustiere erlaubt
- Inkl. Endreinigung
- Nichtraucher
- Renovierung: 2019
- Wohnfläche: 181 m²
Entfernungen
- Abstand Einkauf: 3.500 m
- Abstand Wasser: 1.600 m Nordsee
Wohnbereich
- Flachbildfernseher
- Kaminofen
Schlafbereich
- Anzahl Einzelbetten: 9
- Anzahl Etagenbetten : 1
- Anzahl Schlafzimmer: 5
Küche
- Geschirrspüler
- Herd mit Backofen
- Kühlschrank
- Mikrowelle
- Tiefkühler: 109 l
Bad
- Anzahl Badezimmer: 2
- Trockner
- Waschmaschine
Wellness
- Pool mit Gegenstromanlage
- Poolgröße: 21 m² Anzahl Personen Standwasserwhirlpool
- Poolgröße: 6 Anzahl Personen Standwasserwhirlpool
- Sauna
Multimedia
- Deutsches Fernsehen Dänische und Deutsche
- Internet
- Radio
Aussenbereich
- Gartenmöbel
- Grundstück Rasengrundstück
- Grill Gasgrill
- Liegestuhl
- Sandkiste
- Schaukel
- Sonnenschirm
-
Terrasse: 1 abgeschirmt
offen
Sonstiges
- Fußbodenheizung Bad
- Hauswechseltag Freitag
- Kinderbett
- Kinderhochstuhl
- Wärmepumpe Luft-Wasser
- Wärmepumpe Luft-Wasser
Neben- und Verbrauchskosten
Die aktuellen Verbrauchskosten finden Sie im nächsten Schritt im Buchungsformular.
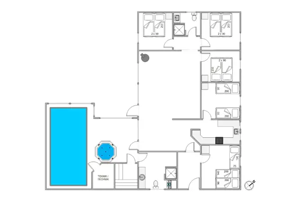
Raumaufteilung
Lageplan
Ferienhaus K6091
Hybenvej 8
Lodbjerg Hede
6950 Ringkøbing
Belegungskalender
- Reisedauer auswählen
- Anzahl Reisende auswählen
- Anreisetag im Belegungskalender anklicken
- Sie bekommen Verfügbarkeit und Preis angezeigt
| 2026 | 1 | 2 | 3 | 4 | 5 | 6 | 7 | 8 | 9 | 10 | 11 | 12 | 13 | 14 | 15 | 16 | 17 | 18 | 19 | 20 | 21 | 22 | 23 | 24 | 25 | 26 | 27 | 28 | 29 | 30 | 31 |
| Mai | F | S | S | M | D | M | D | F | S | S | M | D | M | D | F | S | S | M | D | M | D | F | S | S | M | D | M | D | F | S | S |
| Juni | M | D | M | D | F | S | S | M | D | M | D | F | S | S | M | D | M | D | F | S | S | M | D | M | D | F | S | S | M | D | |
| Juli | M | D | F | S | S | M | D | M | D | F | S | S | M | D | M | D | F | S | S | M | D | M | D | F | S | S | M | D | M | D | F |
| August | S | S | M | D | M | D | F | S | S | M | D | M | D | F | S | S | M | D | M | D | F | S | S | M | D | M | D | F | S | S | M |
| September | D | M | D | F | S | S | M | D | M | D | F | S | S | M | D | M | D | F | S | S | M | D | M | D | F | S | S | M | D | M | |
| Oktober | D | F | S | S | M | D | M | D | F | S | S | M | D | M | D | F | S | S | M | D | M | D | F | S | S | M | D | M | D | F | S |
| November | S | M | D | M | D | F | S | S | M | D | M | D | F | S | S | M | D | M | D | F | S | S | M | D | M | D | F | S | S | M | |
| Dezember | D | M | D | F | S | S | M | D | M | D | F | S | S | M | D | M | D | F | S | S | M | D | M | D | F | S | S | M | D | M | D |
| 2027 | 1 | 2 | 3 | 4 | 5 | 6 | 7 | 8 | 9 | 10 | 11 | 12 | 13 | 14 | 15 | 16 | 17 | 18 | 19 | 20 | 21 | 22 | 23 | 24 | 25 | 26 | 27 | 28 | 29 | 30 | 31 |
| Januar | F | S | S | M | D | M | D | F | S | S | M | D | M | D | F | S | S | M | D | M | D | F | S | S | M | D | M | D | F | S | S |
| Februar | M | D | M | D | F | S | S | M | D | M | D | F | S | S | M | D | M | D | F | S | S | M | D | M | D | F | S | S | |||
| März | M | D | M | D | F | S | S | M | D | M | D | F | S | S | M | D | M | D | F | S | S | M | D | M | D | F | S | S | M | D | M |
| April | D | F | S | S | M | D | M | D | F | S | S | M | D | M | D | F | S | S | M | D | M | D | F | S | S | M | D | M | D | F | |
| Mai | S | S | M | D | M | D | F | S | S | M | D | M | D | F | S | S | M | D | M | D | F | S | S | M | D | M | D | F | S | S | M |
| Juni | D | M | D | F | S | S | M | D | M | D | F | S | S | M | D | M | D | F | S | S | M | D | M | D | F | S | S | M | D | M | |
| Juli | D | F | S | S | M | D | M | D | F | S | S | M | D | M | D | F | S | S | M | D | M | D | F | S | S | M | D | M | D | F | S |
| August | S | M | D | M | D | F | S | S | M | D | M | D | F | S | S | M | D | M | D | F | S | S | M | D | M | D | F | S | S | M | D |
| September | M | D | F | S | S | M | D | M | D | F | S | S | M | D | M | D | F | S | S | M | D | M | D | F | S | S | M | D | M | D | |
| Oktober | F | S | S | M | D | M | D | F | S | S | M | D | M | D | F | S | S | M | D | M | D | F | S | S | M | D | M | D | F | S | S |
| November | M | D | M | D | F | S | S | M | D | M | D | F | S | S | M | D | M | D | F | S | S | M | D | M | D | F | S | S | M | D | |
| Dezember | M | D | F | S | S | M | D | M | D | F | S | S | M | D | M | D | F | S | S | M | D | M | D | F | S | S | M | D | M | D | F |
| 2028 | 1 | 2 | 3 | 4 | 5 | 6 | 7 | 8 | 9 | 10 | 11 | 12 | 13 | 14 | 15 | 16 | 17 | 18 | 19 | 20 | 21 | 22 | 23 | 24 | 25 | 26 | 27 | 28 | 29 | 30 | 31 |
| Januar | S | S | M | D | M | D | F | S | S | M | D | M | D | F | S | S | M | D | M | D | F | S | S | M | D | M | D | F | S | S | M |
| Februar | D | M | D | F | S | S | M | D | M | D | F | S | S | M | D | M | D | F | S | S | M | D | M | D | F | S | S | M | D | ||
| März | M | D | F | S | S | M | D | M | D | F | S | S | M | D | M | D | F | S | S | M | D | M | D | F | S | S | M | D | M | D | F |
| April | S | S | M | D | M | D | F | S | S | M | D | M | D | F | S | S | M | D | M | D | F | S | S | M | D | M | D | F | S | S | |
| Mai | M | D | M | D | F | S | S | M | D | M | D | F | S | S | M | D | M | D | F | S | S | M | D | M | D | F | S | S | M | D | M |
| Juni | D | F | S | S | M | D | M | D | F | S | S | M | D | M | D | F | S | S | M | D | M | D | F | S | S | M | D | M | D | F | |
| Juli | S | S | M | D | M | D | F | S | S | M | D | M | D | F | S | S | M | D | M | D | F | S | S | M | D | M | D | F | S | S | M |
| August | D | M | D | F | S | S | M | D | M | D | F | S | S | M | D | M | D | F | S | S | M | D | M | D | F | S | S | M | D | M | D |
| September | F | S | S | M | D | M | D | F | S | S | M | D | M | D | F | S | S | M | D | M | D | F | S | S | M | D | M | D | F | S | |
| Oktober | S | M | D | M | D | F | S | S | M | D | M | D | F | S | S | M | D | M | D | F | S | S | M | D | M | D | F | S | S | M | D |
| November | M | D | F | S | S | M | D | M | D | F | S | S | M | D | M | D | F | S | S | M | D | M | D | F | S | S | M | D | M | D | |
| Dezember | F | S | S | M | D | M | D | F | S | S | M | D | M | D | F | S | S | M | D | M | D | F | S | S | M | D | M | D | F | S | S |
| 2029 | 1 | 2 | 3 | 4 | 5 | 6 | 7 | 8 | 9 | 10 | 11 | 12 | 13 | 14 | 15 | 16 | 17 | 18 | 19 | 20 | 21 | 22 | 23 | 24 | 25 | 26 | 27 | 28 | 29 | 30 | 31 |
| Januar | M | D | M | D | F | S | S | M | D | M | D | F | S | S | M | D | M | D | F | S | |||||||||||