Ferienhaus i6497 in Hjelmevej 85, Søndervig
Dieses kleine Ferienhaus 75 m2 liegt auf einem großen Grundstück im Hjelmevej 85 in Søndervig. Es bietet Platz für 4 Personen und 2 Hunde. Hier könnt ihr euch prima erholen und da die Terrasse geschlossen ist, kann hier keiner verloren gehen. Das Ferienhaus liegt ruhig und ungestört und ist gut durch große Hagebuttenbüsche abgeschirmt.
Schönes, kleines Ferienhaus mit Holzofen im Hjelmevej 85
Das Ferienhaus bietet euch einen helles und offenes Wohnkonzept. Die Küche wurde im Jahr 2025 neu eingebaut. Hier könnt ihr viel Zeit miteinander verbringen, egal ob ihr zusammen neue Rezepte ausprobiert oder am Esstisch lustige Spieleabende verbringt. Nach den kulinarischen Aktivitäten könnt ihr der Spülmaschine den lästigen Abwasch überlassen. An kühleren Abenden sorgt der Holzofen für kuschelige Gemütlichkeit, ansonsten gibt es im Wohnbereich eine Fußbodenheizung. Um den Geldbeutel zu schonen, wurde eine energiesparende Luft-zu-Luft Wärmepumpe installiert, die im Wohnbereich für ein konstantes und angenehmes Raumklima sorgt.
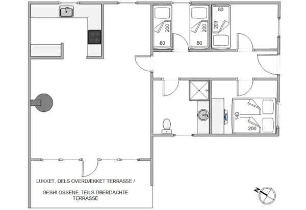
Es stehen euch 3 Schlafzimmern zur Verfügung, wovon eines mit einem Doppelbett und die anderen jeweils mit Einzelbetten ausgestattet sind. Das helle Badezimmer mit Fußbodenheizung sorgt für einen angenehmen Start in den Tag. Die Waschmaschine im Ferienhaus trägt sicherlich zur Reduzierung des Reisegepäcks bei.
Schöne, geschlossene Terrasse
Vom Wohnzimmer gelangt ihr direkt auf die geschlossene und abgeschirmte Terrasse. Macht es euch auf den Liegen oder bei einer leckeren Grillmahlzeit so richtig bequem. Die Kinder können sich hier stundenlang auspowern, während ihr euch entspannt zurücklehnt und in einem guten Buch versinkt. Sollte das Wetter einmal umschlagen, bietet euch die teils überdachte Terrasse Schutz. Die geschlossene Terrasse sorgt, dafür das hier keiner allein auf Entdeckungsreise gehen kann. Wenn ihr mit den Kindern auf dem Grundstück spielt, kann euer Hund euch zuschauen, da ein Teil des Zaunes zum Durchschauen gebaute wurde.
Nah an Søndervig – viele Aktivitätsmöglichkeiten
Unternehmt einen Spaziergang zum nur ca. 750 m entfernt liegendem Strand. Hier könnt ihr Muscheln suchen, euch an warmen Tagen in den Sand legen oder ein erfrischendes Bad in der Nordsee genießen. Besucht die vielen hübschen Läden und Restaurants im Zentrum von Søndervig das nur ca. 1500 m entfernt liegt. Besucht von Mai-Oktober das Sandskulpturenfestival und staunt, was man aus Sand alles zaubern kann. Das Lalandia bietet den Indoorspielplatz Monky-Tonky Land, wo die kleinen Gäste auch bei nicht so gutem Wetter eine Menge Spaß haben können.
Auch die nähere Umgebung hat viel zu bieten. Fahrt doch einmal nach Ringkøbing oder Hvide Sande und schaut dort einmal in den gemütlichen Häfen vorbei. Eine Hafenrundfahrt ist bestimmt ein Highlight, wenn man sich das Ganze einmal von der Wasserseite ansehen kann. Auch die ortsansässige Surfschule in Hvide Sande wird bestimmt bei den Kids für viel Vergnügen sorgen.
Hausbilder
Ausstattung
Allgemeines
- Anzahl Haustiere maximal: 2
- Anzahl Personen: 5
- Anzahl Personen: 4
- Baujahr: 1978
- Grundstücksfläche: 1.800 m²
- Haustiere erlaubt
- Nichtraucher
- Renovierung: 2025
- Wohnfläche: 75 m²
Entfernungen
- Abstand Einkauf: 1.500 m
- Abstand Wasser: 750 m Nordsee
Wohnbereich
- Flachbildfernseher
- Kaminofen
Schlafbereich
- Anzahl Doppelbetten: 1
- Anzahl Einzelbetten: 3
- Anzahl Schlafzimmer: 3
Küche
- Geschirrspüler
- Herd mit Backofen
- Kühlschrank
- Mikrowelle
- Tiefkühler: 10 l
Bad
- Anzahl Badezimmer: 1
- Waschmaschine
Multimedia
- Deutsches Fernsehen
- Internationales Fernsehen
- Internet
- Radio
Aussenbereich
- Gartenmöbel
- Grundstück Naturgrundstück
- Grill
- Liegestuhl
- Terrasse: 1 abgeschirmt
- Terrasse, geschlossen
Sonstiges
-
Fußbodenheizung Bad
Schlafzimmer
Wohnbereich - Hauswechseltag Freitag
- Wärmepumpe
Neben- und Verbrauchskosten
Die aktuellen Verbrauchskosten finden Sie im nächsten Schritt im Buchungsformular.
Raumaufteilung
Lageplan
Ferienhaus i6497
Hjelmevej 85
Søndervig
6950 Ringkøbing
Belegungskalender
- Reisedauer auswählen
- Anzahl Reisende auswählen
- Anreisetag im Belegungskalender anklicken
- Sie bekommen Verfügbarkeit und Preis angezeigt
| 2026 | 1 | 2 | 3 | 4 | 5 | 6 | 7 | 8 | 9 | 10 | 11 | 12 | 13 | 14 | 15 | 16 | 17 | 18 | 19 | 20 | 21 | 22 | 23 | 24 | 25 | 26 | 27 | 28 | 29 | 30 | 31 |
| Mai | F | S | S | M | D | M | D | F | S | S | M | D | M | D | F | S | S | M | D | M | D | F | S | S | M | D | M | D | F | S | S |
| Juni | M | D | M | D | F | S | S | M | D | M | D | F | S | S | M | D | M | D | F | S | S | M | D | M | D | F | S | S | M | D | |
| Juli | M | D | F | S | S | M | D | M | D | F | S | S | M | D | M | D | F | S | S | M | D | M | D | F | S | S | M | D | M | D | F |
| August | S | S | M | D | M | D | F | S | S | M | D | M | D | F | S | S | M | D | M | D | F | S | S | M | D | M | D | F | S | S | M |
| September | D | M | D | F | S | S | M | D | M | D | F | S | S | M | D | M | D | F | S | S | M | D | M | D | F | S | S | M | D | M | |
| Oktober | D | F | S | S | M | D | M | D | F | S | S | M | D | M | D | F | S | S | M | D | M | D | F | S | S | M | D | M | D | F | S |
| November | S | M | D | M | D | F | S | S | M | D | M | D | F | S | S | M | D | M | D | F | S | S | M | D | M | D | F | S | S | M | |
| Dezember | D | M | D | F | S | S | M | D | M | D | F | S | S | M | D | M | D | F | S | S | M | D | M | D | F | S | S | M | D | M | D |
| 2027 | 1 | 2 | 3 | 4 | 5 | 6 | 7 | 8 | 9 | 10 | 11 | 12 | 13 | 14 | 15 | 16 | 17 | 18 | 19 | 20 | 21 | 22 | 23 | 24 | 25 | 26 | 27 | 28 | 29 | 30 | 31 |
| Januar | F | S | S | M | D | M | D | F | S | S | M | D | M | D | F | S | S | M | D | M | D | F | S | S | M | D | M | D | F | S | S |
| Februar | M | D | M | D | F | S | S | M | D | M | D | F | S | S | M | D | M | D | F | S | S | M | D | M | D | F | S | S | |||
| März | M | D | M | D | F | S | S | M | D | M | D | F | S | S | M | D | M | D | F | S | S | M | D | M | D | F | S | S | M | D | M |
| April | D | F | S | S | M | D | M | D | F | S | S | M | D | M | D | F | S | S | M | D | M | D | F | S | S | M | D | M | D | F | |
| Mai | S | S | M | D | M | D | F | S | S | M | D | M | D | F | S | S | M | D | M | D | F | S | S | M | D | M | D | F | S | S | M |
| Juni | D | M | D | F | S | S | M | D | M | D | F | S | S | M | D | M | D | F | S | S | M | D | M | D | F | S | S | M | D | M | |
| Juli | D | F | S | S | M | D | M | D | F | S | S | M | D | M | D | F | S | S | M | D | M | D | F | S | S | M | D | M | D | F | S |
| August | S | M | D | M | D | F | S | S | M | D | M | D | F | S | S | M | D | M | D | F | S | S | M | D | M | D | F | S | S | M | D |
| September | M | D | F | S | S | M | D | M | D | F | S | S | M | D | M | D | F | S | S | M | D | M | D | F | S | S | M | D | M | D | |
| Oktober | F | S | S | M | D | M | D | F | S | S | M | D | M | D | F | S | S | M | D | M | D | F | S | S | M | D | M | D | F | S | S |
| November | M | D | M | D | F | S | S | M | D | M | D | F | S | S | M | D | M | D | F | S | S | M | D | M | D | F | S | S | M | D | |
| Dezember | M | D | F | S | S | M | D | M | D | F | S | S | M | D | M | D | F | S | S | M | D | M | D | F | S | S | M | D | M | D | F |
| 2028 | 1 | 2 | 3 | 4 | 5 | 6 | 7 | 8 | 9 | 10 | 11 | 12 | 13 | 14 | 15 | 16 | 17 | 18 | 19 | 20 | 21 | 22 | 23 | 24 | 25 | 26 | 27 | 28 | 29 | 30 | 31 |
| Januar | S | S | M | D | M | D | F | S | S | M | D | M | D | F | S | S | M | D | M | D | F | S | S | M | D | M | D | F | S | S | M |
| Februar | D | M | D | F | S | S | M | D | M | D | F | S | S | M | D | M | D | F | S | S | M | D | M | D | F | S | S | M | D | ||
| März | M | D | F | S | S | M | D | M | D | F | S | S | M | D | M | D | F | S | S | M | D | M | D | F | S | S | M | D | M | D | F |
| April | S | S | M | D | M | D | F | S | S | M | D | M | D | F | S | S | M | D | M | D | F | S | S | M | D | M | D | F | S | S | |
| Mai | M | D | M | D | F | S | S | M | D | M | D | F | S | S | M | D | M | D | F | S | S | M | D | M | D | F | S | S | M | D | M |
| Juni | D | F | S | S | M | D | M | D | F | S | S | M | D | M | D | F | S | S | M | D | M | D | F | S | S | M | D | M | D | F | |
| Juli | S | S | M | D | M | D | F | S | S | M | D | M | D | F | S | S | M | D | M | D | F | S | S | M | D | M | D | F | S | S | M |
| August | D | M | D | F | S | S | M | D | M | D | F | S | S | M | D | M | D | F | S | S | M | D | M | D | F | S | S | M | D | M | D |
| September | F | S | S | M | D | M | D | F | S | S | M | D | M | D | F | S | S | M | D | M | D | F | S | S | M | D | M | D | F | S | |
| Oktober | S | M | D | M | D | F | S | S | M | D | M | D | F | S | S | M | D | M | D | F | S | S | M | D | M | D | F | S | S | M | D |
| November | M | D | F | S | S | M | D | M | D | F | S | S | M | D | M | D | F | S | S | M | D | M | D | F | S | S | M | D | M | D | |
| Dezember | F | S | S | M | D | M | D | F | S | S | M | D | M | D | F | S | S | M | D | M | D | F | S | S | M | D | M | D | F | S | S |
| 2029 | 1 | 2 | 3 | 4 | 5 | 6 | 7 | 8 | 9 | 10 | 11 | 12 | 13 | 14 | 15 | 16 | 17 | 18 | 19 | 20 | 21 | 22 | 23 | 24 | 25 | 26 | 27 | 28 | 29 | 30 | 31 |
| Januar | M | D | M | D | F | S | S | M | D | M | D | F | S | S | M | D | M | D | F | S | |||||||||||