Ferienhaus i6630 in Hafavej 45, Søndervig
Dieses schöne und gut eingerichtete Ferienhaus mit Whirlpool und Sauna sowie Platz für bis zu 6 Personen erwartet euch im Hafavej 45 in Søndervig. Das Ferienhaus ist sehr gut gelegen – nur einen Steinwurf vom Strand entfernt und fußläufig erreicht ihr die Hauptgeschäftsstraße von Søndervig, wo ihr Restaurants und Einzelhändel findet. Wenn ihr mit eurem E-Auto unterwegs seid, könnt ihr es direkt am Ferienhaus aufladen. Denkt nur daran, eure eigenen Kabel / Adapter mitzubringen.
Ferienhaus mit 2 Badezimmern - Whirlpool & Sauna
Dieses schöne Ferienhaus verfügt über ein Reetdach, eine gemütliche Einrichtung und gute Aufteilung. Bereits beim Betreten dieses Ferienhauses, fühlt man sich auf Anhieb wohl. Der Wohnbereich, die Essecke und die Küche wurden offen miteinander verbunden und bilden den Mittelpunkt des Hauses. Hier kann sich die ganze Familie aufhalten. An den kälteren Tagen, könnt ihr den Holzofen anmachen, der nicht nur für Wärme sorgt, sondern auch für eine gemütliche Stimmung. Außerdem sind natürlich auch ein Flachbildschirm-TV und kostenloser Internetzugang vorhanden.
Insgesamt gibt es 3 sehr schöne und helle Schlafräume, 2 mit Doppelbetten und in dem dritten Schlafzimmer stehen 2 Einzelbetten. Mit bis zu 6 Personen steht euch ausreichend Platz zur Verfügung. Im größeren Badezimmer ist ein Whirlpool und eine Sauna vorhanden , um ein paar Stunden zu entspannen. Zudem gibt es noch ein weiteres, kleineres Badezimmer im Haus, sodass hier auch gut Urlaub mit Freunden gemacht werden kann.
Schöne Terrassen im Hafavej 45
Das Ferienhaus auf Hafavej 45 ist von mehreren Terrassen umgeben, sodass man sich den ganzen Tag über draußen aufhalten und die schöne Umgebung genießen kann. Auf der einen Seite des Hauses wird die Terrasse von den Dünen vor dem Wind geschützt und die andere Terrasse ist eingezäunt, also ideal für Kleinkinder geeignet, damit diese nicht auf eigene Faust die Umgebung erkunden.
Genießt das schöne Wetter auf der Terrasse mit einem Kaltgetränk, während das Essen auf dem Grill zubereitet wird und schmiedet Pläne für die kommenden Tag - Holmsland Klit bietet euch einen guten Ausgangspunkt, um Ausflüge zu unternehmen oder einfach die Seele baumeln zu lassen und die umgebende Natur zu genießen.
Hausbilder
Ausstattung
Allgemeines
- Anzahl Personen: 6
- Anzahl Personen: 6
- Baujahr: 2010
- Grundstücksfläche: 1.548 m²
- Inkl. Endreinigung
- Nichtraucher
- Wohnfläche: 120 m²
Entfernungen
- Abstand Einkauf: 1.500 m
- Abstand Wasser: 150 m Nordsee
Wohnbereich
- Flachbildfernseher
- Kaminofen
- Schlafboden
Schlafbereich
- Anzahl Doppelbetten: 2
- Anzahl Einzelbetten: 2
- Anzahl Schlafzimmer: 3
Küche
- Geschirrspüler
- Herd mit Backofen
- Kühlschrank
- Mikrowelle
- Tiefkühler: 45 l
Bad
- Anzahl Badezimmer: 2
- Trockner
- Waschmaschine
Wellness
- Poolgröße: 2 Anzahl Personen Whirlpool
- Sauna
Multimedia
- CD-Player
- Deutsches Fernsehen
- DVD-Player
- Internationales Fernsehen
- Internet
- Radio
Aussenbereich
- Gartenmöbel
- Grundstück Naturgrundstück
- Grill
- Liegestuhl
- Sandkiste
- Schaukel
- Sonnenschirm
- Terrasse, geschlossen
Sonstiges
- Besonderheiten Abstellraum
-
Fußbodenheizung Bad
Schlafzimmer
Wohnbereich - Hauswechseltag Freitag
- Ladestation für Elektroautos
- Wärmepumpe Luft-Wasser
Neben- und Verbrauchskosten
Die aktuellen Verbrauchskosten finden Sie im nächsten Schritt im Buchungsformular.
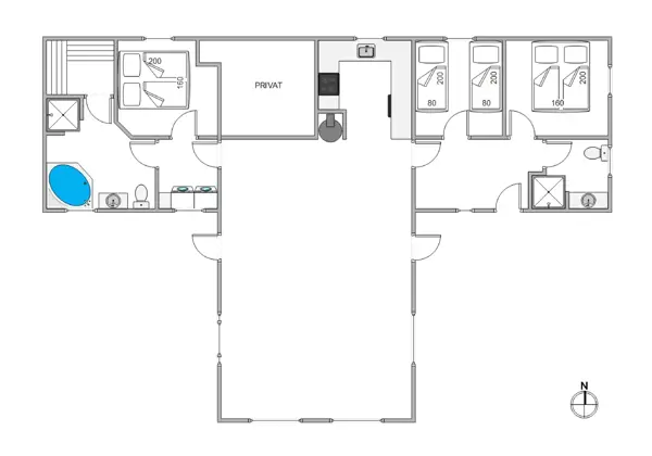
Raumaufteilung
Lageplan
Ferienhaus i6630
Hafavej 45
Søndervig
6950 Ringkøbing
Belegungskalender
- Reisedauer auswählen
- Anzahl Reisende auswählen
- Anreisetag im Belegungskalender anklicken
- Sie bekommen Verfügbarkeit und Preis angezeigt
| 2026 | 1 | 2 | 3 | 4 | 5 | 6 | 7 | 8 | 9 | 10 | 11 | 12 | 13 | 14 | 15 | 16 | 17 | 18 | 19 | 20 | 21 | 22 | 23 | 24 | 25 | 26 | 27 | 28 | 29 | 30 | 31 |
| Mai | F | S | S | M | D | M | D | F | S | S | M | D | M | D | F | S | S | M | D | M | D | F | S | S | M | D | M | D | F | S | S |
| Juni | M | D | M | D | F | S | S | M | D | M | D | F | S | S | M | D | M | D | F | S | S | M | D | M | D | F | S | S | M | D | |
| Juli | M | D | F | S | S | M | D | M | D | F | S | S | M | D | M | D | F | S | S | M | D | M | D | F | S | S | M | D | M | D | F |
| August | S | S | M | D | M | D | F | S | S | M | D | M | D | F | S | S | M | D | M | D | F | S | S | M | D | M | D | F | S | S | M |
| September | D | M | D | F | S | S | M | D | M | D | F | S | S | M | D | M | D | F | S | S | M | D | M | D | F | S | S | M | D | M | |
| Oktober | D | F | S | S | M | D | M | D | F | S | S | M | D | M | D | F | S | S | M | D | M | D | F | S | S | M | D | M | D | F | S |
| November | S | M | D | M | D | F | S | S | M | D | M | D | F | S | S | M | D | M | D | F | S | S | M | D | M | D | F | S | S | M | |
| Dezember | D | M | D | F | S | S | M | D | M | D | F | S | S | M | D | M | D | F | S | S | M | D | M | D | F | S | S | M | D | M | D |
| 2027 | 1 | 2 | 3 | 4 | 5 | 6 | 7 | 8 | 9 | 10 | 11 | 12 | 13 | 14 | 15 | 16 | 17 | 18 | 19 | 20 | 21 | 22 | 23 | 24 | 25 | 26 | 27 | 28 | 29 | 30 | 31 |
| Januar | F | S | S | M | D | M | D | F | S | S | M | D | M | D | F | S | S | M | D | M | D | F | S | S | M | D | M | D | F | S | S |
| Februar | M | D | M | D | F | S | S | M | D | M | D | F | S | S | M | D | M | D | F | S | S | M | D | M | D | F | S | S | |||
| März | M | D | M | D | F | S | S | M | D | M | D | F | S | S | M | D | M | D | F | S | S | M | D | M | D | F | S | S | M | D | M |
| April | D | F | S | S | M | D | M | D | F | S | S | M | D | M | D | F | S | S | M | D | M | D | F | S | S | M | D | M | D | F | |
| Mai | S | S | M | D | M | D | F | S | S | M | D | M | D | F | S | S | M | D | M | D | F | S | S | M | D | M | D | F | S | S | M |
| Juni | D | M | D | F | S | S | M | D | M | D | F | S | S | M | D | M | D | F | S | S | M | D | M | D | F | S | S | M | D | M | |
| Juli | D | F | S | S | M | D | M | D | F | S | S | M | D | M | D | F | S | S | M | D | M | D | F | S | S | M | D | M | D | F | S |
| August | S | M | D | M | D | F | S | S | M | D | M | D | F | S | S | M | D | M | D | F | S | S | M | D | M | D | F | S | S | M | D |
| September | M | D | F | S | S | M | D | M | D | F | S | S | M | D | M | D | F | S | S | M | D | M | D | F | S | S | M | D | M | D | |
| Oktober | F | S | S | M | D | M | D | F | S | S | M | D | M | D | F | S | S | M | D | M | D | F | S | S | M | D | M | D | F | S | S |
| November | M | D | M | D | F | S | S | M | D | M | D | F | S | S | M | D | M | D | F | S | S | M | D | M | D | F | S | S | M | D | |
| Dezember | M | D | F | S | S | M | D | M | D | F | S | S | M | D | M | D | F | S | S | M | D | M | D | F | S | S | M | D | M | D | F |
| 2028 | 1 | 2 | 3 | 4 | 5 | 6 | 7 | 8 | 9 | 10 | 11 | 12 | 13 | 14 | 15 | 16 | 17 | 18 | 19 | 20 | 21 | 22 | 23 | 24 | 25 | 26 | 27 | 28 | 29 | 30 | 31 |
| Januar | S | S | M | D | M | D | F | S | S | M | D | M | D | F | S | S | M | D | M | D | F | S | S | M | D | M | D | F | S | S | M |
| Februar | D | M | D | F | S | S | M | D | M | D | F | S | S | M | D | M | D | F | S | S | M | D | M | D | F | S | S | M | D | ||
| März | M | D | F | S | S | M | D | M | D | F | S | S | M | D | M | D | F | S | S | M | D | M | D | F | S | S | M | D | M | D | F |
| April | S | S | M | D | M | D | F | S | S | M | D | M | D | F | S | S | M | D | M | D | F | S | S | M | D | M | D | F | S | S | |
| Mai | M | D | M | D | F | S | S | M | D | M | D | F | S | S | M | D | M | D | F | S | S | M | D | M | D | F | S | S | M | D | M |
| Juni | D | F | S | S | M | D | M | D | F | S | S | M | D | M | D | F | S | S | M | D | M | D | F | S | S | M | D | M | D | F | |
| Juli | S | S | M | D | M | D | F | S | S | M | D | M | D | F | S | S | M | D | M | D | F | S | S | M | D | M | D | F | S | S | M |
| August | D | M | D | F | S | S | M | D | M | D | F | S | S | M | D | M | D | F | S | S | M | D | M | D | F | S | S | M | D | M | D |
| September | F | S | S | M | D | M | D | F | S | S | M | D | M | D | F | S | S | M | D | M | D | F | S | S | M | D | M | D | F | S | |
| Oktober | S | M | D | M | D | F | S | S | M | D | M | D | F | S | S | M | D | M | D | F | S | S | M | D | M | D | F | S | S | M | D |
| November | M | D | F | S | S | M | D | M | D | F | S | S | M | D | M | D | F | S | S | M | D | M | D | F | S | S | M | D | M | D | |
| Dezember | F | S | S | M | D | M | D | F | S | S | M | D | M | D | F | S | S | M | D | M | D | F | S | S | M | D | M | D | F | S | S |
| 2029 | 1 | 2 | 3 | 4 | 5 | 6 | 7 | 8 | 9 | 10 | 11 | 12 | 13 | 14 | 15 | 16 | 17 | 18 | 19 | 20 | 21 | 22 | 23 | 24 | 25 | 26 | 27 | 28 | 29 | 30 | 31 |
| Januar | M | D | M | D | F | S | S | M | D | M | D | F | S | S | M | D | M | D | F | S | |||||||||||