Ferienhaus i6740 in Jolanthavej 6, Søndervig
Das Ferienhaus in Søndervig, das euch auf 120 m² viel Platz für gemeinsame Auszeiten bietet, findet ihr im Jolanthavej 6. Hier verbringt ihr Urlaub mit bis zu 6 Personen und genießt eine durchdachte Ausstattung, die Entspannung und Alltagstauglichkeit ideal verbindet. Eure 2 Hunde sind hier auch herzlich willkommen. Der Strand liegt ca.500 m entfernt und Einkaufsmöglichkeiten findet ihr in 2000 m.
Holzofen und Wohlfühlatmosphäre
Im Mittelpunkt steht der offene Wohnbereich, der euch zusammenbringt – für Spieleabende, entspanntes Lesen oder einfach für das gute Gefühl, den Tag in einem angenehmen Ambiente ausklingen zu lassen. Der Holzofen sorgt dabei für Wärme und eine besonders gemütliche Stimmung, wenn draußen der Wind über die Dünen zieht. Große Flächen und ein luftiges Raumgefühl machen es leicht, abzuschalten. Eine Fußbodenheizung findet ihr im Wohnbereich, Badezimmer und in den Schlafräumen.
Die Küche ist so ausgestattet, dass ihr gemeinsam kochen könnt, egal ob es nur ein schnelles Frühstück vor dem Strand wird oder ein ausgedehntes Abendessen. Die Spülmaschine nimmt euch dabei einen großen Teil der Arbeit ab, damit mehr Zeit für Erholung bleibt. Kurze Wege, gute Aufteilung und ein stimmiges Gesamtbild sorgen dafür, dass Kochen im Urlaub leichtfällt und trotzdem Spaß macht.
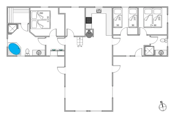
Damit jeder seinen Rückzugsort hat, stehen euch insgesamt 4 Schlafzimmer zur Verfügung. Zwei Schlafzimmer sind mit je einem Doppelbett ausgestattet und ein Schlafzimmer mit 2 Einzelbetten. Es gibt noch ein Zimmer mit einem Sofa und einen Flachbildschirm, hier kann z.B. die mitgebrachte Spielkonsole angeschlossen werden. So ist genug Platz, damit jeder seinen persönlichen Rückzugsort, um nachts die Batterien wieder aufzuladen.
Zwei Badezimmer sorgen für entspannte Morgenroutinen. Besonders angenehm ist die Fußbodenheizung im Bad, die euch auch an kühleren Tagen ein warmes Gefühl gibt. In einem der Badezimmer erwartet euch zudem eure persönliche Wellnesszone. In der hauseigenen Sauna und dem Whirlpool könnt ihr nach einem aktiven Tag herrlich abschalten. Die praktischen Alltagshelfer die Waschmaschine und der Trockner findet ihr ebenfalls im Ferienhaus.
Dünengrundstück und geschlossene Terrasse
Draußen wartet ein großzügiges Dünengrundstück mit 4271 m², das viel Raum für Bewegung und Freizeit bietet. Auf der abgeschirmten Terrasse sitzt ihr windgeschützt und genießt die frische Luft. Für lange Frühstücke, entspannte Nachmittage oder gesellige Abende stehen Gartenmöbel stehen bereit, und der Grill macht es leicht, euren Urlaubstag kulinarisch zu krönen. Für kleine Urlaubsgäste gibt es eine Schaukel und einen Sandkasten, sodass Spiel und Abwechslung direkt vor der Tür beginnen. Hier kann keiner allein auf Entdeckungsreise gehen, da die Terrasse geschlossen ist.
Natur und Einkaufsmöglichkeiten nah beieinander
Zum Strand sind es ca.500 m und ihr steht mit den Füßen im Sand. Hier könnt ihr im Sommer schöne Strandtage genießen und zwischendurch ein erfrischendes Bad nehmen. Lasst euch im Herbst vom Wind neue Frisuren kreieren und atmet einmal tief durch.
Zum Einkaufen, essen gehen oder für verschiedene Aktivitäten sind es 2000 m nach Søndervig. In der Umgebung gibt es mehrere angelegte Wege, die bis nach Hvide Sande verlaufen und sich gut für Fahrradtouren oder Spaziergänge eignen.
Hausbilder
Ausstattung
Allgemeines
- Anzahl Haustiere maximal: 2
- Anzahl Personen: 6
- Anzahl Personen: 6
- Baujahr: 2011
- Grundstücksfläche: 4.271 m²
- Haustiere erlaubt
- Nichtraucher
- Wohnfläche: 120 m²
Entfernungen
- Abstand Einkauf: 2.000 m
- Abstand Wasser: 500 m Nordsee
Wohnbereich
- Flachbildfernseher
- Kaminofen
- Schlafboden
Schlafbereich
- Anzahl Doppelbetten: 2
- Anzahl Einzelbetten: 2
- Anzahl Schlafcouches: 1
- Anzahl Schlafzimmer: 4
Küche
- Geschirrspüler
- Herd Induktion mit Backofen
- Kühlschrank
- Mikrowelle
- Tiefkühler: 90 l
Bad
- Anzahl Badezimmer: 2
- Trockner
- Waschmaschine
Wellness
- Poolgröße: 2 Anzahl Personen Whirlpool
- Sauna
Multimedia
- CD-Player
- Deutsches Fernsehen Dänische und Deutsche
- Deutsches Fernsehen Dänische und Deutsche
- DVD-Player
- Internationales Fernsehen
- Internet
- Radio
Aussenbereich
- Gartenmöbel
- Grundstück Dünengrundstück
- Grill
- Liegestuhl
- Sandkiste
- Schaukel
- Sonnenschirm
- Terrasse: 1 abgeschirmt
- Terrasse, geschlossen
Sonstiges
- Besonderheiten Abstellraum
-
Fußbodenheizung Bad
Schlafzimmer
Wohnbereich -
Fußbodenheizung Bad
Schlafzimmer
Wohnbereich - Hauswechseltag Freitag
- Wärmepumpe Luft-Wasser
Neben- und Verbrauchskosten
Die aktuellen Verbrauchskosten finden Sie im nächsten Schritt im Buchungsformular.
Raumaufteilung
Lageplan
Ferienhaus i6740
Jolanthavej 6
Søndervig
6950 Ringkøbing
Belegungskalender
- Reisedauer auswählen
- Anzahl Reisende auswählen
- Anreisetag im Belegungskalender anklicken
- Sie bekommen Verfügbarkeit und Preis angezeigt
| 2026 | 1 | 2 | 3 | 4 | 5 | 6 | 7 | 8 | 9 | 10 | 11 | 12 | 13 | 14 | 15 | 16 | 17 | 18 | 19 | 20 | 21 | 22 | 23 | 24 | 25 | 26 | 27 | 28 | 29 | 30 | 31 |
| Mai | F | S | S | M | D | M | D | F | S | S | M | D | M | D | F | S | S | M | D | M | D | F | S | S | M | D | M | D | F | S | S |
| Juni | M | D | M | D | F | S | S | M | D | M | D | F | S | S | M | D | M | D | F | S | S | M | D | M | D | F | S | S | M | D | |
| Juli | M | D | F | S | S | M | D | M | D | F | S | S | M | D | M | D | F | S | S | M | D | M | D | F | S | S | M | D | M | D | F |
| August | S | S | M | D | M | D | F | S | S | M | D | M | D | F | S | S | M | D | M | D | F | S | S | M | D | M | D | F | S | S | M |
| September | D | M | D | F | S | S | M | D | M | D | F | S | S | M | D | M | D | F | S | S | M | D | M | D | F | S | S | M | D | M | |
| Oktober | D | F | S | S | M | D | M | D | F | S | S | M | D | M | D | F | S | S | M | D | M | D | F | S | S | M | D | M | D | F | S |
| November | S | M | D | M | D | F | S | S | M | D | M | D | F | S | S | M | D | M | D | F | S | S | M | D | M | D | F | S | S | M | |
| Dezember | D | M | D | F | S | S | M | D | M | D | F | S | S | M | D | M | D | F | S | S | M | D | M | D | F | S | S | M | D | M | D |
| 2027 | 1 | 2 | 3 | 4 | 5 | 6 | 7 | 8 | 9 | 10 | 11 | 12 | 13 | 14 | 15 | 16 | 17 | 18 | 19 | 20 | 21 | 22 | 23 | 24 | 25 | 26 | 27 | 28 | 29 | 30 | 31 |
| Januar | F | S | S | M | D | M | D | F | S | S | M | D | M | D | F | S | S | M | D | M | D | F | S | S | M | D | M | D | F | S | S |
| Februar | M | D | M | D | F | S | S | M | D | M | D | F | S | S | M | D | M | D | F | S | S | M | D | M | D | F | S | S | |||
| März | M | D | M | D | F | S | S | M | D | M | D | F | S | S | M | D | M | D | F | S | S | M | D | M | D | F | S | S | M | D | M |
| April | D | F | S | S | M | D | M | D | F | S | S | M | D | M | D | F | S | S | M | D | M | D | F | S | S | M | D | M | D | F | |
| Mai | S | S | M | D | M | D | F | S | S | M | D | M | D | F | S | S | M | D | M | D | F | S | S | M | D | M | D | F | S | S | M |
| Juni | D | M | D | F | S | S | M | D | M | D | F | S | S | M | D | M | D | F | S | S | M | D | M | D | F | S | S | M | D | M | |
| Juli | D | F | S | S | M | D | M | D | F | S | S | M | D | M | D | F | S | S | M | D | M | D | F | S | S | M | D | M | D | F | S |
| August | S | M | D | M | D | F | S | S | M | D | M | D | F | S | S | M | D | M | D | F | S | S | M | D | M | D | F | S | S | M | D |
| September | M | D | F | S | S | M | D | M | D | F | S | S | M | D | M | D | F | S | S | M | D | M | D | F | S | S | M | D | M | D | |
| Oktober | F | S | S | M | D | M | D | F | S | S | M | D | M | D | F | S | S | M | D | M | D | F | S | S | M | D | M | D | F | S | S |
| November | M | D | M | D | F | S | S | M | D | M | D | F | S | S | M | D | M | D | F | S | S | M | D | M | D | F | S | S | M | D | |
| Dezember | M | D | F | S | S | M | D | M | D | F | S | S | M | D | M | D | F | S | S | M | D | M | D | F | S | S | M | D | M | D | F |
| 2028 | 1 | 2 | 3 | 4 | 5 | 6 | 7 | 8 | 9 | 10 | 11 | 12 | 13 | 14 | 15 | 16 | 17 | 18 | 19 | 20 | 21 | 22 | 23 | 24 | 25 | 26 | 27 | 28 | 29 | 30 | 31 |
| Januar | S | S | M | D | M | D | F | S | S | M | D | M | D | F | S | S | M | D | M | D | F | S | S | M | D | M | D | F | S | S | M |
| Februar | D | M | D | F | S | S | M | D | M | D | F | S | S | M | D | M | D | F | S | S | M | D | M | D | F | S | S | M | D | ||
| März | M | D | F | S | S | M | D | M | D | F | S | S | M | D | M | D | F | S | S | M | D | M | D | F | S | S | M | D | M | D | F |
| April | S | S | M | D | M | D | F | S | S | M | D | M | D | F | S | S | M | D | M | D | F | S | S | M | D | M | D | F | S | S | |
| Mai | M | D | M | D | F | S | S | M | D | M | D | F | S | S | M | D | M | D | F | S | S | M | D | M | D | F | S | S | M | D | M |
| Juni | D | F | S | S | M | D | M | D | F | S | S | M | D | M | D | F | S | S | M | D | M | D | F | S | S | M | D | M | D | F | |
| Juli | S | S | M | D | M | D | F | S | S | M | D | M | D | F | S | S | M | D | M | D | F | S | S | M | D | M | D | F | S | S | M |
| August | D | M | D | F | S | S | M | D | M | D | F | S | S | M | D | M | D | F | S | S | M | D | M | D | F | S | S | M | D | M | D |
| September | F | S | S | M | D | M | D | F | S | S | M | D | M | D | F | S | S | M | D | M | D | F | S | S | M | D | M | D | F | S | |
| Oktober | S | M | D | M | D | F | S | S | M | D | M | D | F | S | S | M | D | M | D | F | S | S | M | D | M | D | F | S | S | M | D |
| November | M | D | F | S | S | M | D | M | D | F | S | S | M | D | M | D | F | S | S | M | D | M | D | F | S | S | M | D | M | D | |
| Dezember | F | S | S | M | D | M | D | F | S | S | M | D | M | D | F | S | S | M | D | M | D | F | S | S | M | D | M | D | F | S | S |
| 2029 | 1 | 2 | 3 | 4 | 5 | 6 | 7 | 8 | 9 | 10 | 11 | 12 | 13 | 14 | 15 | 16 | 17 | 18 | 19 | 20 | 21 | 22 | 23 | 24 | 25 | 26 | 27 | 28 | 29 | 30 | 31 |
| Januar | M | D | M | D | F | S | S | M | D | M | D | F | S | S | M | D | M | D | F | S | |||||||||||