Ferienhaus i0040 in Nordsøvej 94, Søndervig
Wenn ihr auf der Suche nach einem schönen Ferienhaus seid, das eine helle und moderne Atmosphäre ausstrahlt, könnte das Ferienhaus im Nordsøvej 94 eine gute Wahl für euch sein. Das Ferienhaus in Søndervig liegt auf einem schönen Naturgrundstück, auf dem euer Hund sich garantiert gerne austobt und all seine Energie verbrennt. Das Ferienhaus bietet euch Platz für bis zu 6 Personen, was ideal für Familien ist, die in der Nähe von Søndervig Urlaub machen möchten.
Euer Elektroauto könnt ihr direkt an einer Ladestation beim Ferienhaus aufladen. Bitte denkt an euer eigenes Kabel/Adapter.
Schönes Ferienhaus mit einer hauseigenen Sauna
In diesem gemütlichen Ferienhaus könnt ihr euch richtig entspannen und einen schönen Urlaub mit der Familie oder mit Freunden verbringen. Das Ferienhaus wurde renoviert und hell und modern eingerichtet, und die schöne, offene Küche lädt zu gemütlichen Momenten mit der Familie beim Kochen und Planen der Urlaubsaktivitäten ein.
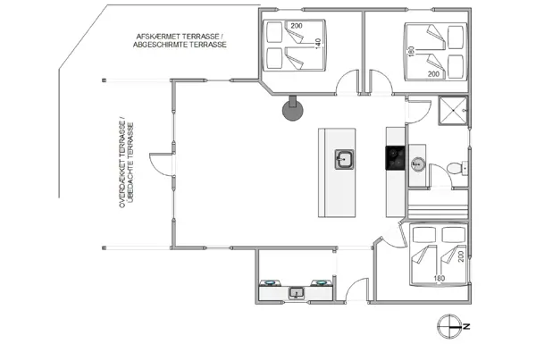
Das Ferienhaus bietet Platz für 6 Personen in 3 Schlafzimmern, die jeweils mit einem Doppelbett ausgestattet sind. Hier könnt ihr nach einem langen Tag eure Batterien wieder aufladen. Außerdem gibt es ein schönes und geräumiges Badezimmer mit Zugang zur hauseigenen Sauna, die besonders an kühleren Tagen zu Entspannung, Wärme und Wohlbefinden für Körper und Seele einlädt.
Tolle Lage, nah am Strand und dem Zentrum Søndervigs am Nordsøvej 94
Vor dem Ferienhaus Nordsøvej 94 findet ihr eine teilweise überdachte Südterrasse, auf der ihr euch auf den Gartenmöbeln und Liegestühlen des Ferienhauses zurücklehnen und die Umgebung und die frische Seeluft genießen könnt, während der Grill für ein leckeres Abendessen sorgt.
Das Ferienhaus hat eine schöne Lage in Søndervig, nahe dem Zentrum des gemütlichen Bade- und Touristenortes. Das Zentrum von Søndervig mit seinen Geschäften, Restaurants. Im Lalandia findet ihr den großartigen Indoorspielplatz Monky Tonk Land,wo die Kids sich an einem regnerischen Tag so richtig austoben können. Søndervig ist bei Urlaubern aus nah und fern beliebt und wird häufig besucht, denn hier und im Fischerdorf Hvide Sande gibt es spannende Geschäfte, verschiedene Gaststätten.Das Ferienhaus ist daher ideal für diejenigen, die ihren Urlaub in der Nähe von Meer, Strand und Søndervig verbringen möchten.
Besucht die umliegenden Antikmärkte oder die Hofläden, wo ihr bestimmt ein Schnäppchen findet oder eine neue leckere Köstlichkeit kennenlernt.
* Es gibt nur 3 deutsche Fernsehsender
Hausbilder
Ausstattung
Allgemeines
- Anzahl Haustiere maximal: 1
- Anzahl Personen: 6
- Baujahr: 2011
- Grundstücksfläche: 1.078 m²
- Haustiere erlaubt
- Nichtraucher
- Wohnfläche: 105 m²
Entfernungen
- Abstand Einkauf: 600 m
- Abstand Wasser: 350 m Nordsee
Wohnbereich
- Flachbildfernseher
- Kaminofen
Schlafbereich
- Anzahl Doppelbetten: 3
- Anzahl Schlafzimmer: 3
Küche
- Geschirrspüler
- Herd Induktion mit Backofen
- Kühlschrank mit Gefrierfach
- Mikrowelle
- Tiefkühler: 50 l
Bad
- Anzahl Badezimmer: 1
- Trockner
- Waschmaschine
Wellness
- Sauna
Multimedia
- Deutsches Fernsehen
- Internet
- Radio
Aussenbereich
- Gartenmöbel
- Grundstück Naturgrundstück
- Grill
- Liegestuhl
- Schaukel
-
Terrasse: 1 abgeschirmt
offen
Sonstiges
-
Fußbodenheizung Bad
Schlafzimmer - Hauswechseltag Sonntag
- Ladestation für Elektroautos
- Wärmepumpe
Neben- und Verbrauchskosten
Die aktuellen Verbrauchskosten finden Sie im nächsten Schritt im Buchungsformular.
Raumaufteilung
Lageplan
Ferienhaus i0040
Nordsøvej 94
Søndervig
6950 Ringkøbing
Belegungskalender
- Reisedauer auswählen
- Anzahl Reisende auswählen
- Anreisetag im Belegungskalender anklicken
- Sie bekommen Verfügbarkeit und Preis angezeigt
| 2026 | 1 | 2 | 3 | 4 | 5 | 6 | 7 | 8 | 9 | 10 | 11 | 12 | 13 | 14 | 15 | 16 | 17 | 18 | 19 | 20 | 21 | 22 | 23 | 24 | 25 | 26 | 27 | 28 | 29 | 30 | 31 |
| Mai | F | S | S | M | D | M | D | F | S | S | M | D | M | D | F | S | S | M | D | M | D | F | S | S | M | D | M | D | F | S | S |
| Juni | M | D | M | D | F | S | S | M | D | M | D | F | S | S | M | D | M | D | F | S | S | M | D | M | D | F | S | S | M | D | |
| Juli | M | D | F | S | S | M | D | M | D | F | S | S | M | D | M | D | F | S | S | M | D | M | D | F | S | S | M | D | M | D | F |
| August | S | S | M | D | M | D | F | S | S | M | D | M | D | F | S | S | M | D | M | D | F | S | S | M | D | M | D | F | S | S | M |
| September | D | M | D | F | S | S | M | D | M | D | F | S | S | M | D | M | D | F | S | S | M | D | M | D | F | S | S | M | D | M | |
| Oktober | D | F | S | S | M | D | M | D | F | S | S | M | D | M | D | F | S | S | M | D | M | D | F | S | S | M | D | M | D | F | S |
| November | S | M | D | M | D | F | S | S | M | D | M | D | F | S | S | M | D | M | D | F | S | S | M | D | M | D | F | S | S | M | |
| Dezember | D | M | D | F | S | S | M | D | M | D | F | S | S | M | D | M | D | F | S | S | M | D | M | D | F | S | S | M | D | M | D |
| 2027 | 1 | 2 | 3 | 4 | 5 | 6 | 7 | 8 | 9 | 10 | 11 | 12 | 13 | 14 | 15 | 16 | 17 | 18 | 19 | 20 | 21 | 22 | 23 | 24 | 25 | 26 | 27 | 28 | 29 | 30 | 31 |
| Januar | F | S | S | M | D | M | D | F | S | S | M | D | M | D | F | S | S | M | D | M | D | F | S | S | M | D | M | D | F | S | S |
| Februar | M | D | M | D | F | S | S | M | D | M | D | F | S | S | M | D | M | D | F | S | S | M | D | M | D | F | S | S | |||
| März | M | D | M | D | F | S | S | M | D | M | D | F | S | S | M | D | M | D | F | S | S | M | D | M | D | F | S | S | M | D | M |
| April | D | F | S | S | M | D | M | D | F | S | S | M | D | M | D | F | S | S | M | D | M | D | F | S | S | M | D | M | D | F | |
| Mai | S | S | M | D | M | D | F | S | S | M | D | M | D | F | S | S | M | D | M | D | F | S | S | M | D | M | D | F | S | S | M |
| Juni | D | M | D | F | S | S | M | D | M | D | F | S | S | M | D | M | D | F | S | S | M | D | M | D | F | S | S | M | D | M | |
| Juli | D | F | S | S | M | D | M | D | F | S | S | M | D | M | D | F | S | S | M | D | M | D | F | S | S | M | D | M | D | F | S |
| August | S | M | D | M | D | F | S | S | M | D | M | D | F | S | S | M | D | M | D | F | S | S | M | D | M | D | F | S | S | M | D |
| September | M | D | F | S | S | M | D | M | D | F | S | S | M | D | M | D | F | S | S | M | D | M | D | F | S | S | M | D | M | D | |
| Oktober | F | S | S | M | D | M | D | F | S | S | M | D | M | D | F | S | S | M | D | M | D | F | S | S | M | D | M | D | F | S | S |
| November | M | D | M | D | F | S | S | M | D | M | D | F | S | S | M | D | M | D | F | S | S | M | D | M | D | F | S | S | M | D | |
| Dezember | M | D | F | S | S | M | D | M | D | F | S | S | M | D | M | D | F | S | S | M | D | M | D | F | S | S | M | D | M | D | F |
| 2028 | 1 | 2 | 3 | 4 | 5 | 6 | 7 | 8 | 9 | 10 | 11 | 12 | 13 | 14 | 15 | 16 | 17 | 18 | 19 | 20 | 21 | 22 | 23 | 24 | 25 | 26 | 27 | 28 | 29 | 30 | 31 |
| Januar | S | S | M | D | M | D | F | S | S | M | D | M | D | F | S | S | M | D | M | D | F | S | S | M | D | M | D | F | S | S | M |
| Februar | D | M | D | F | S | S | M | D | M | D | F | S | S | M | D | M | D | F | S | S | M | D | M | D | F | S | S | M | D | ||
| März | M | D | F | S | S | M | D | M | D | F | S | S | M | D | M | D | F | S | S | M | D | M | D | F | S | S | M | D | M | D | F |
| April | S | S | M | D | M | D | F | S | S | M | D | M | D | F | S | S | M | D | M | D | F | S | S | M | D | M | D | F | S | S | |
| Mai | M | D | M | D | F | S | S | M | D | M | D | F | S | S | M | D | M | D | F | S | S | M | D | M | D | F | S | S | M | D | M |
| Juni | D | F | S | S | M | D | M | D | F | S | S | M | D | M | D | F | S | S | M | D | M | D | F | S | S | M | D | M | D | F | |
| Juli | S | S | M | D | M | D | F | S | S | M | D | M | D | F | S | S | M | D | M | D | F | S | S | M | D | M | D | F | S | S | M |
| August | D | M | D | F | S | S | M | D | M | D | F | S | S | M | D | M | D | F | S | S | M | D | M | D | F | S | S | M | D | M | D |
| September | F | S | S | M | D | M | D | F | S | S | M | D | M | D | F | S | S | M | D | M | D | F | S | S | M | D | M | D | F | S | |
| Oktober | S | M | D | M | D | F | S | S | M | D | M | D | F | S | S | M | D | M | D | F | S | S | M | D | M | D | F | S | S | M | D |
| November | M | D | F | S | S | M | D | M | D | F | S | S | M | D | M | D | F | S | S | M | D | M | D | F | S | S | M | D | M | D | |
| Dezember | F | S | S | M | D | M | D | F | S | S | M | D | M | D | F | S | S | M | D | M | D | F | S | S | M | D | M | D | F | S | S |
| 2029 | 1 | 2 | 3 | 4 | 5 | 6 | 7 | 8 | 9 | 10 | 11 | 12 | 13 | 14 | 15 | 16 | 17 | 18 | 19 | 20 | 21 | 22 | 23 | 24 | 25 | 26 | 27 | 28 | 29 | 30 | 31 |
| Januar | M | D | M | D | F | S | S | M | D | M | D | F | S | S | M | D | M | D | F | S | |||||||||||