Ferienhaus i6360 in Hjelmevej 6, Søndervig
Im Hjelmevej 6 in Søndervig erwartet euch dieses helle, gemütliche und gut ausgestattete Ferienhaus für bis zu 6 Personen auf 85m2. Eure Vierbeiner sind ebenfalls herzlich willkommen. Bis zu zwei Hunde dürfen hier die schönste Zeit des Jahres mit euch verbringen. Das Ferienhaus ist 900 Meter vom Meer entfernt, hat eine energiesparende Wärmepumpe und einen Kamin. Ein klassisches Ferienhaus zum Wohlfühlen.
Holzofen und Wärmepumpe
Die geschmackvolle Einrichtung des Ferienhauses in Kombination mit dem rustikalen Klinkerboden vermittelt euch von der ersten Minute an das richtige Urlaubsgefühl. Die offene, in den Wohnraum integrierte Küche bietet perfekte Möglichkeiten, leckere Gerichte zu zaubern und dennoch in Kontakt zu allen Familienmitgliedern zu bleiben, egal ob diese auf dem Sofa entspannen oder sich die Zeit mit einem Brettspiel am Esstisch vertreiben. Wenn ihr den Tag vor dem Fernseher ausklingen lassen möchtet, gibt es einen Fernseher, auf dem ihr 4 deutsche Fernsehprogramme empfangt.
Der Holzofen bietet zusätzlichen Komfort und eine gemütliche Wärme. Eine energiesparende Luft -zu-Luft Wärmepumpe sorgt das ganze Jahr über für angenehme Temperaturen im Wohnbereich. In Küche gibt es einen Geschirrspüler, damit ihr eure kostbare Zeit nicht mit dem Abwasch verschwenden müsst.
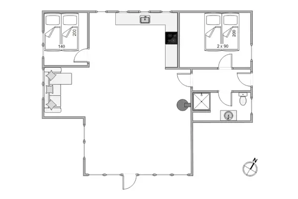
Die beiden Schlafzimmer des Hauses sind jeweils mit einem Doppelbett ausgestattet. Im großen Schlafzimmer gibt es einen Schrank, in dem ihr eure Sachen unterbringen könnt. Das Schlafsofa befindet sich in einer gemütlichen Ecke des Wohnzimmers und bietet weitere zwei Schlafmöglichkeiten. In den beiden Schlafzimmern wurden helle Holzböden verlegt, die dazu beitragen, eine gemütliche und angenehme Atmosphäre zu schaffen. Das Tageslichtbad verfügt über eine Fußbodenheizung, welche dafür sorgt, dass ihr keine kalten Füße bekommt, während ihr euch auf einen neuen, aufregenden Urlaubstag vorbereitet.
Naturgrundstück und überdachte Terrasse nach Süden
Durch die Terrassentür betretet ihr den überdachten und abgeschirmten Teil der Terrasse im Süden. Neben der nach Süden ausgerichteten Terrasse findet ihr auch rund um das Ferienhaus Terrassenbereiche mit Sitzmöglichkeiten und Sonnenliegen. Macht es euch draußen gemütlich, bei netten Grillabenden, was dank der überdachten Terrasse bei den verschiedensten Wetterbedingungen möglich ist. Auf dem großen Naturgrundstück gibt es ausreichend Platz für eure Kinder und Hunde, um herumzutoben oder Ball zu spielen, während ihr es euch vielleicht mit einem guten Buch in der Hand auf einem der Liegestühle bequem macht.
Gute Lage im Hjelmevej 6 - perfekt für Familien mit Hund
Das Ferienhaus liegt in Søndervig, in einem sehr beliebten Feriengebiet. Nur knapp 900 Meter trennen euch vom herrlichen Sandstrand und der Nordsee, welche das ganze Jahr über zu entspannten Spaziergängen entlang der Wasserkante und durch die Dünen einlädt. Eure Hunde werden die langen Spaziergänge in der Umgebung lieben und die viele gemeinsame Zeit mit euch in vollen Zügen genießen. In Søndervig findet ihr verschiedene Einkaufsmöglichkeiten, Restaurants und Cafés, sowie das große Freizeitbad Lalandia, mit Indoorspielplatz, und in den Sommermonaten könnt ihr das Sandskulpturenfestival besuchen.
* Es gibt 4 deutsche Kanäle in diesem Ferienhaus
Hausbilder
Ausstattung
Allgemeines
- Anzahl Haustiere maximal: 2
- Anzahl Personen: 4
- Anzahl Personen: 6
- Baujahr: 1977
- Grundstücksfläche: 1.312 m²
- Haustiere erlaubt
- Nichtraucher
- Renovierung: 2020
- Wohnfläche: 85 m²
Entfernungen
- Abstand Einkauf: 1.200 m
- Abstand Wasser: 900 m Nordsee
Wohnbereich
- Flachbildfernseher
- Kaminofen
Schlafbereich
- Anzahl Doppelbetten: 2
- Anzahl Schlafcouches (doppel): 1
- Anzahl Schlafzimmer: 2
Küche
- Geschirrspüler
- Herd mit Backofen
- Kühlschrank mit Gefrierfach
- Mikrowelle
Bad
- Anzahl Badezimmer: 1
Multimedia
- Deutsches Fernsehen Dänische und Deutsche
- Deutsches Fernsehen Dänische und Deutsche
- DVD-Player
- Internet
Aussenbereich
- Gartenmöbel
- Grundstück Naturgrundstück
- Grill
- Liegestuhl
-
Terrasse: 1 abgeschirmt
offen - Terrasse, überdacht
Sonstiges
- Fußbodenheizung Bad
- Hauswechseltag Samstag
- Wärmepumpe
Neben- und Verbrauchskosten
Die aktuellen Verbrauchskosten finden Sie im nächsten Schritt im Buchungsformular.
Raumaufteilung
Lageplan
Ferienhaus i6360
Hjelmevej 6
Søndervig
6950 Ringkøbing
Belegungskalender
- Reisedauer auswählen
- Anzahl Reisende auswählen
- Anreisetag im Belegungskalender anklicken
- Sie bekommen Verfügbarkeit und Preis angezeigt
| 2026 | 1 | 2 | 3 | 4 | 5 | 6 | 7 | 8 | 9 | 10 | 11 | 12 | 13 | 14 | 15 | 16 | 17 | 18 | 19 | 20 | 21 | 22 | 23 | 24 | 25 | 26 | 27 | 28 | 29 | 30 | 31 |
| Mai | F | S | S | M | D | M | D | F | S | S | M | D | M | D | F | S | S | M | D | M | D | F | S | S | M | D | M | D | F | S | S |
| Juni | M | D | M | D | F | S | S | M | D | M | D | F | S | S | M | D | M | D | F | S | S | M | D | M | D | F | S | S | M | D | |
| Juli | M | D | F | S | S | M | D | M | D | F | S | S | M | D | M | D | F | S | S | M | D | M | D | F | S | S | M | D | M | D | F |
| August | S | S | M | D | M | D | F | S | S | M | D | M | D | F | S | S | M | D | M | D | F | S | S | M | D | M | D | F | S | S | M |
| September | D | M | D | F | S | S | M | D | M | D | F | S | S | M | D | M | D | F | S | S | M | D | M | D | F | S | S | M | D | M | |
| Oktober | D | F | S | S | M | D | M | D | F | S | S | M | D | M | D | F | S | S | M | D | M | D | F | S | S | M | D | M | D | F | S |
| November | S | M | D | M | D | F | S | S | M | D | M | D | F | S | S | M | D | M | D | F | S | S | M | D | M | D | F | S | S | M | |
| Dezember | D | M | D | F | S | S | M | D | M | D | F | S | S | M | D | M | D | F | S | S | M | D | M | D | F | S | S | M | D | M | D |
| 2027 | 1 | 2 | 3 | 4 | 5 | 6 | 7 | 8 | 9 | 10 | 11 | 12 | 13 | 14 | 15 | 16 | 17 | 18 | 19 | 20 | 21 | 22 | 23 | 24 | 25 | 26 | 27 | 28 | 29 | 30 | 31 |
| Januar | F | S | S | M | D | M | D | F | S | S | M | D | M | D | F | S | S | M | D | M | D | F | S | S | M | D | M | D | F | S | S |
| Februar | M | D | M | D | F | S | S | M | D | M | D | F | S | S | M | D | M | D | F | S | S | M | D | M | D | F | S | S | |||
| März | M | D | M | D | F | S | S | M | D | M | D | F | S | S | M | D | M | D | F | S | S | M | D | M | D | F | S | S | M | D | M |
| April | D | F | S | S | M | D | M | D | F | S | S | M | D | M | D | F | S | S | M | D | M | D | F | S | S | M | D | M | D | F | |
| Mai | S | S | M | D | M | D | F | S | S | M | D | M | D | F | S | S | M | D | M | D | F | S | S | M | D | M | D | F | S | S | M |
| Juni | D | M | D | F | S | S | M | D | M | D | F | S | S | M | D | M | D | F | S | S | M | D | M | D | F | S | S | M | D | M | |
| Juli | D | F | S | S | M | D | M | D | F | S | S | M | D | M | D | F | S | S | M | D | M | D | F | S | S | M | D | M | D | F | S |
| August | S | M | D | M | D | F | S | S | M | D | M | D | F | S | S | M | D | M | D | F | S | S | M | D | M | D | F | S | S | M | D |
| September | M | D | F | S | S | M | D | M | D | F | S | S | M | D | M | D | F | S | S | M | D | M | D | F | S | S | M | D | M | D | |
| Oktober | F | S | S | M | D | M | D | F | S | S | M | D | M | D | F | S | S | M | D | M | D | F | S | S | M | D | M | D | F | S | S |
| November | M | D | M | D | F | S | S | M | D | M | D | F | S | S | M | D | M | D | F | S | S | M | D | M | D | F | S | S | M | D | |
| Dezember | M | D | F | S | S | M | D | M | D | F | S | S | M | D | M | D | F | S | S | M | D | M | D | F | S | S | M | D | M | D | F |
| 2028 | 1 | 2 | 3 | 4 | 5 | 6 | 7 | 8 | 9 | 10 | 11 | 12 | 13 | 14 | 15 | 16 | 17 | 18 | 19 | 20 | 21 | 22 | 23 | 24 | 25 | 26 | 27 | 28 | 29 | 30 | 31 |
| Januar | S | S | M | D | M | D | F | S | S | M | D | M | D | F | S | S | M | D | M | D | F | S | S | M | D | M | D | F | S | S | M |
| Februar | D | M | D | F | S | S | M | D | M | D | F | S | S | M | D | M | D | F | S | S | M | D | M | D | F | S | S | M | D | ||
| März | M | D | F | S | S | M | D | M | D | F | S | S | M | D | M | D | F | S | S | M | D | M | D | F | S | S | M | D | M | D | F |
| April | S | S | M | D | M | D | F | S | S | M | D | M | D | F | S | S | M | D | M | D | F | S | S | M | D | M | D | F | S | S | |
| Mai | M | D | M | D | F | S | S | M | D | M | D | F | S | S | M | D | M | D | F | S | S | M | D | M | D | F | S | S | M | D | M |
| Juni | D | F | S | S | M | D | M | D | F | S | S | M | D | M | D | F | S | S | M | D | M | D | F | S | S | M | D | M | D | F | |
| Juli | S | S | M | D | M | D | F | S | S | M | D | M | D | F | S | S | M | D | M | D | F | S | S | M | D | M | D | F | S | S | M |
| August | D | M | D | F | S | S | M | D | M | D | F | S | S | M | D | M | D | F | S | S | M | D | M | D | F | S | S | M | D | M | D |
| September | F | S | S | M | D | M | D | F | S | S | M | D | M | D | F | S | S | M | D | M | D | F | S | S | M | D | M | D | F | S | |
| Oktober | S | M | D | M | D | F | S | S | M | D | M | D | F | S | S | M | D | M | D | F | S | S | M | D | M | D | F | S | S | M | D |
| November | M | D | F | S | S | M | D | M | D | F | S | S | M | D | M | D | F | S | S | M | D | M | D | F | S | S | M | D | M | D | |
| Dezember | F | S | S | M | D | M | D | F | S | S | M | D | M | D | F | S | S | M | D | M | D | F | S | S | M | D | M | D | F | S | S |
| 2029 | 1 | 2 | 3 | 4 | 5 | 6 | 7 | 8 | 9 | 10 | 11 | 12 | 13 | 14 | 15 | 16 | 17 | 18 | 19 | 20 | 21 | 22 | 23 | 24 | 25 | 26 | 27 | 28 | 29 | 30 | 31 |
| Januar | M | D | M | D | F | S | S | M | D | M | D | F | S | S | M | D | M | D | F | S | |||||||||||