Ferienhaus i6657 in Marehalmen 54, Søndervig
Seid ihr auf der Suche nach einem ungewönlichen und schönem Ferienhaus? Dann ist das Ferienhaus auf Marehalmen 54 absolut ideal! Die tolle , strandnahe Lage und Architektur ist überragend, sodass sich dieses Ferienhaus in die Landschaft perfekt einfügt. Des Weiteren ist es hell und geräumig mit viel Platz für alle Mitreisenden. Das in 2019 erbaute Ferienhaus bietet ein schickes Design mit Sauna, Badewanne und Aussendusche und liegt nur 350 Meter von der Nordsee entfernt - ein rundum perfektes Ferienhaus für einen tollen Urlaub an der Westküste Dänemarks.
Entspannter Familienurlaub mit eigener Sauna im Marehalmen 54
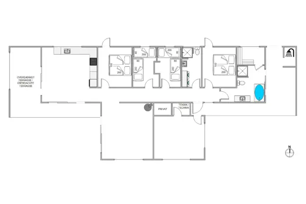
Dieses schöne Ferienhaus ist die ideale Wahl für einen entspannten Familienurlaub in Dänemark. Das Ferienhaus bietet Platz für bis zu 8 Personen und verfügt über insgesamt 120 m2. Die Einrichtung wurde auf den Punkt gebracht: stilvoll und modern mit schönen Möbeln und offenen, großen Räumen.
Das Wohnzimmer und die Küche wurden kombiniert und bilden zusammen den Aufenthaltsraum. Von hier aus könnt ihr durch die großen Fenster auch vom Inneren des Ferienhauses die Landschaft um das Ferienhaus genießen, währenddessen ihr gemütlich auf dem Sofa sitzt und einen Kaffee trinkt. Hier habt ihr die Möglichkeit, viele Stunden gemeinsam zu verbringen.
Das Ferienhaus ist mit 2 Badezimmern ausgestattet. Eines verfügt über eine Badewanne und den Zugang zur Sauna, wo ihr euch ein wenig Wellness im Urlaub gönnen und euch verwöhnen lassen könnt.
Schöne Terrasse - nur 350 Meter bis zum Strand
Von den insgesamt 130 m2 Terrassenfläche sind 65 m2 überdacht, damit ihr auch bei unbeständigerem Wetter draußen die Seeluft genießen könnt. Mit einem Glas Wein in der Hand oder einem Softgetränk für die Kleinen könnt ihr das Meeresrauschen hören und die Beine hochlegen. Am Abend sorgt der Grill für ein fantastisches Abendessen bei untergehender Sonne oder unter dem Sternenhimmel.
Nur 350 Meter trennen euch vom atemberaubenden Strand und der tollen Nordsee. Nach einem langen Strandtag könnt ihr euch draußen auf der Terrasse unter der Außendusche von April-November abspülen und euch danach auf die Terrasse setzen.
Von Marehalmen 54 ist es nicht weit bis zum lebhaften Stadtzentrum Søndervigs. Nach einer kurzen Fahrt stehen für euch Restaurants, Geschäfte bereit und ihr könnt ein wenig bummeln gehen - oder bei sonnigem Wetter ein Softeis genießen.
* Es gibt nur 3 deutsche Kanäle in diesem Ferienhaus
Hausbilder
Ausstattung
Allgemeines
- Anzahl Personen: 8
- Baujahr: 2019
- Grundstücksfläche: 2.005 m²
- Inkl. Endreinigung
- Nichtraucher
- Wohnfläche: 120 m²
Entfernungen
- Abstand Einkauf: 1.600 m
- Abstand Wasser: 380 m Nordsee
Wohnbereich
- Flachbildfernseher
- Kaminofen
Schlafbereich
- Anzahl Doppelbetten: 2
- Anzahl Einzelbetten: 4
- Anzahl Schlafzimmer: 4
Küche
- Geschirrspüler
- Herd Induktion mit Backofen
- Kühlschrank
- Mikrowelle
- Tiefkühler: 60 l
Bad
- Anzahl Badezimmer: 2
- Trockner
- Waschmaschine
Wellness
- Sauna
Multimedia
- Deutsches Fernsehen
- Internet
Aussenbereich
- Gartenmöbel
- Grundstück Naturgrundstück
- Grill Gasgrill
- Liegestuhl
- Sandkiste
- Sonnenschirm
- Terrasse: 1 abgeschirmt
- Terrasse, geschlossen
- Terrasse, überdacht
Sonstiges
- Besonderheiten iPod Dock
- Fußbodenheizung Bad
- Hauswechseltag Freitag
- Wärmepumpe
Neben- und Verbrauchskosten
Die aktuellen Verbrauchskosten finden Sie im nächsten Schritt im Buchungsformular.
Raumaufteilung
Lageplan
Ferienhaus i6657
Marehalmen 54
Søndervig
6950 Ringkøbing
Belegungskalender
- Reisedauer auswählen
- Anzahl Reisende auswählen
- Anreisetag im Belegungskalender anklicken
- Sie bekommen Verfügbarkeit und Preis angezeigt
| 2026 | 1 | 2 | 3 | 4 | 5 | 6 | 7 | 8 | 9 | 10 | 11 | 12 | 13 | 14 | 15 | 16 | 17 | 18 | 19 | 20 | 21 | 22 | 23 | 24 | 25 | 26 | 27 | 28 | 29 | 30 | 31 |
| Mai | F | S | S | M | D | M | D | F | S | S | M | D | M | D | F | S | S | M | D | M | D | F | S | S | M | D | M | D | F | S | S |
| Juni | M | D | M | D | F | S | S | M | D | M | D | F | S | S | M | D | M | D | F | S | S | M | D | M | D | F | S | S | M | D | |
| Juli | M | D | F | S | S | M | D | M | D | F | S | S | M | D | M | D | F | S | S | M | D | M | D | F | S | S | M | D | M | D | F |
| August | S | S | M | D | M | D | F | S | S | M | D | M | D | F | S | S | M | D | M | D | F | S | S | M | D | M | D | F | S | S | M |
| September | D | M | D | F | S | S | M | D | M | D | F | S | S | M | D | M | D | F | S | S | M | D | M | D | F | S | S | M | D | M | |
| Oktober | D | F | S | S | M | D | M | D | F | S | S | M | D | M | D | F | S | S | M | D | M | D | F | S | S | M | D | M | D | F | S |
| November | S | M | D | M | D | F | S | S | M | D | M | D | F | S | S | M | D | M | D | F | S | S | M | D | M | D | F | S | S | M | |
| Dezember | D | M | D | F | S | S | M | D | M | D | F | S | S | M | D | M | D | F | S | S | M | D | M | D | F | S | S | M | D | M | D |
| 2027 | 1 | 2 | 3 | 4 | 5 | 6 | 7 | 8 | 9 | 10 | 11 | 12 | 13 | 14 | 15 | 16 | 17 | 18 | 19 | 20 | 21 | 22 | 23 | 24 | 25 | 26 | 27 | 28 | 29 | 30 | 31 |
| Januar | F | S | S | M | D | M | D | F | S | S | M | D | M | D | F | S | S | M | D | M | D | F | S | S | M | D | M | D | F | S | S |
| Februar | M | D | M | D | F | S | S | M | D | M | D | F | S | S | M | D | M | D | F | S | S | M | D | M | D | F | S | S | |||
| März | M | D | M | D | F | S | S | M | D | M | D | F | S | S | M | D | M | D | F | S | S | M | D | M | D | F | S | S | M | D | M |
| April | D | F | S | S | M | D | M | D | F | S | S | M | D | M | D | F | S | S | M | D | M | D | F | S | S | M | D | M | D | F | |
| Mai | S | S | M | D | M | D | F | S | S | M | D | M | D | F | S | S | M | D | M | D | F | S | S | M | D | M | D | F | S | S | M |
| Juni | D | M | D | F | S | S | M | D | M | D | F | S | S | M | D | M | D | F | S | S | M | D | M | D | F | S | S | M | D | M | |
| Juli | D | F | S | S | M | D | M | D | F | S | S | M | D | M | D | F | S | S | M | D | M | D | F | S | S | M | D | M | D | F | S |
| August | S | M | D | M | D | F | S | S | M | D | M | D | F | S | S | M | D | M | D | F | S | S | M | D | M | D | F | S | S | M | D |
| September | M | D | F | S | S | M | D | M | D | F | S | S | M | D | M | D | F | S | S | M | D | M | D | F | S | S | M | D | M | D | |
| Oktober | F | S | S | M | D | M | D | F | S | S | M | D | M | D | F | S | S | M | D | M | D | F | S | S | M | D | M | D | F | S | S |
| November | M | D | M | D | F | S | S | M | D | M | D | F | S | S | M | D | M | D | F | S | S | M | D | M | D | F | S | S | M | D | |
| Dezember | M | D | F | S | S | M | D | M | D | F | S | S | M | D | M | D | F | S | S | M | D | M | D | F | S | S | M | D | M | D | F |
| 2028 | 1 | 2 | 3 | 4 | 5 | 6 | 7 | 8 | 9 | 10 | 11 | 12 | 13 | 14 | 15 | 16 | 17 | 18 | 19 | 20 | 21 | 22 | 23 | 24 | 25 | 26 | 27 | 28 | 29 | 30 | 31 |
| Januar | S | S | M | D | M | D | F | S | S | M | D | M | D | F | S | S | M | D | M | D | F | S | S | M | D | M | D | F | S | S | M |
| Februar | D | M | D | F | S | S | M | D | M | D | F | S | S | M | D | M | D | F | S | S | M | D | M | D | F | S | S | M | D | ||
| März | M | D | F | S | S | M | D | M | D | F | S | S | M | D | M | D | F | S | S | M | D | M | D | F | S | S | M | D | M | D | F |
| April | S | S | M | D | M | D | F | S | S | M | D | M | D | F | S | S | M | D | M | D | F | S | S | M | D | M | D | F | S | S | |
| Mai | M | D | M | D | F | S | S | M | D | M | D | F | S | S | M | D | M | D | F | S | S | M | D | M | D | F | S | S | M | D | M |
| Juni | D | F | S | S | M | D | M | D | F | S | S | M | D | M | D | F | S | S | M | D | M | D | F | S | S | M | D | M | D | F | |
| Juli | S | S | M | D | M | D | F | S | S | M | D | M | D | F | S | S | M | D | M | D | F | S | S | M | D | M | D | F | S | S | M |
| August | D | M | D | F | S | S | M | D | M | D | F | S | S | M | D | M | D | F | S | S | M | D | M | D | F | S | S | M | D | M | D |
| September | F | S | S | M | D | M | D | F | S | S | M | D | M | D | F | S | S | M | D | M | D | F | S | S | M | D | M | D | F | S | |
| Oktober | S | M | D | M | D | F | S | S | M | D | M | D | F | S | S | M | D | M | D | F | S | S | M | D | M | D | F | S | S | M | D |
| November | M | D | F | S | S | M | D | M | D | F | S | S | M | D | M | D | F | S | S | M | D | M | D | F | S | S | M | D | M | D | |
| Dezember | F | S | S | M | D | M | D | F | S | S | M | D | M | D | F | S | S | M | D | M | D | F | S | S | M | D | M | D | F | S | S |
| 2029 | 1 | 2 | 3 | 4 | 5 | 6 | 7 | 8 | 9 | 10 | 11 | 12 | 13 | 14 | 15 | 16 | 17 | 18 | 19 | 20 | 21 | 22 | 23 | 24 | 25 | 26 | 27 | 28 | 29 | 30 | 31 |
| Januar | M | D | M | D | F | S | S | M | D | M | D | F | S | S | M | D | M | D | F | S | |||||||||||