Ferienhaus i6994 in Frans Julius Vej 3, Søndervig
Das Ferienhaus im Frans Julius Vej 3 in Søndervig könnt ihr mit mehreren Familien oder euren Freunden einen schönen Urlaub in Dänemark verbringen. Das Ferienhaus bietet Platz für bis zu 10 Personen und 2 Hunde und hier stehen sowohl Unterhaltung mit Spiel und Spaß als auch Entspannung auf dem Programm. Dieses Ferienhaus verfügt über einen Swimmingpool, einen Whirlpool, eine Sauna und einen Tischfußballtisch - einen Kicker. Im Jahr 2023 erhält dieses Ferienhaus ein neues Reetdach. Für ein angenehmes Raumklima sorgt die energiefreundliche Wärmepumpe im Ferienhaus.
Abwechslungsreiche Unterhaltung im Frans Julius Vej 3
Das Ferienhaus mit Lage auf Frans Julius Vej 3 in Søndervig bietet eine Menge Unterhaltung. Euch erwartet ein 18 m2 großer Pool, in dem vor allem die Wasserratten viele vergnügliche Stunden verbringen werden. Welches Kind wünscht sich nicht, Urlaub in einem Haus mit eigenem Pool zu machen?
Zudem verfügt dieses Ferienhaus über einen Tischfußballtisch, wo sicher auch viele Stunden mit Tischfußballspielen verbracht werden können, während der oder die Hobbyköche unter euch, eine leckere Mahlzeit zubereiten.
Entspannung in Whirlpool und Sauna
Natürlich solltet ihr auch möglichst viele entspannende Momente während eures Urlaubs genießen. Das Ferienhaus verfügt über einen Whirlpool, in dem ihr euch im sprudelnden, warmen Wasser so richtig schön entspannen werdet. Schaut den Kleinsten beim Schwimmen und Herumplantschen zu, während ihr ein leckeres Getränk vom Küchenchef serviert bekommt und natürlich die Kinder im Auge behalten könnt.
Auch steht euch eine Sauna zur Verfügung, in der ihr euch in der Wärme entspannen könnt. Nach einem flotten Spaziergang am Meer und durch die Dünenlandschaft können ihr euch gerade an kühleren, windigen Tagen in der Sauna wieder aufwärmen und neue Energien tanken.
Gemütliches Wohnzimmer mit Fußbodenheizung und Wärmepumpe + Lademöglichkeit für euer E-Auto
Das Herzstück des Ferienhauses in Søndervig ist das Wohnzimmer, welches Küche, Wohnzimmer und Essbereich miteinander verbindet. Hier könnt ihr gemeinsam in der Küche kochen, gute Filme im Fernsehen anschauen oder lustige Spiele am Esstisch spielen. Der Wohnbereich ist mit Fußbodenheizung ausgestattet, um eure Füße schön warmzuhalten, was gerade in der kühleren Jahreszeit sehr angenehm ist. Zusätzlich sorgt die engergiefreundliche Wärmepumpe für eine angenehme Raumtemperatur.
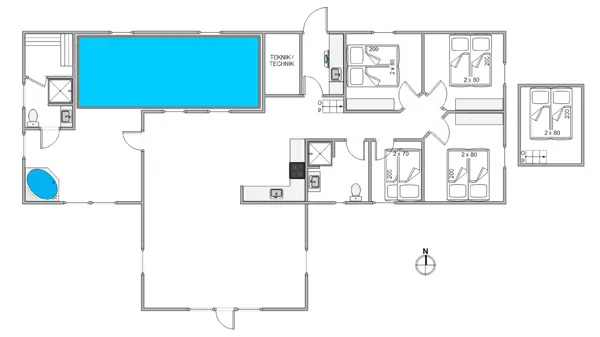
Das 150 m2 große Poolhaus verfügt über insgesamt 4 Schlafzimmer. 3 der Schlafzimmer sind mit je einem Doppelbett ausgestattet, während das vierte Schlafzimmer mit einem Etagenbett versehen ist. Außerdem gibt es noch eine Schlafmöglichkeit auf dem Dachboden des Ferienhauses. Auch die 2 Badezimmer sind mit einer Fußbodenheizung ausgestattet, sodass kalte Füße während der Morgentoilette keine Option sind.
Im Außenbereich bietet das Ferienhaus eine befestigte Terrasse, auf der ihr es euch auf den Gartenmöbeln und Liegestühlen in den warmen Strahlen der Sonne entspannt gemütlich machen könnt. Die Jüngste haben die Möglichkeit, viel an der frischen Luft zu spielen, da auch eine Schaukel und ein Sandkasten für sie bereitsteht. An sommerlichen Abenden bietet es sich an, das Abendessen im Freien zuzubereiten. Werft den Grill an und genießt eine köstliche Mahlzeit, während der Tag sich dem Ende neigt. Eure Hunde finden sicherlich ein ruhiges Plätzchen zu euren Füßen und ihr besprecht, wie der kommende Tag gestaltet werden soll. Wenn ihr mit eurem E-Auto anreist, habt ihr am Ferienhaus die Möglichkeit euer Auto wieder aufzuladen. Es wird dafür euer Ladekabel/Adapter benötigt.
950 Meter bis zu den breiten Sandstränden und an die Nordsee
Die Nordsee liegt nur knappe 950 m vom Ferienhaus auf Frans Julius Vej 3 in Søndervig entfernt. Es dauert also nicht lange, bis ihr das Meer erreicht, wo ihr lange Spaziergänge am Sandstrand machen oder an warmen Sommertagen in die erfrischenden Wellen springen könnt!
Solltet ihr eh mit viel Gepäck und Anhänger anreisen, bietet es sich an, die Fahrräder einzupacken. Nicht weit von eurem Ferienhaus entfernt führt euch ein toller Fahrradweg über den Ringkøbing Fjord und weiter bis nach Ringkøbing oder sogar rund um den Fjord! Ein herrlicher Weg entlang des Wassers, mitten durch die schöne Natur.
Hausbilder
Ausstattung
Allgemeines
- Anzahl Haustiere maximal: 2
- Anzahl Personen: 10
- Anzahl Personen: 10
- Baujahr: 1994
- Grundstücksfläche: 2.655 m²
- Haustiere erlaubt
- Inkl. Endreinigung
- Nichtraucher
- Renovierung: 2022
- Wohnfläche: 150 m²
Entfernungen
- Abstand Einkauf: 2.400 m
- Abstand Wasser: 950 m Nordsee
Wohnbereich
- Flachbildfernseher
- Schlafboden
Schlafbereich
- Anzahl Doppelbetten: 3
- Anzahl Etagenbetten : 1
- Anzahl Schlafzimmer: 4
Küche
- Geschirrspüler
- Herd Induktion mit Backofen
- Kühlschrank
- Mikrowelle
- Tiefkühler: 100 l
Bad
- Anzahl Badezimmer: 2
- Trockner
- Waschmaschine
Wellness
- Pool mit Gegenstromanlage
- Poolgröße: 18 m² Anzahl Personen Whirlpool
- Poolgröße: 2 Anzahl Personen Whirlpool
- Sauna
Multimedia
- Deutsches Fernsehen
- Internationales Fernsehen
- Internet
- Radio
Aussenbereich
- Gartenmöbel
- Grundstück Naturgrundstück
- Grill
- Liegestuhl
- Sandkiste
- Schaukel
- Terrasse: 1 abgeschirmt
Sonstiges
-
Fußbodenheizung Bad
Wohnbereich - Hauswechseltag Samstag
- Ladestation für Elektroautos
- Wärmepumpe Luft-Wasser
Neben- und Verbrauchskosten
Die aktuellen Verbrauchskosten finden Sie im nächsten Schritt im Buchungsformular.
Raumaufteilung
Lageplan
Ferienhaus i6994
Frans Julius Vej 3
Søndervig
6950 Ringkøbing
Belegungskalender
- Reisedauer auswählen
- Anzahl Reisende auswählen
- Anreisetag im Belegungskalender anklicken
- Sie bekommen Verfügbarkeit und Preis angezeigt
| 2026 | 1 | 2 | 3 | 4 | 5 | 6 | 7 | 8 | 9 | 10 | 11 | 12 | 13 | 14 | 15 | 16 | 17 | 18 | 19 | 20 | 21 | 22 | 23 | 24 | 25 | 26 | 27 | 28 | 29 | 30 | 31 |
| Mai | F | S | S | M | D | M | D | F | S | S | M | D | M | D | F | S | S | M | D | M | D | F | S | S | M | D | M | D | F | S | S |
| Juni | M | D | M | D | F | S | S | M | D | M | D | F | S | S | M | D | M | D | F | S | S | M | D | M | D | F | S | S | M | D | |
| Juli | M | D | F | S | S | M | D | M | D | F | S | S | M | D | M | D | F | S | S | M | D | M | D | F | S | S | M | D | M | D | F |
| August | S | S | M | D | M | D | F | S | S | M | D | M | D | F | S | S | M | D | M | D | F | S | S | M | D | M | D | F | S | S | M |
| September | D | M | D | F | S | S | M | D | M | D | F | S | S | M | D | M | D | F | S | S | M | D | M | D | F | S | S | M | D | M | |
| Oktober | D | F | S | S | M | D | M | D | F | S | S | M | D | M | D | F | S | S | M | D | M | D | F | S | S | M | D | M | D | F | S |
| November | S | M | D | M | D | F | S | S | M | D | M | D | F | S | S | M | D | M | D | F | S | S | M | D | M | D | F | S | S | M | |
| Dezember | D | M | D | F | S | S | M | D | M | D | F | S | S | M | D | M | D | F | S | S | M | D | M | D | F | S | S | M | D | M | D |
| 2027 | 1 | 2 | 3 | 4 | 5 | 6 | 7 | 8 | 9 | 10 | 11 | 12 | 13 | 14 | 15 | 16 | 17 | 18 | 19 | 20 | 21 | 22 | 23 | 24 | 25 | 26 | 27 | 28 | 29 | 30 | 31 |
| Januar | F | S | S | M | D | M | D | F | S | S | M | D | M | D | F | S | S | M | D | M | D | F | S | S | M | D | M | D | F | S | S |
| Februar | M | D | M | D | F | S | S | M | D | M | D | F | S | S | M | D | M | D | F | S | S | M | D | M | D | F | S | S | |||
| März | M | D | M | D | F | S | S | M | D | M | D | F | S | S | M | D | M | D | F | S | S | M | D | M | D | F | S | S | M | D | M |
| April | D | F | S | S | M | D | M | D | F | S | S | M | D | M | D | F | S | S | M | D | M | D | F | S | S | M | D | M | D | F | |
| Mai | S | S | M | D | M | D | F | S | S | M | D | M | D | F | S | S | M | D | M | D | F | S | S | M | D | M | D | F | S | S | M |
| Juni | D | M | D | F | S | S | M | D | M | D | F | S | S | M | D | M | D | F | S | S | M | D | M | D | F | S | S | M | D | M | |
| Juli | D | F | S | S | M | D | M | D | F | S | S | M | D | M | D | F | S | S | M | D | M | D | F | S | S | M | D | M | D | F | S |
| August | S | M | D | M | D | F | S | S | M | D | M | D | F | S | S | M | D | M | D | F | S | S | M | D | M | D | F | S | S | M | D |
| September | M | D | F | S | S | M | D | M | D | F | S | S | M | D | M | D | F | S | S | M | D | M | D | F | S | S | M | D | M | D | |
| Oktober | F | S | S | M | D | M | D | F | S | S | M | D | M | D | F | S | S | M | D | M | D | F | S | S | M | D | M | D | F | S | S |
| November | M | D | M | D | F | S | S | M | D | M | D | F | S | S | M | D | M | D | F | S | S | M | D | M | D | F | S | S | M | D | |
| Dezember | M | D | F | S | S | M | D | M | D | F | S | S | M | D | M | D | F | S | S | M | D | M | D | F | S | S | M | D | M | D | F |
| 2028 | 1 | 2 | 3 | 4 | 5 | 6 | 7 | 8 | 9 | 10 | 11 | 12 | 13 | 14 | 15 | 16 | 17 | 18 | 19 | 20 | 21 | 22 | 23 | 24 | 25 | 26 | 27 | 28 | 29 | 30 | 31 |
| Januar | S | S | M | D | M | D | F | S | S | M | D | M | D | F | S | S | M | D | M | D | F | S | S | M | D | M | D | F | S | S | M |
| Februar | D | M | D | F | S | S | M | D | M | D | F | S | S | M | D | M | D | F | S | S | M | D | M | D | F | S | S | M | D | ||
| März | M | D | F | S | S | M | D | M | D | F | S | S | M | D | M | D | F | S | S | M | D | M | D | F | S | S | M | D | M | D | F |
| April | S | S | M | D | M | D | F | S | S | M | D | M | D | F | S | S | M | D | M | D | F | S | S | M | D | M | D | F | S | S | |
| Mai | M | D | M | D | F | S | S | M | D | M | D | F | S | S | M | D | M | D | F | S | S | M | D | M | D | F | S | S | M | D | M |
| Juni | D | F | S | S | M | D | M | D | F | S | S | M | D | M | D | F | S | S | M | D | M | D | F | S | S | M | D | M | D | F | |
| Juli | S | S | M | D | M | D | F | S | S | M | D | M | D | F | S | S | M | D | M | D | F | S | S | M | D | M | D | F | S | S | M |
| August | D | M | D | F | S | S | M | D | M | D | F | S | S | M | D | M | D | F | S | S | M | D | M | D | F | S | S | M | D | M | D |
| September | F | S | S | M | D | M | D | F | S | S | M | D | M | D | F | S | S | M | D | M | D | F | S | S | M | D | M | D | F | S | |
| Oktober | S | M | D | M | D | F | S | S | M | D | M | D | F | S | S | M | D | M | D | F | S | S | M | D | M | D | F | S | S | M | D |
| November | M | D | F | S | S | M | D | M | D | F | S | S | M | D | M | D | F | S | S | M | D | M | D | F | S | S | M | D | M | D | |
| Dezember | F | S | S | M | D | M | D | F | S | S | M | D | M | D | F | S | S | M | D | M | D | F | S | S | M | D | M | D | F | S | S |
| 2029 | 1 | 2 | 3 | 4 | 5 | 6 | 7 | 8 | 9 | 10 | 11 | 12 | 13 | 14 | 15 | 16 | 17 | 18 | 19 | 20 | 21 | 22 | 23 | 24 | 25 | 26 | 27 | 28 | 29 | 30 | 31 |
| Januar | M | D | M | D | F | S | S | M | D | M | D | F | S | S | M | D | M | D | F | S | |||||||||||