Ferienhaus i6390 in Badevej 18G, Søndervig
Wenn ihr im Herzen von Søndervig wohnen, euren Urlaub verbringen möchtet, wo ihr das Auto auch gerne stehen lassen könnt, dann ist die Ferienwohnung im Badevej 18 G in Søndervig die richtige Wahl für euch. Die Ferienwohnung bietet euch Platz für bis zu 4 Personen und liegt nur 200 Meter vom Strand und der tosenden Nordsee entfernt. Nach einem langen Spaziergang könnt ihr euch in der Sauna oder dem Whirlpool der Ferienwohnung wieder aufwärmen und entspannen. Wer mit dem E-Auto anreist, der braucht sich keine Sorgen wegen des Ladens zu machen. Auf dem Gemeinschaftsparkplatz habt ihr 4 Ladesäulen die ihr mit euerem eigenen Ladekabel/Adapter nutzen könnt.
Moderne Einrichtung im Badevej 18G mit Luft-zu-Luft Wärmepumpe
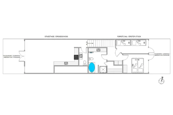
Wenn ihr die Ferienwohnung betretet, werdet ihr von einer hellen und modernen Ferienwohnung begrüßt, in der ihr euch vom ersten Augenblick an wohlfühlen werdet. Die Ferienwohnung wurde 2024 neu gebaut und bietet euch mit 97 m2 verteilt auf 2 Etagen genügend Platz, um mit 4 Personen Urlaub zu machen. Das Herzstück der Ferienwohnung ist der große Wohnraum, der Wohnzimmer, Küche und Essbereich miteinander verbindet. Hier könnt ihr gemeinsam kochen, Spiele spielen, oder die nächsten Aktivitäten eures Urlaubs planen.
Damit ihr konstant eine angenehme Wärme in der Ferienwohnung habt, wurde eine energiesparende Luft-zu-Luft Wärmepumpe installiert und der Wohnbereich, die Gästetoilette, und das Hauptbadezimmer sind zusätzlich mit einer Fußbodenheizung ausgestattet, sodass ihr keine kalten Füße bekommt.
Vom Wohnraum führt eine Treppe hoch zu den beiden Schlafzimmern und dem Hauptbadezimmer der Ferienwohnung. Abends könnt ihr euch auf die beiden Schlafzimmer der Ferienwohnung aufteilen und eure Batterien wieder auffüllen. Das eine Schlafzimmer ist mit einem Doppelbett ausgestattet, während ihr im 2. Schlafzimmer 2 Einzelbetten findet. Wenn ihr nach einem langen Strandspaziergang wieder in die Ferienwohnung kommt, habt ihr die Möglichkeit euch in der Sauna oder dem Whirlpool der Ferienwohnung wieder aufzuwärmen und die Hektik des Alltags zu vergessen.
2 Terrassen mit Meeresrauschen
Auf beiden Etagen der Ferienwohnung findet ihr eine Terrasse, die sowohl überdacht als auch abgeschirmt ist. Morgens könnt ihr euren Morgenkaffee auf der Terrasse, die von den Schlafzimmern abgeht, trinken und den Sonnenaufgang genießen, während ihr abends den Sonnenuntergang auf der Terrasse, die vom Wohnraum abgeht, beobachten könnt. Die Terrassen sind mit Terrassenmöbeln und einem Grill ausgestattet, sodass ihr einen spannenden Urlaubstag mit einem leckeren Grillabend ausklingen lassen könnt.
Die Ferienwohnung im Badevej 18 G in Søndervig, liegt direkt im Herzen Søndervigs, sodass ihr gerne euer Auto, während eures Urlaubs stehen lassen könnt. Von der Ferienwohnung aus sind es nur ca. 200 Meter zum kilometerlangen Strand und der tosenden Nordsee, sodass ihr von den Terrassen aus dem Rauschen der Wellen lauschen könnt.
Hausbilder
Ausstattung
Allgemeines
- Anzahl Personen: 4
- Anzahl Personen: 4
- Baujahr: 2024
- Nichtraucher
- Wohnfläche: 97 m²
Entfernungen
- Abstand Einkauf: 250 m
- Abstand Wasser: 200 m Nordsee
Wohnbereich
- Flachbildfernseher
Schlafbereich
- Anzahl Doppelbetten: 1
- Anzahl Einzelbetten: 2
- Anzahl Schlafzimmer: 2
Küche
- Geschirrspüler
- Herd Induktion mit Backofen
- Kühlschrank
- Tiefkühler: 80 l
Bad
- Anzahl Badezimmer: 1
- Trockner
- Waschmaschine
Wellness
- Poolgröße: 2 Anzahl Personen Whirlpool
- Sauna
Multimedia
- Internet
Aussenbereich
- Gartenmöbel
- Grill
- Terrasse: 1 abgeschirmt
- Terrasse, überdacht
Sonstiges
-
Fußbodenheizung Bad
Gästetoilette
Schlafzimmer
Wohnbereich -
Fußbodenheizung Bad
Gästetoilette
Schlafzimmer
Wohnbereich - Hauswechseltag Samstag
- Wärmepumpe Luft-Wasser
Neben- und Verbrauchskosten
Die aktuellen Verbrauchskosten finden Sie im nächsten Schritt im Buchungsformular.
Raumaufteilung
Lageplan
Ferienhaus i6390
Badevej 18G
Søndervig
6950 Ringkøbing
Belegungskalender
- Reisedauer auswählen
- Anzahl Reisende auswählen
- Anreisetag im Belegungskalender anklicken
- Sie bekommen Verfügbarkeit und Preis angezeigt
| 2026 | 1 | 2 | 3 | 4 | 5 | 6 | 7 | 8 | 9 | 10 | 11 | 12 | 13 | 14 | 15 | 16 | 17 | 18 | 19 | 20 | 21 | 22 | 23 | 24 | 25 | 26 | 27 | 28 | 29 | 30 | 31 |
| Mai | F | S | S | M | D | M | D | F | S | S | M | D | M | D | F | S | S | M | D | M | D | F | S | S | M | D | M | D | F | S | S |
| Juni | M | D | M | D | F | S | S | M | D | M | D | F | S | S | M | D | M | D | F | S | S | M | D | M | D | F | S | S | M | D | |
| Juli | M | D | F | S | S | M | D | M | D | F | S | S | M | D | M | D | F | S | S | M | D | M | D | F | S | S | M | D | M | D | F |
| August | S | S | M | D | M | D | F | S | S | M | D | M | D | F | S | S | M | D | M | D | F | S | S | M | D | M | D | F | S | S | M |
| September | D | M | D | F | S | S | M | D | M | D | F | S | S | M | D | M | D | F | S | S | M | D | M | D | F | S | S | M | D | M | |
| Oktober | D | F | S | S | M | D | M | D | F | S | S | M | D | M | D | F | S | S | M | D | M | D | F | S | S | M | D | M | D | F | S |
| November | S | M | D | M | D | F | S | S | M | D | M | D | F | S | S | M | D | M | D | F | S | S | M | D | M | D | F | S | S | M | |
| Dezember | D | M | D | F | S | S | M | D | M | D | F | S | S | M | D | M | D | F | S | S | M | D | M | D | F | S | S | M | D | M | D |
| 2027 | 1 | 2 | 3 | 4 | 5 | 6 | 7 | 8 | 9 | 10 | 11 | 12 | 13 | 14 | 15 | 16 | 17 | 18 | 19 | 20 | 21 | 22 | 23 | 24 | 25 | 26 | 27 | 28 | 29 | 30 | 31 |
| Januar | F | S | S | M | D | M | D | F | S | S | M | D | M | D | F | S | S | M | D | M | D | F | S | S | M | D | M | D | F | S | S |
| Februar | M | D | M | D | F | S | S | M | D | M | D | F | S | S | M | D | M | D | F | S | S | M | D | M | D | F | S | S | |||
| März | M | D | M | D | F | S | S | M | D | M | D | F | S | S | M | D | M | D | F | S | S | M | D | M | D | F | S | S | M | D | M |
| April | D | F | S | S | M | D | M | D | F | S | S | M | D | M | D | F | S | S | M | D | M | D | F | S | S | M | D | M | D | F | |
| Mai | S | S | M | D | M | D | F | S | S | M | D | M | D | F | S | S | M | D | M | D | F | S | S | M | D | M | D | F | S | S | M |
| Juni | D | M | D | F | S | S | M | D | M | D | F | S | S | M | D | M | D | F | S | S | M | D | M | D | F | S | S | M | D | M | |
| Juli | D | F | S | S | M | D | M | D | F | S | S | M | D | M | D | F | S | S | M | D | M | D | F | S | S | M | D | M | D | F | S |
| August | S | M | D | M | D | F | S | S | M | D | M | D | F | S | S | M | D | M | D | F | S | S | M | D | M | D | F | S | S | M | D |
| September | M | D | F | S | S | M | D | M | D | F | S | S | M | D | M | D | F | S | S | M | D | M | D | F | S | S | M | D | M | D | |
| Oktober | F | S | S | M | D | M | D | F | S | S | M | D | M | D | F | S | S | M | D | M | D | F | S | S | M | D | M | D | F | S | S |
| November | M | D | M | D | F | S | S | M | D | M | D | F | S | S | M | D | M | D | F | S | S | M | D | M | D | F | S | S | M | D | |
| Dezember | M | D | F | S | S | M | D | M | D | F | S | S | M | D | M | D | F | S | S | M | D | M | D | F | S | S | M | D | M | D | F |
| 2028 | 1 | 2 | 3 | 4 | 5 | 6 | 7 | 8 | 9 | 10 | 11 | 12 | 13 | 14 | 15 | 16 | 17 | 18 | 19 | 20 | 21 | 22 | 23 | 24 | 25 | 26 | 27 | 28 | 29 | 30 | 31 |
| Januar | S | S | M | D | M | D | F | S | S | M | D | M | D | F | S | S | M | D | M | D | F | S | S | M | D | M | D | F | S | S | M |
| Februar | D | M | D | F | S | S | M | D | M | D | F | S | S | M | D | M | D | F | S | S | M | D | M | D | F | S | S | M | D | ||
| März | M | D | F | S | S | M | D | M | D | F | S | S | M | D | M | D | F | S | S | M | D | M | D | F | S | S | M | D | M | D | F |
| April | S | S | M | D | M | D | F | S | S | M | D | M | D | F | S | S | M | D | M | D | F | S | S | M | D | M | D | F | S | S | |
| Mai | M | D | M | D | F | S | S | M | D | M | D | F | S | S | M | D | M | D | F | S | S | M | D | M | D | F | S | S | M | D | M |
| Juni | D | F | S | S | M | D | M | D | F | S | S | M | D | M | D | F | S | S | M | D | M | D | F | S | S | M | D | M | D | F | |
| Juli | S | S | M | D | M | D | F | S | S | M | D | M | D | F | S | S | M | D | M | D | F | S | S | M | D | M | D | F | S | S | M |
| August | D | M | D | F | S | S | M | D | M | D | F | S | S | M | D | M | D | F | S | S | M | D | M | D | F | S | S | M | D | M | D |
| September | F | S | S | M | D | M | D | F | S | S | M | D | M | D | F | S | S | M | D | M | D | F | S | S | M | D | M | D | F | S | |
| Oktober | S | M | D | M | D | F | S | S | M | D | M | D | F | S | S | M | D | M | D | F | S | S | M | D | M | D | F | S | S | M | D |
| November | M | D | F | S | S | M | D | M | D | F | S | S | M | D | M | D | F | S | S | M | D | M | D | F | S | S | M | D | M | D | |
| Dezember | F | S | S | M | D | M | D | F | S | S | M | D | M | D | F | S | S | M | D | M | D | F | S | S | M | D | M | D | F | S | S |
| 2029 | 1 | 2 | 3 | 4 | 5 | 6 | 7 | 8 | 9 | 10 | 11 | 12 | 13 | 14 | 15 | 16 | 17 | 18 | 19 | 20 | 21 | 22 | 23 | 24 | 25 | 26 | 27 | 28 | 29 | 30 | 31 |
| Januar | M | D | M | D | F | S | S | M | D | M | D | F | S | S | M | D | M | D | F | S | |||||||||||