Ferienhaus i6841 in Fortunavej 8, Søndervig
Entflieht dem Alltag und genießt eine Auszeit in diesem 2025 renoviertem idyllischen Ferienhaus in Søndervig im Fortunavej 8. Hier erwartet euch ein Rückzugsort, in dem ihr euch rundum wohlfühlen könnt. Nur ca. 115 m vom feinen Sandstrand entfernt und mit einem Panoramablick auf die erste Dünenreihe bietet dieser Standort eine unterhaltsame und entspannende Oase. Ideal für bis zu vier Personen geeignet, könnt ihr hier mit eurem Hund unvergessliche Tage verbringen.
Gemütlichkeit mit Holzofen
Die gut ausgestattete Küche des Ferienhauses bietet alles, was ihr für die Zubereitung gemeinsamer Mahlzeiten benötigt. Der moderne Komfort einer Spülmaschine erspart euch viel Mühe und lässt euch noch mehr Zeit genießen, um euch auf gemeinsame Erlebnisse zu konzentrieren. Bereitet eure Lieblingsgerichte in diesem einladenden Raum zu und schenkt euch Momente voller Genuss und Entspannung. Ihr könnt den Panoramablick auf die Dünen genießen während ihr am Eßtisch sitzt.
Im Wohnzimmer könnt ihr es euch an kühleren Abenden so richtig gemütlich machen. Die wohlige Wärme des Kaminofens sorgt gleich für ein behagliches Ambiente, das durch eine moderne Wärmepumpe ergänzt wird. Hier könnt ihr es euch mit einem guten Buch gemütlich machen oder gemeinsam einen Filmabend verbringen. Der Raum bietet ausreichend Platz und Komfort für gemeinsame Entspannungsmomente.
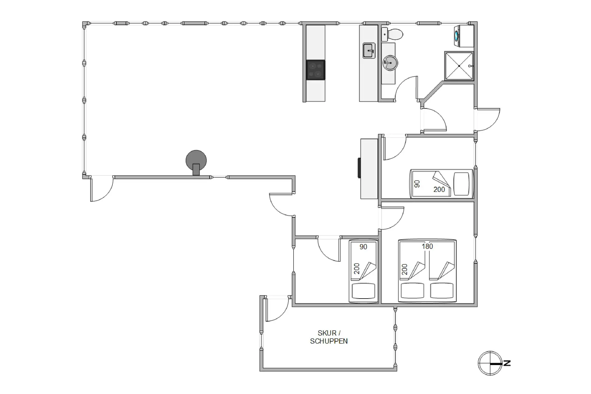
Im Ferienhaus erwarten euch drei Schlafzimmer, die zum Träumen einladen. Hier könnt ihr eure Batterien wieder aufladen, nach langen Tagen an der frischen Nordseeluft. Für die tägliche Pflege steht euch ein Badezimmer zur Verfügung, das funktional eingerichtet ist. Hier findet ihr auch eine Waschmaschine und einen Trockner, sodass ihr nur eure Lieblingskleidung einpacken müsst.
Der Außenbereich des Ferienhauses im Fortunavej 8
Die Terrasse bietet euch Platz, um auf den vorhandenen Gartenmöbeln zu relaxen und in einem guten Buch zu versinken. Am Abend könnt ihr eure mitgebrachten Köstlichkeiten auf den Grill legen und ein Kaltgetränk genießen. Lehnt euch zurück und lasst in Ruhe den Tag Revue passieren, während das Rauschen der Nordsee eine wunderbare Hintergrundmusik liefert.
Nah am Strand und ins Zentrum
Die Nähe zum Strand ist ein wunderbares Merkmal, das dieses Ferienhaus besonders auszeichnet. Es sind nur ca.115 m zum Dünenaufgang, somit könnt ihr eure Tage am Strand verbringen und in die sanften Wellen des Meeres eintauchen. Hier könnt ihr lange Spaziergänge unternehmen, die Kinder werden begeistert sein, jeden Tag ans Meer zu gehen und auch euer Hund wird das tägliche Bad in der Nordsee bestimmt genießen.
Nur ca. 525 m trennen euch von den nächsten Einkaufsmöglichkeiten, sodass ihr schnell und bequem für alle Bedürfnisse des täglichen Bedarfs sorgen könnt. Hier könnt ihr euren Urlaub verbringen, ohne das Auto zu benutzen, da alles fußläufig zu erreichen ist, egal ob es ins Restaurant gehen soll oder ihr einen Tag im Erlebnisbad Lalandia verbringen möchtet, alles liegt nah bei.
* Es gibt nur 3 deutsche Kanäle im Ferienhaus
Hausbilder
Ausstattung
Allgemeines
- Anzahl Haustiere maximal: 1
- Anzahl Personen: 4
- Anzahl Personen: 4
- Baujahr: 1968
- Grundstücksfläche: 1.201 m²
- Haustiere erlaubt
- Nichtraucher
- Renovierung: 2025
- Tolle Aussicht Panoramablick
- Wohnfläche: 90 m²
Entfernungen
- Abstand Einkauf: 525 m
- Abstand Wasser: 115 m Nordsee
Wohnbereich
- Flachbildfernseher
- Kaminofen
Schlafbereich
- Anzahl Doppelbetten: 1
- Anzahl Einzelbetten: 2
- Anzahl Schlafzimmer: 3
Küche
- Geschirrspüler
- Herd mit Backofen
- Kühlschrank
- Mikrowelle
- Tiefkühler: 80 l
Bad
- Anzahl Badezimmer: 1
- Trockner
- Waschmaschine
Multimedia
- Deutsches Fernsehen Dänische und Deutsche
- Internet
Aussenbereich
- Gartenmöbel
-
Grundstück Dünengrundstück
Naturgrundstück - Grill Gasgrill
- Liegestuhl
- Terrasse: 1 offen
Sonstiges
-
Besonderheiten Abstellraum
iPod Dock - Hauswechseltag Sonntag
- Wärmepumpe
Neben- und Verbrauchskosten
Die aktuellen Verbrauchskosten finden Sie im nächsten Schritt im Buchungsformular.
Raumaufteilung
Lageplan
Ferienhaus i6841
Fortunavej 8
Søndervig
6950 Ringkøbing
Belegungskalender
- Reisedauer auswählen
- Anzahl Reisende auswählen
- Anreisetag im Belegungskalender anklicken
- Sie bekommen Verfügbarkeit und Preis angezeigt
| 2026 | 1 | 2 | 3 | 4 | 5 | 6 | 7 | 8 | 9 | 10 | 11 | 12 | 13 | 14 | 15 | 16 | 17 | 18 | 19 | 20 | 21 | 22 | 23 | 24 | 25 | 26 | 27 | 28 | 29 | 30 | 31 |
| Mai | F | S | S | M | D | M | D | F | S | S | M | D | M | D | F | S | S | M | D | M | D | F | S | S | M | D | M | D | F | S | S |
| Juni | M | D | M | D | F | S | S | M | D | M | D | F | S | S | M | D | M | D | F | S | S | M | D | M | D | F | S | S | M | D | |
| Juli | M | D | F | S | S | M | D | M | D | F | S | S | M | D | M | D | F | S | S | M | D | M | D | F | S | S | M | D | M | D | F |
| August | S | S | M | D | M | D | F | S | S | M | D | M | D | F | S | S | M | D | M | D | F | S | S | M | D | M | D | F | S | S | M |
| September | D | M | D | F | S | S | M | D | M | D | F | S | S | M | D | M | D | F | S | S | M | D | M | D | F | S | S | M | D | M | |
| Oktober | D | F | S | S | M | D | M | D | F | S | S | M | D | M | D | F | S | S | M | D | M | D | F | S | S | M | D | M | D | F | S |
| November | S | M | D | M | D | F | S | S | M | D | M | D | F | S | S | M | D | M | D | F | S | S | M | D | M | D | F | S | S | M | |
| Dezember | D | M | D | F | S | S | M | D | M | D | F | S | S | M | D | M | D | F | S | S | M | D | M | D | F | S | S | M | D | M | D |
| 2027 | 1 | 2 | 3 | 4 | 5 | 6 | 7 | 8 | 9 | 10 | 11 | 12 | 13 | 14 | 15 | 16 | 17 | 18 | 19 | 20 | 21 | 22 | 23 | 24 | 25 | 26 | 27 | 28 | 29 | 30 | 31 |
| Januar | F | S | S | M | D | M | D | F | S | S | M | D | M | D | F | S | S | M | D | M | D | F | S | S | M | D | M | D | F | S | S |
| Februar | M | D | M | D | F | S | S | M | D | M | D | F | S | S | M | D | M | D | F | S | S | M | D | M | D | F | S | S | |||
| März | M | D | M | D | F | S | S | M | D | M | D | F | S | S | M | D | M | D | F | S | S | M | D | M | D | F | S | S | M | D | M |
| April | D | F | S | S | M | D | M | D | F | S | S | M | D | M | D | F | S | S | M | D | M | D | F | S | S | M | D | M | D | F | |
| Mai | S | S | M | D | M | D | F | S | S | M | D | M | D | F | S | S | M | D | M | D | F | S | S | M | D | M | D | F | S | S | M |
| Juni | D | M | D | F | S | S | M | D | M | D | F | S | S | M | D | M | D | F | S | S | M | D | M | D | F | S | S | M | D | M | |
| Juli | D | F | S | S | M | D | M | D | F | S | S | M | D | M | D | F | S | S | M | D | M | D | F | S | S | M | D | M | D | F | S |
| August | S | M | D | M | D | F | S | S | M | D | M | D | F | S | S | M | D | M | D | F | S | S | M | D | M | D | F | S | S | M | D |
| September | M | D | F | S | S | M | D | M | D | F | S | S | M | D | M | D | F | S | S | M | D | M | D | F | S | S | M | D | M | D | |
| Oktober | F | S | S | M | D | M | D | F | S | S | M | D | M | D | F | S | S | M | D | M | D | F | S | S | M | D | M | D | F | S | S |
| November | M | D | M | D | F | S | S | M | D | M | D | F | S | S | M | D | M | D | F | S | S | M | D | M | D | F | S | S | M | D | |
| Dezember | M | D | F | S | S | M | D | M | D | F | S | S | M | D | M | D | F | S | S | M | D | M | D | F | S | S | M | D | M | D | F |
| 2028 | 1 | 2 | 3 | 4 | 5 | 6 | 7 | 8 | 9 | 10 | 11 | 12 | 13 | 14 | 15 | 16 | 17 | 18 | 19 | 20 | 21 | 22 | 23 | 24 | 25 | 26 | 27 | 28 | 29 | 30 | 31 |
| Januar | S | S | M | D | M | D | F | S | S | M | D | M | D | F | S | S | M | D | M | D | F | S | S | M | D | M | D | F | S | S | M |
| Februar | D | M | D | F | S | S | M | D | M | D | F | S | S | M | D | M | D | F | S | S | M | D | M | D | F | S | S | M | D | ||
| März | M | D | F | S | S | M | D | M | D | F | S | S | M | D | M | D | F | S | S | M | D | M | D | F | S | S | M | D | M | D | F |
| April | S | S | M | D | M | D | F | S | S | M | D | M | D | F | S | S | M | D | M | D | F | S | S | M | D | M | D | F | S | S | |
| Mai | M | D | M | D | F | S | S | M | D | M | D | F | S | S | M | D | M | D | F | S | S | M | D | M | D | F | S | S | M | D | M |
| Juni | D | F | S | S | M | D | M | D | F | S | S | M | D | M | D | F | S | S | M | D | M | D | F | S | S | M | D | M | D | F | |
| Juli | S | S | M | D | M | D | F | S | S | M | D | M | D | F | S | S | M | D | M | D | F | S | S | M | D | M | D | F | S | S | M |
| August | D | M | D | F | S | S | M | D | M | D | F | S | S | M | D | M | D | F | S | S | M | D | M | D | F | S | S | M | D | M | D |
| September | F | S | S | M | D | M | D | F | S | S | M | D | M | D | F | S | S | M | D | M | D | F | S | S | M | D | M | D | F | S | |
| Oktober | S | M | D | M | D | F | S | S | M | D | M | D | F | S | S | M | D | M | D | F | S | S | M | D | M | D | F | S | S | M | D |
| November | M | D | F | S | S | M | D | M | D | F | S | S | M | D | M | D | F | S | S | M | D | M | D | F | S | S | M | D | M | D | |
| Dezember | F | S | S | M | D | M | D | F | S | S | M | D | M | D | F | S | S | M | D | M | D | F | S | S | M | D | M | D | F | S | S |
| 2029 | 1 | 2 | 3 | 4 | 5 | 6 | 7 | 8 | 9 | 10 | 11 | 12 | 13 | 14 | 15 | 16 | 17 | 18 | 19 | 20 | 21 | 22 | 23 | 24 | 25 | 26 | 27 | 28 | 29 | 30 | 31 |
| Januar | M | D | M | D | F | S | S | M | D | M | D | F | S | S | M | D | M | D | F | S | |||||||||||