Ferienhaus i6870 in Harbo Stages Vej 8, Søndervig
Erlebt einen erholsamen Aufenthalt in diesem charmanten Ferienhaus in Søndervig im Harbo Stages Vej 8, welches im Jahr 2025 renoviert wurde. Mit einer Wohnfläche von 60m2 bietet dieses Ferienhaus alles, was ihr für einen erholsamen Urlaub braucht. Es ist ideal für eine kleine Familie oder eine kleine Gruppe von Freunden, da es Platz für bis zu 4 Personen bietet. Eure vierbeinigen Begleiter sind ebenfalls herzlich willkommen, denn in diesem Ferienhaus sind 2 Hunde erlaubt.
Gemütlichkeit vor dem Kamin
Die Küche ist gut ausgestattet und bereit für eure kulinarischen Abenteuer. Sie verfügt über eine praktische Spülmaschine, mit der ihr nach einer köstlichen Mahlzeit den Abwasch ganz leicht erledigen könnt. Hier könnt ihr gemeinsam kochen, lachen und genießen, während draußen die frische Nordseeluft weht.Der offene Wohnbereich ist das Herzstück eures Ferienhauses in Søndervig. Ein Kamin sorgt für wohlige Wärme und eine gemütliche Atmosphäre, besonders an kühleren Tagen. Ihr werdet es lieben, euch mit einem guten Buch oder in geselliger Runde am knisternden Feuer zu entspannen. Die Wärmepumpe ergänzt die wohlige Wärme und sorgt für energiefreundliche Gemütlichkeit.
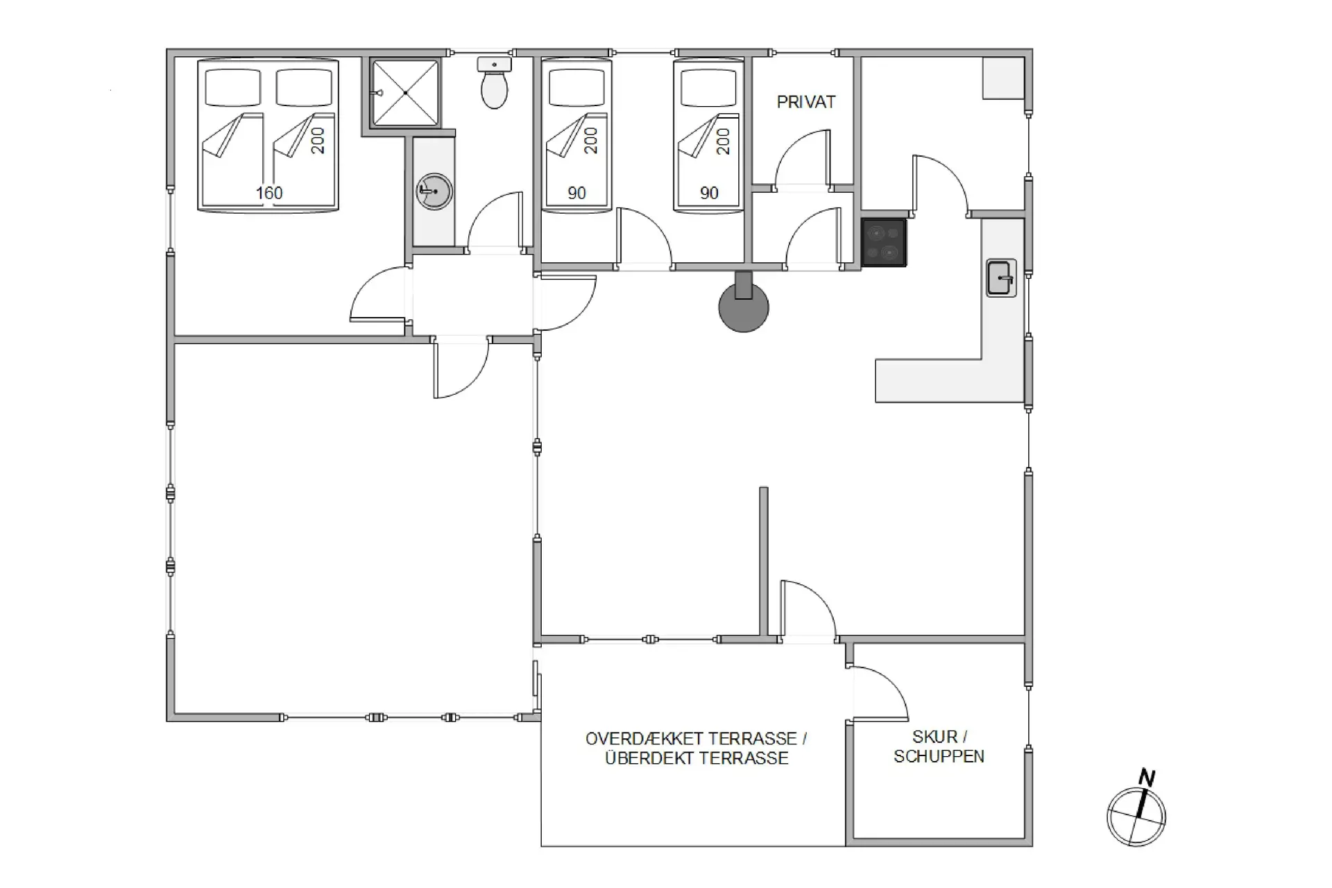
Das Ferienhaus hat zwei Schlafzimmer. In einem der Zimmer findet ihr ein Doppelbett, das zweite Schlafzimmer ist mit zwei Einzelbetten ausgestattet. Ein Rückzugsort für erholsame Nächte. Das Badezimmer ist mit einer Fußbodenheizung ausgestattet, sodass die Füße immer schöne warm bleiben.
Der einladende Außenbereich im Harbo Stages Vej 8
Der Außenbereich lädt euch ein, eure Tage auf der offenen oder überdachten Terrasse zu verbringen und die Gartenmöbel inklusive Grill für ein gemütliches Barbecue nutzen. Das Rasengrundstück lädt zu Spiel und Spaß im Freien ein. Hier könnt ihr euch zurücklehnen dem Rauschen der Nordsee lauschen und entspannen.
Strand und Einkaufsmöglichkeiten in der Nähe
Wenn ihr Lust auf einen Strandtag habt, sind es ca. 700 m bis zum Strand. Hier könnt ihr die Nordsee mit all ihren Facetten jeden Tag neu erleben. Ob ihr euch an einem warmen Sommertag mit einem Handtuch in den Sand legt oder euch im Herbst vom Wind neue Frisuren zaubern lasst. Ein Besuch an der dänischen Westküste ist Erholung pur.
Für den täglichen Bedarf könnt ihr bequem eure Einkäufe erledigen, denn verschiedene Supermärkte findet ihr in Søndervig, das ca. 600 m entfernt liegt. Hier findet ihr auch verschiedene Restaurants, aber auch das Erlebnisbad Lalandia, welches bestimmt bei den jüngeren Familienmitgliedern großen Anklang finden wird. Erkundet mit dem Rad die Umgebung und ihr werdet mit frisch aufgeladenen Batterien wieder in den Alltag zurückkehren können.
Hausbilder
Ausstattung
Allgemeines
- Anzahl Haustiere maximal: 2
- Anzahl Personen: 4
- Anzahl Personen: 4
- Baujahr: 1967
- Grundstücksfläche: 1.201 m²
- Haustiere erlaubt
- Nichtraucher
- Renovierung: 2025
- Wohnfläche: 60 m²
Entfernungen
- Abstand Einkauf: 600 m
- Abstand Wasser: 700 m Nordsee
Wohnbereich
- Flachbildfernseher
- Kaminofen
Schlafbereich
- Anzahl Doppelbetten: 1
- Anzahl Einzelbetten: 2
- Anzahl Schlafzimmer: 2
Küche
- Geschirrspüler
- Herd mit Backofen
- Kühlschrank
- Mikrowelle
- Tiefkühler: 50 l
Bad
- Anzahl Badezimmer: 1
Multimedia
- Deutsches Fernsehen
- Internationales Fernsehen
- Internet
Aussenbereich
- Gartenmöbel
-
Grundstück Naturgrundstück
Rasengrundstück - Grill
- Liegestuhl
- Sonnenschirm
- Terrasse: 1 offen
- Terrasse, überdacht
Sonstiges
- Besonderheiten Abstellraum
- Fußbodenheizung Bad
- Hauswechseltag Sonntag
- Wärmepumpe
Neben- und Verbrauchskosten
Die aktuellen Verbrauchskosten finden Sie im nächsten Schritt im Buchungsformular.
Raumaufteilung
Lageplan
Ferienhaus i6870
Harbo Stages Vej 8
Søndervig
6950 Ringkøbing
Belegungskalender
- Reisedauer auswählen
- Anzahl Reisende auswählen
- Anreisetag im Belegungskalender anklicken
- Sie bekommen Verfügbarkeit und Preis angezeigt
| 2026 | 1 | 2 | 3 | 4 | 5 | 6 | 7 | 8 | 9 | 10 | 11 | 12 | 13 | 14 | 15 | 16 | 17 | 18 | 19 | 20 | 21 | 22 | 23 | 24 | 25 | 26 | 27 | 28 | 29 | 30 | 31 |
| Mai | F | S | S | M | D | M | D | F | S | S | M | D | M | D | F | S | S | M | D | M | D | F | S | S | M | D | M | D | F | S | S |
| Juni | M | D | M | D | F | S | S | M | D | M | D | F | S | S | M | D | M | D | F | S | S | M | D | M | D | F | S | S | M | D | |
| Juli | M | D | F | S | S | M | D | M | D | F | S | S | M | D | M | D | F | S | S | M | D | M | D | F | S | S | M | D | M | D | F |
| August | S | S | M | D | M | D | F | S | S | M | D | M | D | F | S | S | M | D | M | D | F | S | S | M | D | M | D | F | S | S | M |
| September | D | M | D | F | S | S | M | D | M | D | F | S | S | M | D | M | D | F | S | S | M | D | M | D | F | S | S | M | D | M | |
| Oktober | D | F | S | S | M | D | M | D | F | S | S | M | D | M | D | F | S | S | M | D | M | D | F | S | S | M | D | M | D | F | S |
| November | S | M | D | M | D | F | S | S | M | D | M | D | F | S | S | M | D | M | D | F | S | S | M | D | M | D | F | S | S | M | |
| Dezember | D | M | D | F | S | S | M | D | M | D | F | S | S | M | D | M | D | F | S | S | M | D | M | D | F | S | S | M | D | M | D |
| 2027 | 1 | 2 | 3 | 4 | 5 | 6 | 7 | 8 | 9 | 10 | 11 | 12 | 13 | 14 | 15 | 16 | 17 | 18 | 19 | 20 | 21 | 22 | 23 | 24 | 25 | 26 | 27 | 28 | 29 | 30 | 31 |
| Januar | F | S | S | M | D | M | D | F | S | S | M | D | M | D | F | S | S | M | D | M | D | F | S | S | M | D | M | D | F | S | S |
| Februar | M | D | M | D | F | S | S | M | D | M | D | F | S | S | M | D | M | D | F | S | S | M | D | M | D | F | S | S | |||
| März | M | D | M | D | F | S | S | M | D | M | D | F | S | S | M | D | M | D | F | S | S | M | D | M | D | F | S | S | M | D | M |
| April | D | F | S | S | M | D | M | D | F | S | S | M | D | M | D | F | S | S | M | D | M | D | F | S | S | M | D | M | D | F | |
| Mai | S | S | M | D | M | D | F | S | S | M | D | M | D | F | S | S | M | D | M | D | F | S | S | M | D | M | D | F | S | S | M |
| Juni | D | M | D | F | S | S | M | D | M | D | F | S | S | M | D | M | D | F | S | S | M | D | M | D | F | S | S | M | D | M | |
| Juli | D | F | S | S | M | D | M | D | F | S | S | M | D | M | D | F | S | S | M | D | M | D | F | S | S | M | D | M | D | F | S |
| August | S | M | D | M | D | F | S | S | M | D | M | D | F | S | S | M | D | M | D | F | S | S | M | D | M | D | F | S | S | M | D |
| September | M | D | F | S | S | M | D | M | D | F | S | S | M | D | M | D | F | S | S | M | D | M | D | F | S | S | M | D | M | D | |
| Oktober | F | S | S | M | D | M | D | F | S | S | M | D | M | D | F | S | S | M | D | M | D | F | S | S | M | D | M | D | F | S | S |
| November | M | D | M | D | F | S | S | M | D | M | D | F | S | S | M | D | M | D | F | S | S | M | D | M | D | F | S | S | M | D | |
| Dezember | M | D | F | S | S | M | D | M | D | F | S | S | M | D | M | D | F | S | S | M | D | M | D | F | S | S | M | D | M | D | F |
| 2028 | 1 | 2 | 3 | 4 | 5 | 6 | 7 | 8 | 9 | 10 | 11 | 12 | 13 | 14 | 15 | 16 | 17 | 18 | 19 | 20 | 21 | 22 | 23 | 24 | 25 | 26 | 27 | 28 | 29 | 30 | 31 |
| Januar | S | S | M | D | M | D | F | S | S | M | D | M | D | F | S | S | M | D | M | D | F | S | S | M | D | M | D | F | S | S | M |
| Februar | D | M | D | F | S | S | M | D | M | D | F | S | S | M | D | M | D | F | S | S | M | D | M | D | F | S | S | M | D | ||
| März | M | D | F | S | S | M | D | M | D | F | S | S | M | D | M | D | F | S | S | M | D | M | D | F | S | S | M | D | M | D | F |
| April | S | S | M | D | M | D | F | S | S | M | D | M | D | F | S | S | M | D | M | D | F | S | S | M | D | M | D | F | S | S | |
| Mai | M | D | M | D | F | S | S | M | D | M | D | F | S | S | M | D | M | D | F | S | S | M | D | M | D | F | S | S | M | D | M |
| Juni | D | F | S | S | M | D | M | D | F | S | S | M | D | M | D | F | S | S | M | D | M | D | F | S | S | M | D | M | D | F | |
| Juli | S | S | M | D | M | D | F | S | S | M | D | M | D | F | S | S | M | D | M | D | F | S | S | M | D | M | D | F | S | S | M |
| August | D | M | D | F | S | S | M | D | M | D | F | S | S | M | D | M | D | F | S | S | M | D | M | D | F | S | S | M | D | M | D |
| September | F | S | S | M | D | M | D | F | S | S | M | D | M | D | F | S | S | M | D | M | D | F | S | S | M | D | M | D | F | S | |
| Oktober | S | M | D | M | D | F | S | S | M | D | M | D | F | S | S | M | D | M | D | F | S | S | M | D | M | D | F | S | S | M | D |
| November | M | D | F | S | S | M | D | M | D | F | S | S | M | D | M | D | F | S | S | M | D | M | D | F | S | S | M | D | M | D | |
| Dezember | F | S | S | M | D | M | D | F | S | S | M | D | M | D | F | S | S | M | D | M | D | F | S | S | M | D | M | D | F | S | S |
| 2029 | 1 | 2 | 3 | 4 | 5 | 6 | 7 | 8 | 9 | 10 | 11 | 12 | 13 | 14 | 15 | 16 | 17 | 18 | 19 | 20 | 21 | 22 | 23 | 24 | 25 | 26 | 27 | 28 | 29 | 30 | 31 |
| Januar | M | D | M | D | F | S | S | M | D | M | D | F | S | S | M | D | M | D | F | S | |||||||||||