Ferienhaus 161 in Lodbergsvej 321, Søndervig
Die Lage dieses schönen Ferienhauses im Lodbergsvej 321 ist erstklassig: Es liegt nur 150 Meter von der Nordsee und nur wenige Gehminuten von den vielen Angeboten in Søndervig entfernt - und dazu noch geschützt durch die Dünen, aber gleichzeitig so hoch gelegen, dass man über das offene Land bis zum Ringkøbing Fjord blicken kann.
Einrichtung
Die Aussicht zieht sich bis ins Wohnzimmer und trägt dazu bei, Ihr Urlaubserlebnis besonders schön zu machen. Sowohl der Esstisch als auch die Sofaecke stehen an den großen Fenstern, während die Sessel des Hauses beim Flachbildschirm platziert sind, sodass Sie beim Fernsehen bequem sitzen können. Das Wohnzimmer verfügt sowohl über einen Kaminofen als auch über eine Wärmepumpe mit Kühlfunktion. An dem einen Ende des Hauses befindet sich die Küche, die mit einem Cerankochfeld, einem Umluftofen, einer Spülmaschine und vielem mehr ausgestattet ist. Die Geschwindigkeit der Wi-Fi-Verbindung ist ein Genuss für alle, die gerne bis spät abends online unterwegs sind oder Filme streamen, dennoch empfiehlt es sich, rechtzeitig ins Bett zu gehen - denn was gibt es Schöneres, als in den Ferien nach einem langen und erholsamen Schlaf ausgeruht zu erwachen? Es gibt zwei Schlafzimmer, von denen eines mit einem Fernseher ausgestattet ist. Auch das Badezimmer ist wie die anderen Räume des Haus geschmackvoll und hell eingerichtet.
Bitte beachten Sie, dass die Garage nur zur privaten Nutzung dient und daher nicht genutzt werden kann.
Außenbereich
Der Außenbereich ist mindestens genauso ansprechend wie das Ferienhaus selbst, denn hier haben Sie die Wahl, ob Sie bei einem Kaffee oder bei einem guten Buch den Blick über die Dünen an der Westküste oder bis zum Ringkøbing Fjord schweifen lassen. Eine teilweise überdachte Terrasse befindet sich im Osten, eine weitere, offene Terrasse im Westen des Hauses. Des Weiteren bietet das Haus einen großen Garten, der durch Zäune abgeschirmt wird. Neben Loungemöbeln, Sonnenschirm und Grill stehen Ihnen hochwertige Gartenmöbel zur Verfügung. Eine hohe Düne sorgt dafür, dass das Haus und der Außenbereich windgeschützt sind.
Lage
Die Straße endet als Sackgasse in der Nähe des Ferienhauses. Sie müssen nicht mehr als 150 Meter gehen, bis Sie am schönen Sandstrand von Søndervig stehen und in die Wellen der Nordsee eintauchen können. Wenn das Wetter nicht zum Baden einlädt, gibt es im Ort ein tropisches Erlebnisbad, tolle Spielplätze, einen Golfplatz und das jährliche Sandskulpturenfestival. Vom Ferienhaus aus haben Sie einen kurzen Fußweg zur guten Auswahl an Geschäften und Restaurants des Badeortes. Wenn Sie Fahrräder mitgebracht haben, können Sie natürlich auch die landschaftlich reizvolle Umgebung erkunden - zum Beispiel das Fischerdorf Hvide Sande, das so schön inmitten von Holmsland Klit liegt.
GRATIS! Kostenloser Verleih von Kinderreisebetten und Hochstühlen. Sie können ebenfalls Hundebetten ausleihen, allerdings nur dann, wenn auch in Ihrem Mietobjekt ein Hund erlaubt ist. Die Abholung und Rückgabe aller Gegenstände erfolgt bei Feriepartner Hvide Sande.
Lademöglichkeit für E-Autos: Schauen Sie bitte unter "Ausstattung" nach, ob bei diesem Mietobjekt eine Lademöglichkeit für E-Autos vorhanden ist.
Hausbilder
Ausstattung
Allgemeines
- Anzahl Personen: 4
- Baujahr: 1978
- Energiesparhaus
- Grundstücksfläche: 1.300 m² Naturgrundstück
- Inkl. Endreinigung
- Nichtraucher
- Renovierung: 1998 Teilw. renoviert
- Wohnfläche: 62 m²
Entfernungen
- Abstand Einkauf: 800 m Ganzjährig geöffnet
- Abstand Golfplatz: 1.200 m
- Abstand Restaurant: 300 m
- Abstand Schwimmhalle: 250 m
- Abstand Strand: 150 m Sand-/Steinstrand
- Abstand Küste: 150 m
- Abstand Fjord: 1.200 m
Wohnbereich
- Kaminofen
Schlafbereich
- Anzahl Doppelbetten: 1
- Anzahl Einzelbetten: 2 80 x 200 cm.
Küche
- Dunstabzug
- Geschirrspüler
- Herd Glaskeramik mit Heißluftofen
- Kaffeemaschine
- Kühlschrank l
- Mikrowelle
- Tiefkühler: 40 l
- Wasserkocher
Bad
- Anzahl Duschen: 1
- Anzahl Toiletten: 1
- Waschmaschine
Multimedia
- Deutsches Fernsehen ARD, NDR, RTL, ZDF
- Deutsches Fernsehen 4 Kanäle
- Deutsches Fernsehen
- DVD-Player DVD im Fernseher integriert
-
Internationales Fernsehen norwegische Programme
Schwedisches Fernsehen -
Internationales Fernsehen norwegische Programme
Schwedisches Fernsehen - Internationales Fernsehen You See lille pakke
- Internationales Fernsehen Dänisches Fernsehen
- Internationales Fernsehen Dänisches Fernsehen, You See lille pakke, DR, TV2, TV3, norsk, svensk og 4 tyske kanaler
- Internet Kostenloses Wi-Fi - Mehr als 20 Mbit
- Radio
Aussenbereich
- Gartenmöbel
- Grill
- Liegestuhl
- Terrasse: 15 m² Überdachte Terrasse
- Terrasse: 20 m²
Sonstiges
- Bei diesem Haus inkl. Wasser
- Das Aufladen von Elektroautos ist nicht erlaubt
- Wärmepumpe Mit Kühlfunktion
- Sonstiges Chromecast, im Fernseher eingebaut
- Sonstiges Chromecast
Neben- und Verbrauchskosten
Die aktuellen Verbrauchskosten finden Sie im nächsten Schritt im Buchungsformular.
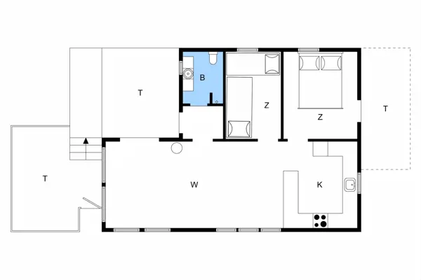
Raumaufteilung
Lageplan
Ferienhaus 161
Lodbergsvej 321
Søndervig
6950 Ringkøbing
Belegungskalender
- Reisedauer auswählen
- Anzahl Reisende auswählen
- Anreisetag im Belegungskalender anklicken
- Sie bekommen Verfügbarkeit und Preis angezeigt
| 2026 | 1 | 2 | 3 | 4 | 5 | 6 | 7 | 8 | 9 | 10 | 11 | 12 | 13 | 14 | 15 | 16 | 17 | 18 | 19 | 20 | 21 | 22 | 23 | 24 | 25 | 26 | 27 | 28 | 29 | 30 | 31 |
| Mai | F | S | S | M | D | M | D | F | S | S | M | D | M | D | F | S | S | M | D | M | D | F | S | S | M | D | M | D | F | S | S |
| Juni | M | D | M | D | F | S | S | M | D | M | D | F | S | S | M | D | M | D | F | S | S | M | D | M | D | F | S | S | M | D | |
| Juli | M | D | F | S | S | M | D | M | D | F | S | S | M | D | M | D | F | S | S | M | D | M | D | F | S | S | M | D | M | D | F |
| August | S | S | M | D | M | D | F | S | S | M | D | M | D | F | S | S | M | D | M | D | F | S | S | M | D | M | D | F | S | S | M |
| September | D | M | D | F | S | S | M | D | M | D | F | S | S | M | D | M | D | F | S | S | M | D | M | D | F | S | S | M | D | M | |
| Oktober | D | F | S | S | M | D | M | D | F | S | S | M | D | M | D | F | S | S | M | D | M | D | F | S | S | M | D | M | D | F | S |
| November | S | M | D | M | D | F | S | S | M | D | M | D | F | S | S | M | D | M | D | F | S | S | M | D | M | D | F | S | S | M | |
| Dezember | D | M | D | F | S | S | M | D | M | D | F | S | S | M | D | M | D | F | S | S | M | D | M | D | F | S | S | M | D | M | D |
| 2027 | 1 | 2 | 3 | 4 | 5 | 6 | 7 | 8 | 9 | 10 | 11 | 12 | 13 | 14 | 15 | 16 | 17 | 18 | 19 | 20 | 21 | 22 | 23 | 24 | 25 | 26 | 27 | 28 | 29 | 30 | 31 |
| Januar | F | S | S | M | D | M | D | F | S | S | M | D | M | D | F | S | S | M | D | M | D | F | S | S | M | D | M | D | F | S | S |
| Februar | M | D | M | D | F | S | S | M | D | M | D | F | S | S | M | D | M | D | F | S | S | M | D | M | D | F | S | S | |||
| März | M | D | M | D | F | S | S | M | D | M | D | F | S | S | M | D | M | D | F | S | S | M | D | M | D | F | S | S | M | D | M |
| April | D | F | S | S | M | D | M | D | F | S | S | M | D | M | D | F | S | S | M | D | M | D | F | S | S | M | D | M | D | F | |
| Mai | S | S | M | D | M | D | F | S | S | M | D | M | D | F | S | S | M | D | M | D | F | S | S | M | D | M | D | F | S | S | M |
| Juni | D | M | D | F | S | S | M | D | M | D | F | S | S | M | D | M | D | F | S | S | M | D | M | D | F | S | S | M | D | M | |
| Juli | D | F | S | S | M | D | M | D | F | S | S | M | D | M | D | F | S | S | M | D | M | D | F | S | S | M | D | M | D | F | S |
| August | S | M | D | M | D | F | S | S | M | D | M | D | F | S | S | M | D | M | D | F | S | S | M | D | M | D | F | S | S | M | D |
| September | M | D | F | S | S | M | D | M | D | F | S | S | M | D | M | D | F | S | S | M | D | M | D | F | S | S | M | D | M | D | |
| Oktober | F | S | S | M | D | M | D | F | S | S | M | D | M | D | F | S | S | M | D | M | D | F | S | S | M | D | M | D | F | S | S |
| November | M | D | M | D | F | S | S | M | D | M | D | F | S | S | M | D | M | D | F | S | S | M | D | M | D | F | S | S | M | D | |
| Dezember | M | D | F | S | S | M | D | M | D | F | S | S | M | D | M | D | F | S | S | M | D | M | D | F | S | S | M | D | M | D | F |
| 2028 | 1 | 2 | 3 | 4 | 5 | 6 | 7 | 8 | 9 | 10 | 11 | 12 | 13 | 14 | 15 | 16 | 17 | 18 | 19 | 20 | 21 | 22 | 23 | 24 | 25 | 26 | 27 | 28 | 29 | 30 | 31 |
| Januar | S | S | M | D | M | D | F | S | S | M | D | ||||||||||||||||||||
FAQ
Wie hoch sind die Nebenkosten?
Die Kosten für Strom, Wasser, (bei einigen Häusern Gas) werden nach tagesaktuellen Preisen abgerechnet und hängen von vielen verschiedenen Faktoren ab, wie zum Beispiel Anzahl Personen, Größe des Hauses oder Ausstattung. In der Regel lässt sich sagen, dass ein Standardhaus ohne Pool, Whirlpool und Sauna im Sommer ca. 5 kWh pro Person pro Tag verbraucht. Im Winter gerne bei 10 kWh und darüber. Bei Poolhäusern mit Whirlpool und Sauna liegt der Wert im Sommer bei ca. 20 kWh und im Winter ca. bei 40 kWh. Auch hier variieren die Preise stark von Größe des Pools, Ausstattung, Größe des Hauses, Modell des Whirlpools und individuellem Verbrauch im Haus. Der Wasserverbrauch variiert ebenfalls stark und kann bei ca. 0,1-0,2 m³ pro Person pro Tag in einem Standardhaus liegen und bei Poolhäusern bei ca. 0,4-0,5 m³. Wenn eine Kaution bei der Buchung angegeben ist, ist diese angepasst an den ungefähren Durchschnittsverbrauch an Nebenkosten im Haus.
Alle Angaben ohne Gewähr und dienen lediglich als Richtwert und nicht als tatsächliche Prognose.
Kann ich das Haus reservieren?
Reservierungen sind in der Regel nicht möglich. In einigen Fällen ist es uns jedoch möglich, Reservierungen zu erstellen. Fragen Sie gerne direkt bei uns an, ob für dieses Haus eine Reservierung möglich ist.
Wie bekomme ich den Schlüssel für das Ferienhaus?
Mittlerweile sind bei fast allen Feriepartner Ferienhäusern Schlüsselboxen an den Häusern angebracht. Über den “Mein Feriepartner”- Link in der Buchungsbestätigung erhalten Sie Zugang zu Ihrer Buchung und können im Fenster der Schlüsselübergabe 48 Stunden vor Anreise einen Zugangscode einsehen, über welchen Sie den Schlüssel am Haus erhalten.
Ab wann ist das Haus bezugsbereit?
Die Ferienhäuser werden zwischen 10 Uhr und 16 Uhr gereinigt und sind spätestens ab 16 Uhr bezugsbereit. Wann Ihr Ferienhaus am Anreisetag gereinigt wird, entscheidet das Büro vor Ort kurz vorher, in Absprache mit dem Servicepersonal und der effektivsten Route für die Servicekräfte. Sobald Ihr Ferienhaus bezugsbereit ist, erhalten Sie, sofern Ihre Mobilnummer korrekt angegeben ist, eine SMS von Feriepartner mit dem Bescheid und allen wichtigen Informationen zum Beziehen Ihres Ferienhauses.
Wie läuft die Bezahlung ab?
Nach Aufgabe der Buchung und Bestätigung seitens Feriepartner wird die erste Rate in Höhe von 25 % des Mietpreises auf Ihrem Mietvertrag sofort fällig. Sie können die Raten und Beträge im Mietvertrag oder über “Mein Feriepartner” einsehen. Bis 70 Tage vor Anreise ist die Frist für den noch offenen Restbetrag Ihrer Buchung. Sind weniger als 70 Tage bis zur Anreise, wird der gesamte Betrag in einer Rate fällig.
Wie sind die Umbuchungs- / Stornierungsbedingungen?
Bei Feriepartner ist eine Reiserücktrittsversicherung immer im Mietpreis inklusive enthalten. Sie erhalten Informationen zu den Bedingungen nach Abschluss der Buchung oder bei der Versicherungsgesellschaft Tryg A/S. Bei Stornierungen ohne den Gebrauch der Reiserücktrittsversicherung werden bis 70 Tage vor Anreise 25 % des Mietpreises fällig. Dies entspricht der ersten Rate. Ab 70 Tagen vor Anreise bis zum Anreisetag werden 80 % fällig, ab dem Anreisetag 100 %. Umbuchungen können bei Feriepartner gegen eine Gebühr von 70 € bis 70 Tage vor Anreise vorgenommen werden, allerdings nur im gleichen Kalenderjahr.
Wann erhalte ich meine Nebenkostenabrechnung?
Die Abrechnung geschieht, sofern Feriepartner alle Informationen korrekt vorliegen, innerhalb von 14 Tagen nach Abreise. Denken Sie daran Ihre IBAN und BIC bei Feriepartner zu hinterlegen, sofern Sie per Banküberweisung gezahlt haben, damit Feriepartner einen eventuellen Restbetrag auf Ihr Konto zurück überweisen kann.
Jugendgruppen unter 25 Jahren?
Bei Feriepartner gilt eine Jugendgruppe ab 3 Personen und bis 25 Jahre der einzelnen Mitreisenden. Zwei Personen unter 25 Jahre gelten i. d. R. nicht als Jugendgruppe. In speziellen Fällen können wir individuell für Sie anfragen.