Ferienhaus 4047 in Ingeborghusvej 4, Tornby, Tornby Strand
In Tornby, nahe dem Strand, liegt dieses wunderschöne und gut ausgestattete Ferienhaus, das eine gemütliche Einrichtung mit fantastischem Ausblick sowie Pool, Whirlpool und Sauna bietet. Die perfekte Basis für ein gelungenes und unvergessliches Urlaubserlebnis an der Nordsee.
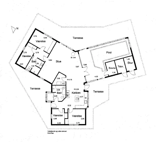
Dieses geräumige Ferienhaus bietet Platz für 8 Personen und hat eine fantastische Lage, nur 400 Meter vom einladenden, breiten Sandstrand in Tornby entfernt. Mit einem herrlichen Meerblick vom Haus aus könnt ihr die wunderschöne Umgebung genießen, und die großen Glasfronten sorgen den ganzen Tag über für reichlich Licht. Das Haus verfügt über 4 Schlafzimmer und 2 Badezimmer, sodass hier viel Platz für Gemütlichkeit und gemeinsame Zeit mit der großen Familie ist. Es gibt auch einen kleinen Hängeboden, wo die Kinder es sich gemütlich machen können und einen Blick auf die Familie in der Küche haben. Die Küche ist offen mit dem Essbereich und der Sofaecke verbunden, von wo aus ihr die Natur draußen und den Poolbereich sehen könnt. An kühlen Abenden könnt ihr den Kamin anzünden und euch nach einem erlebnisreichen Tag mit der Familie entspannen. Sicherlich werdet ihr einen Großteil der Zeit im Poolbereich verbringen, der mit einem Innenpool, Whirlpool und Sauna ausgestattet ist. Hier gibt es Platz für Entspannung und Spaß für die ganze Familie.
Bettenverteilung
Schlafzimmer 1: 2 Schlafplätze (Doppelbett)
Schlafzimmer 2: 2 Schlafplätze (Doppelbett)
Schlafzimmer 3: 2 Schlafplätze (Doppelbett)
Schlafzimmer 4: 2 Schlafplätze (2 Einzelbetten)
Draußen
Draußen erwartet euch ein schönes Terrassenumfeld, und die große Holzterrasse, die um das ganze Haus herumführt, bietet mehrere gemütliche Ecken, in denen ihr euch entspannen, Windschutz finden und die Sonne den ganzen Tag genießen könnt. Egal, wo ihr euch befindet, habt ihr eine herrliche Aussicht auf die Umgebung und das Meer. Genießt die Umgebung und die frische Meeresluft, während ihr die Ruhe auf euch wirken lasst. Die Terrasse ist perfekt für Outdoor-Gemütlichkeit und Entspannung, zum Beispiel für einen Grillabend an einem warmen Sommerabend.
Aktivitäten und Erlebnisse in der Umgebung
Der Tornby Strand ist ein attraktives Gebiet mit einem breiten, familienfreundlichen Sandstrand, der das ganze Jahr über beliebt ist. Hier könnt ihr die großartige Natur und die ruhige Umgebung genießen, während ihr gleichzeitig in der Nähe von Hirtshals seid, das Einkaufsmöglichkeiten, Restaurants und spannende Sehenswürdigkeiten wie das Nordsøen Oceanarium bietet – eines der größten Aquarien Europas. Entlang der beeindruckenden Küstenlinie findet ihr mehrere charmante Küstenstädte, jede mit ihrer eigenen Geschichte, die definitiv einen Besuch wert sind. Die Stadt Hjørring mit ihrem pulsierenden Handelsleben liegt nur eine kurze Autofahrt entfernt und bietet alles von Kino über Schwimmbad bis hin zu Einkaufszentren.
Bucht euren nächsten Urlaub in diesem wunderschönen Ferienhaus jetzt und erlebt das Beste von Nordjütland mit Meerblick, Pool und Platz für die ganze Familie!
Hausbilder
Ausstattung
Allgemeines
- Anzahl Personen: 8
- Baujahr: 1992
- Carport
- Grundstücksfläche: 1.630 m²
- Renovierung: 2009
- Wohnfläche: 167 m²
Entfernungen
- Abstand Einkauf: 4.000 m
- Abstand Restaurant: 10.000 m
- Abstand Strand: 400 m
Wohnbereich
- Kaminofen
Schlafbereich
- Anzahl Doppelbetten: 3
- Anzahl Einzelbetten: 2 90x200 cm
- Anzahl Schlafzimmer: 4
Küche
- Gefrierschrank l
- Geschirrspüler
- Mikrowelle
Bad
- Anzahl Badezimmer: 2
- Anzahl Toiletten: 2
- Trockner
- Waschmaschine
Wellness
- Pool
- Sauna
- Whirlpool
Multimedia
- Deutsches Fernsehen
-
Internationales Fernsehen Dänische Programme
Norwegische Programme
Schwedische Programme - Internet WLAN
Aussenbereich
- Gartenmöbel
- Grill Gasgrill
- Sonnenschirm
Sonstiges
- Besonderheiten Chromecast
- Ladestation für Elektroautos
- Meerblick
Neben- und Verbrauchskosten
Die aktuellen Verbrauchskosten finden Sie im nächsten Schritt im Buchungsformular.
Raumaufteilung
Lageplan
Ferienhaus 4047
Ingeborghusvej 4, Tornby
9850 Hirtshals
Belegungskalender
- Reisedauer auswählen
- Anzahl Reisende auswählen
- Anreisetag im Belegungskalender anklicken
- Sie bekommen Verfügbarkeit und Preis angezeigt
| 2026 | 1 | 2 | 3 | 4 | 5 | 6 | 7 | 8 | 9 | 10 | 11 | 12 | 13 | 14 | 15 | 16 | 17 | 18 | 19 | 20 | 21 | 22 | 23 | 24 | 25 | 26 | 27 | 28 | 29 | 30 | 31 |
| April | M | D | F | S | S | M | D | M | D | F | S | S | M | D | M | D | F | S | S | M | D | M | D | F | S | S | M | D | M | D | |
| Mai | F | S | S | M | D | M | D | F | S | S | M | D | M | D | F | S | S | M | D | M | D | F | S | S | M | D | M | D | F | S | S |
| Juni | M | D | M | D | F | S | S | M | D | M | D | F | S | S | M | D | M | D | F | S | S | M | D | M | D | F | S | S | M | D | |
| Juli | M | D | F | S | S | M | D | M | D | F | S | S | M | D | M | D | F | S | S | M | D | M | D | F | S | S | M | D | M | D | F |
| August | S | S | M | D | M | D | F | S | S | M | D | M | D | F | S | S | M | D | M | D | F | S | S | M | D | M | D | F | S | S | M |
| September | D | M | D | F | S | S | M | D | M | D | F | S | S | M | D | M | D | F | S | S | M | D | M | D | F | S | S | M | D | M | |
| Oktober | D | F | S | S | M | D | M | D | F | S | S | M | D | M | D | F | S | S | M | D | M | D | F | S | S | M | D | M | D | F | S |
| November | S | M | D | M | D | F | S | S | M | D | M | D | F | S | S | M | D | M | D | F | S | S | M | D | M | D | F | S | S | M | |
| Dezember | D | M | D | F | S | S | M | D | M | D | F | S | S | M | D | M | D | F | S | S | M | D | M | D | F | S | S | M | D | M | D |
| 2027 | 1 | 2 | 3 | 4 | 5 | 6 | 7 | 8 | 9 | 10 | 11 | 12 | 13 | 14 | 15 | 16 | 17 | 18 | 19 | 20 | 21 | 22 | 23 | 24 | 25 | 26 | 27 | 28 | 29 | 30 | 31 |
| Januar | F | S | S | M | D | M | D | F | S | S | M | D | M | D | F | S | S | M | D | M | D | F | S | S | M | D | M | D | F | S | S |
| Februar | M | D | M | D | F | S | S | M | D | M | D | F | S | S | M | D | M | D | F | S | S | M | D | M | D | F | S | S | |||
| März | M | D | M | D | F | S | S | M | D | M | D | F | S | S | M | D | M | D | F | S | S | M | D | M | D | F | S | S | M | D | M |
| April | D | F | S | S | M | D | M | D | F | S | S | M | D | M | D | F | S | S | M | D | M | D | F | S | S | M | D | M | D | F | |
| Mai | S | S | M | D | M | D | F | S | S | M | D | M | D | F | S | S | M | D | M | D | F | S | S | M | D | M | D | F | S | S | M |
| Juni | D | M | D | F | S | S | M | D | M | D | F | S | S | M | D | M | D | F | S | S | M | D | M | D | F | S | S | M | D | M | |
| Juli | D | F | S | S | M | D | M | D | F | S | S | M | D | M | D | F | S | S | M | D | M | D | F | S | S | M | D | M | D | F | S |
| August | S | M | D | M | D | F | S | S | M | D | M | D | F | S | S | M | D | M | D | F | S | S | M | D | M | D | F | S | S | M | D |
| September | M | D | F | S | S | M | D | M | D | F | S | S | M | D | M | D | F | S | S | M | D | M | D | F | S | S | M | D | M | D | |
| Oktober | F | S | S | M | D | M | D | F | S | S | M | D | M | D | F | S | S | M | D | M | D | F | S | S | M | D | M | D | F | S | S |
| November | M | D | M | D | F | S | S | M | D | M | D | F | S | S | M | D | M | D | F | S | S | M | D | M | D | F | S | S | M | D | |
| Dezember | M | D | F | S | S | M | D | M | D | F | S | S | M | D | M | D | F | S | S | M | D | M | D | F | S | S | M | D | M | D | F |
| 2028 | 1 | 2 | 3 | 4 | 5 | 6 | 7 | 8 | 9 | 10 | 11 | 12 | 13 | 14 | 15 | 16 | 17 | 18 | 19 | 20 | 21 | 22 | 23 | 24 | 25 | 26 | 27 | 28 | 29 | 30 | 31 |
| Januar | S | S | M | D | M | D | F | S | S | M | D | M | D | F | S | S | M | D | M | D | F | S | S | M | D | M | D | F | S | S | M |
| Februar | D | M | D | F | S | S | M | D | M | D | F | S | S | M | D | M | D | F | S | S | M | D | M | D | F | S | S | M | D | ||
| März | M | D | F | S | S | M | D | M | D | F | S | S | M | D | M | D | F | S | S | M | D | M | D | F | S | S | M | D | M | D | F |
| April | S | S | M | D | M | D | F | S | S | M | D | M | D | F | S | S | M | D | M | D | F | S | S | M | D | M | D | F | S | S | |
| Mai | M | D | M | D | F | S | S | M | D | M | D | F | S | S | M | D | M | D | F | S | S | M | D | M | D | F | S | S | M | D | M |
| Juni | D | F | S | S | M | D | M | D | F | S | S | M | D | M | D | F | S | S | M | D | M | D | F | S | S | M | D | M | D | F | |
| Juli | S | S | M | D | M | D | F | S | S | M | D | M | D | F | S | S | M | D | M | D | F | S | S | M | D | M | D | F | S | S | M |
| August | D | M | D | F | S | S | M | D | M | D | F | S | S | M | D | M | D | F | S | S | M | D | M | D | F | S | S | M | D | M | D |
| September | F | S | S | M | D | M | D | F | S | S | M | D | M | D | F | S | S | M | D | M | D | F | S | S | M | D | M | D | F | S | |
| Oktober | S | M | D | M | D | F | S | S | M | D | M | D | F | S | S | M | D | M | D | F | S | S | M | D | M | D | F | S | S | M | D |
| November | M | D | F | S | S | M | D | M | D | F | S | S | M | D | M | D | F | S | S | M | D | M | D | F | S | S | M | D | M | D | |
| Dezember | F | S | S | M | D | M | D | F | S | S | M | D | M | D | F | S | S | M | D | M | D | F | S | S | M | D | M | D | F | S | S |
| 2029 | 1 | 2 | 3 | 4 | 5 | 6 | 7 | 8 | 9 | 10 | 11 | 12 | 13 | 14 | 15 | 16 | 17 | 18 | 19 | 20 | 21 | 22 | 23 | 24 | 25 | 26 | 27 | 28 | 29 | 30 | 31 |
| Januar | M | D | M | D | F | S | S | M | D | M | D | F | S | S | M | D | M | D | F | S | S | M | D | M | D | F | S | S | M | D | M |
| Februar | D | F | S | S | M | D | M | D | F | S | S | M | D | M | D | F | S | S | M | D | M | D | F | S | S | M | D | M | |||
| März | D | F | S | S | M | D | M | D | F | S | S | M | D | M | D | F | S | S | M | D | M | D | F | S | S | M | D | M | D | F | S |
| April | S | M | D | M | D | F | S | S | M | D | M | D | F | S | S | M | D | M | D | ||||||||||||