Ferienhaus D3548 in Vinterlejevej 53, Haurvig
Seid ihr auf der Suche nach einem stilvollen Ferienhaus, in dem ihr euch rundum wohlfühlen könnt? Dann ist dieses geschmackvoll eingerichtete Ferienhaus im Vinterlejevej 53 bestimmt genau das Richtige für euch. Die 104 gepflegten Quadratmeter erstrecken sich über 2 Etagen und bieten Platz für bis zu 6 Personen. Hier erwarten euch Entspannung vorm Kamin und eine zauberhafte Aussicht von der 1. Etage Richtung Ringkøbing Fjord.
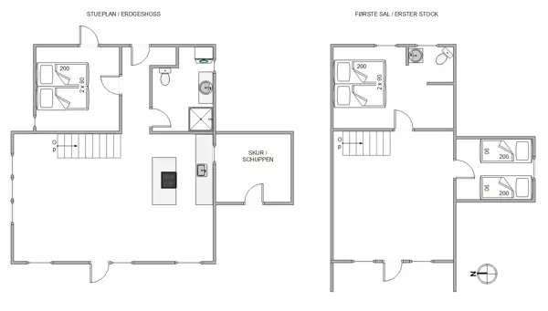
Komfort über 2 Etagen im Vinterlejevej 53
Bereits beim Betreten fühlt man sich hier wie zu Hause. Im Erdgeschoss werdet ihr durch einen großzügigen Wohnbereich mit offener Küche und Essplatz empfangen. Hier könnt ihr es euch auf dem Sofa bequem machen und einen Film schauen oder in der gut ausgestatteten Küche leckere Gerichte zubereiten. In der Küche findet ihr u. a. eine Spülmaschine, einen Induktionsherd und eine 60-L-Gefriermöglichkeit. Versammelt euch um die Kochinsel und probiert gemeinsam neue Rezepte aus. Wie wäre es einmal mit einem typisch dänischen Menü?
Nach dem Essen ist Zeit für Entspannung, z. B. mit eurem Lieblingsbuch vorm knisternden Kaminfeuer. Zusätzlich zum Kaminofen könnt ihr im Erdgeschoss aber auch mit der Fußbodenheizung heizen, die mit einer energiesparenden Wärmepumpe betrieben wird. Im Erdgeschoss befinden sich zudem das gepflegte Tageslichtbad und eines der gemütlichen Schlafzimmer mit 2 Einzelbetten. Dank Waschmaschine und Trockner könnt ihr regelmäßig eure Strandtücher auffrischen.
Folgt ihr der Treppe in die obere Etage, so findet ihr hier ein zweites gemütliches Wohnzimmer mit Zugang zum Balkon, von dem aus ihr eine tolle Panoramaaussicht in Richtung Fjord genießen könnt. Zudem befinden sich hier 2 weitere Schlafzimmer und ein praktisches Gäste-WC. Bitte beachtet, dass das Gäste-WC nicht durch eine Tür vom Schlafzimmer abgetrennt ist. In dem anderen Schlafzimmer gibt es 2 Einzelbetten und sehr niedrige Decken mit Dachschrägen. Hier können eure kleineren Kinder einen gemütlichen Schlafplatz finden.
Entspannung auf der teils überdachten Terrasse
Auf einem 2500 m² großen Naturgrundstück liegt euer Ferienhaus ganz idyllisch zwischen Dünenhügeln und Heide. Auf der südgewandten Terrasse, die teils überdacht ist, findet ihr gemütliche Gartenmöbel, die euch zum Entspannen an der frischen Luft einladen. Auch ein Grill steht für euren BBQ-Abend bereit. So könnt ihr den Urlaubstag in geselliger Runde ausklingen lassen.
Malerisches Haurvig - zwischen Nordsee und Ringkøbing Fjord
Das naturschöne Gebiet Haurvig befindet sich auf der Landenge Holmsland Klit - somit habt ihr es nie weit bis zum Wasser. Nur 1 km trennt euch von der brausenden Nordsee und nur ein kurzer Spaziergang ist es bis zum Ringkøbing Fjord. Beide Gewässer sind für Wassersport jeder Art hervorragend geeignet. Egal ob Surfen, Kiten, Paddeln oder Angeln – hier ist für jeden etwas dabei.
Auch ein Besuch in der nahen Hafenstadt Hvide Sande lohnt sich. Hier findet ihr Einkaufsmöglichkeiten, Restaurants und kulturelle Angebote.
Hausbilder
Ausstattung
Allgemeines
- Anzahl Personen: 6
- Anzahl Personen: 4
- Baujahr: 2014
- Grundstücksfläche: 2.500 m²
- Nichtraucher
- Tolle Aussicht Panoramablick
- Wohnfläche: 104 m²
Entfernungen
- Abstand Einkauf: 6.500 m
- Abstand Wasser: 1.000 m Nordsee
Wohnbereich
- Flachbildfernseher
- Kaminofen
- Schlafboden
Schlafbereich
- Anzahl Einzelbetten: 6
- Anzahl Schlafzimmer: 3
Küche
- Geschirrspüler
- Herd Induktion mit Backofen
- Kühlschrank
- Mikrowelle
- Tiefkühler: 60 l
Bad
- Anzahl Badezimmer: 1
- Trockner
- Waschmaschine
Multimedia
- Deutsches Fernsehen
- DVD-Player
- Internationales Fernsehen
- Internet
- Radio
Aussenbereich
- Gartenmöbel
- Grundstück Naturgrundstück
- Grill
- Liegestuhl
- Sonnenschirm
-
Terrasse: 1 abgeschirmt
offen - Terrasse, überdacht
Sonstiges
- Besonderheiten Abstellraum
-
Fußbodenheizung Bad
Schlafzimmer
Wohnbereich - Hauswechseltag Samstag
- Wärmepumpe Luft-Wasser
Neben- und Verbrauchskosten
Die aktuellen Verbrauchskosten finden Sie im nächsten Schritt im Buchungsformular.
Raumaufteilung
Lageplan
Ferienhaus D3548
Vinterlejevej 53
Haurvig
6960 Hvide Sande
Belegungskalender
- Reisedauer auswählen
- Anzahl Reisende auswählen
- Anreisetag im Belegungskalender anklicken
- Sie bekommen Verfügbarkeit und Preis angezeigt
| 2025 | 1 | 2 | 3 | 4 | 5 | 6 | 7 | 8 | 9 | 10 | 11 | 12 | 13 | 14 | 15 | 16 | 17 | 18 | 19 | 20 | 21 | 22 | 23 | 24 | 25 | 26 | 27 | 28 | 29 | 30 | 31 |
| Oktober | M | D | F | S | S | M | D | M | D | F | S | S | M | D | M | D | F | S | S | M | D | M | D | F | S | S | M | D | M | D | F |
| November | S | S | M | D | M | D | F | S | S | M | D | M | D | F | S | S | M | D | M | D | F | S | S | M | D | M | D | F | S | S | |
| Dezember | M | D | M | D | F | S | S | M | D | M | D | F | S | S | M | D | M | D | F | S | S | M | D | M | D | F | S | S | M | D | M |
| 2026 | 1 | 2 | 3 | 4 | 5 | 6 | 7 | 8 | 9 | 10 | 11 | 12 | 13 | 14 | 15 | 16 | 17 | 18 | 19 | 20 | 21 | 22 | 23 | 24 | 25 | 26 | 27 | 28 | 29 | 30 | 31 |
| Januar | D | F | S | S | M | D | M | D | F | S | S | M | D | M | D | F | S | S | M | D | M | D | F | S | S | M | D | M | D | F | S |
| Februar | S | M | D | M | D | F | S | S | M | D | M | D | F | S | S | M | D | M | D | F | S | S | M | D | M | D | F | S | |||
| März | S | M | D | M | D | F | S | S | M | D | M | D | F | S | S | M | D | M | D | F | S | S | M | D | M | D | F | S | S | M | D |
| April | M | D | F | S | S | M | D | M | D | F | S | S | M | D | M | D | F | S | S | M | D | M | D | F | S | S | M | D | M | D | |
| Mai | F | S | S | M | D | M | D | F | S | S | M | D | M | D | F | S | S | M | D | M | D | F | S | S | M | D | M | D | F | S | S |
| Juni | M | D | M | D | F | S | S | M | D | M | D | F | S | S | M | D | M | D | F | S | S | M | D | M | D | F | S | S | M | D | |
| Juli | M | D | F | S | S | M | D | M | D | F | S | S | M | D | M | D | F | S | S | M | D | M | D | F | S | S | M | D | M | D | F |
| August | S | S | M | D | M | D | F | S | S | M | D | M | D | F | S | S | M | D | M | D | F | S | S | M | D | M | D | F | S | S | M |
| September | D | M | D | F | S | S | M | D | M | D | F | S | S | M | D | M | D | F | S | S | M | D | M | D | F | S | S | M | D | M | |
| Oktober | D | F | S | S | M | D | M | D | F | S | S | M | D | M | D | F | S | S | M | D | M | D | F | S | S | M | D | M | D | F | S |
| November | S | M | D | M | D | F | S | S | M | D | M | D | F | S | S | M | D | M | D | F | S | S | M | D | M | D | F | S | S | M | |
| Dezember | D | M | D | F | S | S | M | D | M | D | F | S | S | M | D | M | D | F | S | S | M | D | M | D | F | S | S | M | D | M | D |
| 2027 | 1 | 2 | 3 | 4 | 5 | 6 | 7 | 8 | 9 | 10 | 11 | 12 | 13 | 14 | 15 | 16 | 17 | 18 | 19 | 20 | 21 | 22 | 23 | 24 | 25 | 26 | 27 | 28 | 29 | 30 | 31 |
| Januar | F | S | S | M | D | M | D | F | S | S | M | D | M | D | F | S | S | M | D | M | D | F | S | S | M | D | M | D | F | S | S |
| Februar | M | D | M | D | F | S | S | M | D | M | D | F | S | S | M | D | M | D | F | S | S | M | D | M | D | F | S | S | |||
| März | M | D | M | D | F | S | S | M | D | M | D | F | S | S | M | D | M | D | F | S | S | M | D | M | D | F | S | S | M | D | M |
| April | D | F | S | S | M | D | M | D | F | S | S | M | D | M | D | F | S | S | M | D | M | D | F | S | S | M | D | M | D | F | |
| Mai | S | S | M | D | M | D | F | S | S | M | D | M | D | F | S | S | M | D | M | D | F | S | S | M | D | M | D | F | S | S | M |
| Juni | D | M | D | F | S | S | M | D | M | D | F | S | S | M | D | M | D | F | S | S | M | D | M | D | F | S | S | M | D | M | |
| Juli | D | F | S | S | M | D | M | D | F | S | S | M | D | M | D | F | S | S | M | D | M | D | F | S | S | M | D | M | D | F | S |
| August | S | M | D | M | D | F | S | S | M | D | M | D | F | S | S | M | D | M | D | F | S | S | M | D | M | D | F | S | S | M | D |
| September | M | D | F | S | S | M | D | M | D | F | S | S | M | D | M | D | F | S | S | M | D | M | D | F | S | S | M | D | M | D | |
| Oktober | F | S | S | M | D | M | D | F | S | S | M | D | M | D | F | S | S | M | D | M | D | F | S | S | M | D | M | D | F | S | S |
| November | M | D | M | D | F | S | S | M | D | M | D | F | S | S | M | D | M | D | F | S | S | M | D | M | D | F | S | S | M | D | |
| Dezember | M | D | F | S | S | M | D | M | D | F | S | S | M | D | M | D | F | S | S | M | D | M | D | F | S | S | M | D | M | D | F |
| 2028 | 1 | 2 | 3 | 4 | 5 | 6 | 7 | 8 | 9 | 10 | 11 | 12 | 13 | 14 | 15 | 16 | 17 | 18 | 19 | 20 | 21 | 22 | 23 | 24 | 25 | 26 | 27 | 28 | 29 | 30 | 31 |
| Januar | S | S | M | D | M | D | F | S | S | M | D | M | D | F | S | S | M | D | M | D | F | S | S | M | D | M | D | F | S | S | M |
| Februar | D | M | D | F | S | S | M | D | M | D | F | S | S | M | D | M | D | F | S | S | M | D | M | D | F | S | S | M | D | ||
| März | M | D | F | S | S | M | D | M | D | F | S | S | M | D | M | D | F | S | S | M | D | M | D | F | S | S | M | D | M | D | F |
| April | S | S | M | D | M | D | F | S | S | M | D | M | D | F | S | S | M | D | M | D | F | S | S | M | D | M | D | F | S | S | |
| Mai | M | D | M | D | F | S | S | M | D | M | D | F | S | S | M | D | M | D | F | S | S | M | D | M | D | F | S | S | M | D | M |
| Juni | D | F | S | S | M | D | M | D | F | S | S | M | D | M | D | F | S | S | M | D | M | D | F | S | S | M | D | M | D | F | |
| Juli | S | S | M | D | M | D | F | S | S | M | D | M | D | F | S | S | M | D | M | D | F | S | S | M | D | M | D | F | S | S | M |
| August | D | M | D | F | S | S | M | D | M | D | F | S | S | M | D | M | D | F | S | S | M | D | M | D | F | S | S | M | D | M | D |
| September | F | S | S | M | D | M | D | F | S | S | M | D | M | D | F | S | S | M | D | M | D | F | S | S | M | D | M | D | F | S | |
| Oktober | S | M | D | M | D | F | S | S | M | D | M | D | F | S | S | M | D | M | D | F | S | S | M | D | M | D | F | S | S | M | |