Ferienhaus KK1041 in Fyrrealle 16, Lodbjerg Hede
Mitten in dem ruhigen und im Grünen liegenden Ferienhausgebiet Lodbjerg Hede, findet ihr hier im Fyrreallé 16 dieses schöne Ferienhaus. Auf einem vom Büschen und Bäumen umsäumten Rasengrundstück erwartet euch Ruhe und Entspannung - Platz gibt es hier für bis zu insgesamt 6 Personen. Für euer E-Auto ist eine Lademöglichkeit vorhanden. Es wird zum Laden ein eigenes Ladekabel/Adapter benötigt.
Gute Ausstattung für gemütliche Stunden
Hier habt ihr Platz für einen schönen erholsamen Urlaub. Die helle und freundliche Einrichtung begrüßt euch beim Betreten des Ferienhauses. Das offene Wohnkonzept gibt euch Raum für viel gemeinsame Zeit. Dieses Ferienhaus verfügt über eine moderne und energiesparende Wärmepumpe die für ein angenehmes Raumklima sorgt. Geschirrspüler und eine Waschmaschine nehmen euch die Arbeit ab, damit ihr euch noch besser erholen könnt. Der traditionelle Holzofen sorgt insbesondere an kühleren Abenden für eine wohlige Temperatur und verstärkt mit dem Knistern und Knacken der Holzscheide die Ferienhausatmosphäre.
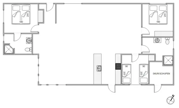
Die Aufteilung und Ausstattung des Hauses sind für insgesamt bis zu 6 Personen vorgesehen und auf den 120 Quadratmetern finden alle ausreichend Platz, sich auszubreiten und sich auch einmal zurückziehen zu können. Es gibt 3 Schlafzimmer sowie 2 Badezimmer, welche mit einer Fußbodenheizung versehen sind. Kalte Füße am Morgen sind hier also nicht vorgesehen.
Überdachte Terrasse
An warmen und sonnigen Tagen macht ihr es euch hier auf der Terrasse herrlich bequem, stellt euch den Liegestuhl an den richtigen Platz und döst ein wenig in der Sonne. Ihr habt ein schönes Rasengrundstück, wo die Kinder herrlich toben können. Die überdachte Terrasse sorgt dafür, das ihr auch bei wechselhaftem Wetter draussen sein könnt.
Schöne Lage in Lodbjerg Hede in der Fyrrealle 16
Lodbjerg Hede ist ein ruhiges Ferienhausgebiet, wo ihr entschleunigen könnt. Die Ferienhäuser liegen auf relativ großen Grundstücken und sind gut sichtgeschützt von Bäumen und Büschen umgeben. Vielleicht hattet ihr einen Besuch des nahegelegenen Strandes, welchen ihr schnell mit dem Auto, sportlich mit dem Fahrrad oder auch wandernd zu Fuß erreicht, geplant. Dann schaut doch einmal in Houvig bei dem Hofladen vorbei und kauft leckere Zutaten für ein Barbecue. Ihr könnt gleich auf der Terrasse grillen und es euch dort gemütlich machen, um gemeinsam zu speisen und den Tag ausklingen zu lassen.
Das Gebiet Lodbjerg Hede grenzt an einen Golfplatz, welcher ganzjährig bespielbar ist. Darüber hinaus gibt es einen Angelsee, wo ihr auch schön spazieren gehen könnt und Naturspielplätze, wo die Kinder sich auspowern können. Freut euch bei eurem Ferienhaus auf Fyrreallé 16 auf erholsame und entspannende Tage an der Westküste Dänemarks.
Hausbilder
Ausstattung
Allgemeines
- Anzahl Personen: 6
- Baujahr: 2020
- Grundstücksfläche: 2.119 m²
- Nichtraucher
- Wohnfläche: 120 m²
Entfernungen
- Abstand Einkauf: 1.000 m
- Abstand Wasser: 1.500 m Nordsee
Wohnbereich
- Flachbildfernseher
- Kaminofen
Schlafbereich
- Anzahl Doppelbetten: 2
- Anzahl Einzelbetten: 2
- Anzahl Schlafzimmer: 3
Küche
- Geschirrspüler
- Herd Induktion mit Backofen
- Kühlschrank
- Mikrowelle
- Tiefkühler: 100 l
Bad
- Anzahl Badezimmer: 2
- Waschmaschine
Multimedia
- Deutsches Fernsehen
- Internationales Fernsehen
- Internet
Aussenbereich
- Gartenmöbel
- Grundstück Rasengrundstück
- Grill Gasgrill
- Liegestuhl
- Sandkiste
- Sonnenschirm
- Terrasse: 1 offen
- Terrasse, überdacht
Sonstiges
- Fußbodenheizung Bad
- Hauswechseltag Samstag
- Ladestation für Elektroautos
- Wärmepumpe
Neben- und Verbrauchskosten
Die aktuellen Verbrauchskosten finden Sie im nächsten Schritt im Buchungsformular.
Raumaufteilung
Lageplan
Ferienhaus KK1041
Fyrrealle 16
Lodbjerg Hede
6950 Ringkøbing
Belegungskalender
- Reisedauer auswählen
- Anzahl Reisende auswählen
- Anreisetag im Belegungskalender anklicken
- Sie bekommen Verfügbarkeit und Preis angezeigt
| 2026 | 1 | 2 | 3 | 4 | 5 | 6 | 7 | 8 | 9 | 10 | 11 | 12 | 13 | 14 | 15 | 16 | 17 | 18 | 19 | 20 | 21 | 22 | 23 | 24 | 25 | 26 | 27 | 28 | 29 | 30 | 31 |
| Mai | F | S | S | M | D | M | D | F | S | S | M | D | M | D | F | S | S | M | D | M | D | F | S | S | M | D | M | D | F | S | S |
| Juni | M | D | M | D | F | S | S | M | D | M | D | F | S | S | M | D | M | D | F | S | S | M | D | M | D | F | S | S | M | D | |
| Juli | M | D | F | S | S | M | D | M | D | F | S | S | M | D | M | D | F | S | S | M | D | M | D | F | S | S | M | D | M | D | F |
| August | S | S | M | D | M | D | F | S | S | M | D | M | D | F | S | S | M | D | M | D | F | S | S | M | D | M | D | F | S | S | M |
| September | D | M | D | F | S | S | M | D | M | D | F | S | S | M | D | M | D | F | S | S | M | D | M | D | F | S | S | M | D | M | |
| Oktober | D | F | S | S | M | D | M | D | F | S | S | M | D | M | D | F | S | S | M | D | M | D | F | S | S | M | D | M | D | F | S |
| November | S | M | D | M | D | F | S | S | M | D | M | D | F | S | S | M | D | M | D | F | S | S | M | D | M | D | F | S | S | M | |
| Dezember | D | M | D | F | S | S | M | D | M | D | F | S | S | M | D | M | D | F | S | S | M | D | M | D | F | S | S | M | D | M | D |
| 2027 | 1 | 2 | 3 | 4 | 5 | 6 | 7 | 8 | 9 | 10 | 11 | 12 | 13 | 14 | 15 | 16 | 17 | 18 | 19 | 20 | 21 | 22 | 23 | 24 | 25 | 26 | 27 | 28 | 29 | 30 | 31 |
| Januar | F | S | S | M | D | M | D | F | S | S | M | D | M | D | F | S | S | M | D | M | D | F | S | S | M | D | M | D | F | S | S |
| Februar | M | D | M | D | F | S | S | M | D | M | D | F | S | S | M | D | M | D | F | S | S | M | D | M | D | F | S | S | |||
| März | M | D | M | D | F | S | S | M | D | M | D | F | S | S | M | D | M | D | F | S | S | M | D | M | D | F | S | S | M | D | M |
| April | D | F | S | S | M | D | M | D | F | S | S | M | D | M | D | F | S | S | M | D | M | D | F | S | S | M | D | M | D | F | |
| Mai | S | S | M | D | M | D | F | S | S | M | D | M | D | F | S | S | M | D | M | D | F | S | S | M | D | M | D | F | S | S | M |
| Juni | D | M | D | F | S | S | M | D | M | D | F | S | S | M | D | M | D | F | S | S | M | D | M | D | F | S | S | M | D | M | |
| Juli | D | F | S | S | M | D | M | D | F | S | S | M | D | M | D | F | S | S | M | D | M | D | F | S | S | M | D | M | D | F | S |
| August | S | M | D | M | D | F | S | S | M | D | M | D | F | S | S | M | D | M | D | F | S | S | M | D | M | D | F | S | S | M | D |
| September | M | D | F | S | S | M | D | M | D | F | S | S | M | D | M | D | F | S | S | M | D | M | D | F | S | S | M | D | M | D | |
| Oktober | F | S | S | M | D | M | D | F | S | S | M | D | M | D | F | S | S | M | D | M | D | F | S | S | M | D | M | D | F | S | S |
| November | M | D | M | D | F | S | S | M | D | M | D | F | S | S | M | D | M | D | F | S | S | M | D | M | D | F | S | S | M | D | |
| Dezember | M | D | F | S | S | M | D | M | D | F | S | S | M | D | M | D | F | S | S | M | D | M | D | F | S | S | M | D | M | D | F |
| 2028 | 1 | 2 | 3 | 4 | 5 | 6 | 7 | 8 | 9 | 10 | 11 | 12 | 13 | 14 | 15 | 16 | 17 | 18 | 19 | 20 | 21 | 22 | 23 | 24 | 25 | 26 | 27 | 28 | 29 | 30 | 31 |
| Januar | S | S | M | D | M | D | F | S | S | M | D | M | D | F | S | S | M | D | M | D | F | S | S | M | D | M | D | F | S | S | M |
| Februar | D | M | D | F | S | S | M | D | M | D | F | S | S | M | D | M | D | F | S | S | M | D | M | D | F | S | S | M | D | ||
| März | M | D | F | S | S | M | D | M | D | F | S | S | M | D | M | D | F | S | S | M | D | M | D | F | S | S | M | D | M | D | F |
| April | S | S | M | D | M | D | F | S | S | M | D | M | D | F | S | S | M | D | M | D | F | S | S | M | D | M | D | F | S | S | |
| Mai | M | D | M | D | F | S | S | M | D | M | D | F | S | S | M | D | M | D | F | S | S | M | D | M | D | F | S | S | M | D | M |
| Juni | D | F | S | S | M | D | M | D | F | S | S | M | D | M | D | F | S | S | M | D | M | D | F | S | S | M | D | M | D | F | |
| Juli | S | S | M | D | M | D | F | S | S | M | D | M | D | F | S | S | M | D | M | D | F | S | S | M | D | M | D | F | S | S | M |
| August | D | M | D | F | S | S | M | D | M | D | F | S | S | M | D | M | D | F | S | S | M | D | M | D | F | S | S | M | D | M | D |
| September | F | S | S | M | D | M | D | F | S | S | M | D | M | D | F | S | S | M | D | M | D | F | S | S | M | D | M | D | F | S | |
| Oktober | S | M | D | M | D | F | S | S | M | D | M | D | F | S | S | M | D | M | D | F | S | S | M | D | M | D | F | S | S | M | D |
| November | M | D | F | S | S | M | D | M | D | F | S | S | M | D | M | D | F | S | S | M | D | M | D | F | S | S | M | D | M | D | |
| Dezember | F | S | S | M | D | M | D | F | S | S | M | D | M | D | F | S | S | M | D | M | D | F | S | S | M | D | M | D | F | S | S |
| 2029 | 1 | 2 | 3 | 4 | 5 | 6 | 7 | 8 | 9 | 10 | 11 | 12 | 13 | 14 | 15 | 16 | 17 | 18 | 19 | 20 | 21 | 22 | 23 | 24 | 25 | 26 | 27 | 28 | 29 | 30 | 31 |
| Januar | M | D | M | D | F | S | S | M | D | M | D | F | S | S | M | D | M | D | F | S | |||||||||||