Ferienhaus LK1989 in Furreby Kirkevej 96, Løkken
Freu dich auf entspannte Urlaubstage in diesem hellen, gut eingerichteten Ferienhaus, das sich auf einem großen, sonnigen Grundstück mit schönen Terrassen befindet! Du wohnst nah an den rauschenden Nordseewellen und erreichst nach kurzer Fahrt den stimmungsvollen und beliebten Badeort Løkken.
Willkommen in deinem Ferienhaus
Dank seines hellen, nordischen Einrichtungsstils verwöhnt dich dein Ferienhaus mit einer warmen, einladenden Wohnatmosphäre. Bei diesem Mietobjekt steht definitiv das Beisammensein mit den Lieben im Mittelpunkt. In klassischer Ferienhausmanier fügt sich die Küche offen in den stimmungsvollen Wohnraum ein. Aufgrund der offenen Wohnlösung genießt du selbst während der Zubereitung der Mahlzeiten die Nähe deiner Lieben, die beispielsweise am Esstisch Gesellschaftsspiele spielen. Nach einem gemeinsamen Abendessen macht ihr es euch in der Polstersitzgruppe vor dem romantisch knisternden Kaminofen gemütlich. Tagsüber genießt du dank der großen Fensterpartien den Ausblick auf die hübsche Umgebung und gelangst vom Wohnraum aus direkt auf die Terrasse. Mit zwei ansprechenden Schlafräumen und einem Badezimmer beherbergt dein Haus bis zu fünf Personen.
Genieße das Leben im Freien
Auf den gemütlichen Terrassen genießt du neben viel Sonne das üppige Grün deines Gartens. Mit einer Grundstücksfläche von 1.416 m² bietet sich deinen Kindern viel Platz zum Ballspielen und Umhertollen. Dein Naturgrundstück wirkt wie eine friedvolle Oase inmitten der Küstenlandschaft. Dank einer Entfernung von nur 160 Metern zur Küste genießt du viel frische, salzige Seeluft, die eine wahre Wohltat für deinen Körper ist. Gemütliche Nachmittage verbringst du mit einem spannenden Buch auf einem Liegestuhl. Zwischendurch blickst du den am blauen Himmel dahinziehenden weißen Wolken nach. Erlebnisreiche, lange Urlaubstage krönst du mit einem gemütlichen Abendessen im Freien - schöner geht es kaum.
Entdecke deine Umgebung
Dein Ferienhaus liegt gut platziert in Furreby - einem friedvollen, populären Ferienhausgebiet unmittelbar nördlich von Løkken. Die Natur ringsum ist einzigartig. Nicht nur der schöne Strand bietet bei jeder Art von Wetter einen beeindruckenden Anblick. Unabhängig von Wetter und Jahreszeit ist es ein herrliches Erlebnis, zu langen Spaziergängen entlang der Küste aufzubrechen. Zudem genießt du mit deinen Lieben beste Möglichkeiten, im klaren frischen Wasser der Nordsee zu baden und zu plantschen. Der Badeort Løkken besticht insbesondere in den Sommermonaten mit einer lebendigen Urlaubsstimmung, schönen Geschäften und ansprechenden Lokalitäten. Für einen Ausflug bieten sich die imposante Wanderdüne Rubjerg Knude und der gleichnamige berühmte Leuchtturm nahe Lønstrup an. Spaß und Abwechslung verspricht der Family Farm Fun Park.
Denk daran, dass du bei Feriepartner Løkken jederzeit Bollerwagen, Hochstühle und Kinderreisebetten leihen kannst. Diese holst du direkt bei uns im Büro ab und bringst sie wieder, wenn du deine Heimreise antrittst.
Hausbilder
Ausstattung
Allgemeines
- Anzahl Haustiere maximal: 1
- Anzahl Personen: 5
- Baujahr: 1968
- Grundstücksfläche: 1.416 m²
- Haustiere: Nur Hunde erlaubt
- Inkl. Endreinigung
- Nichtraucher
- Renovierung: 2026
- Wohnfläche: 76 m²
Entfernungen
- Abstand Einkauf: 2.070 m
- Abstand Golfplatz: 3.000 m
- Abstand Restaurant: 1.690 m
- Abstand Strand: 160 m
Wohnbereich
- Kaminofen
Schlafbereich
- Anzahl Doppelbetten: 2 1x180x200
- Anzahl Einzelbetten: 1 1x90x200
Küche
- Dunstabzug
- Geschirrspüler
- Herd
- Kaffeemaschine
- Kühlschrank l mit Gefrierfach, 213/94L
- Mikrowelle
- Wasserkocher
Bad
- Anzahl Duschen: 1
- Anzahl Toiletten: 1
- Trockner
- Waschmaschine
Multimedia
- Deutsches Fernsehen
- Internationales Fernsehen Dänisches Fernsehen
- Internet Kostenloses Wi-Fi - Mehr als 20 Mbit
Aussenbereich
- Gartenmöbel
- Grill Gasgrill
- Liegestuhl
- Terrasse: 1 m²
Sonstiges
- Bei diesem Haus inkl. Wasser
- Bügelbrett
- Bügeleisen
- Ladestation für Elektroautos Ladegerät für Elektroauto verfügbar (Typ 2 Stecker, inkl. Kabel)
- Wärmepumpe Mit Kühlfunktion
- Sonstiges Chromecast
Neben- und Verbrauchskosten
Die aktuellen Verbrauchskosten finden Sie im nächsten Schritt im Buchungsformular.
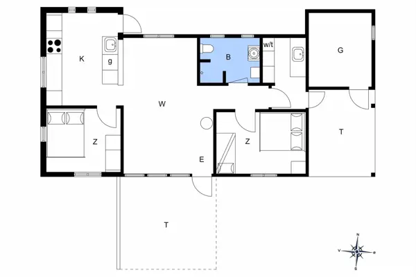
Raumaufteilung
Lageplan
Ferienhaus LK1989
Furreby Kirkevej 96
Furreby
9480 Løkken
Belegungskalender
- Reisedauer auswählen
- Anzahl Reisende auswählen
- Anreisetag im Belegungskalender anklicken
- Sie bekommen Verfügbarkeit und Preis angezeigt
| 2026 | 1 | 2 | 3 | 4 | 5 | 6 | 7 | 8 | 9 | 10 | 11 | 12 | 13 | 14 | 15 | 16 | 17 | 18 | 19 | 20 | 21 | 22 | 23 | 24 | 25 | 26 | 27 | 28 | 29 | 30 | 31 |
| Mai | F | S | S | M | D | M | D | F | S | S | M | D | M | D | F | S | S | M | D | M | D | F | S | S | M | D | M | D | F | S | S |
| Juni | M | D | M | D | F | S | S | M | D | M | D | F | S | S | M | D | M | D | F | S | S | M | D | M | D | F | S | S | M | D | |
| Juli | M | D | F | S | S | M | D | M | D | F | S | S | M | D | M | D | F | S | S | M | D | M | D | F | S | S | M | D | M | D | F |
| August | S | S | M | D | M | D | F | S | S | M | D | M | D | F | S | S | M | D | M | D | F | S | S | M | D | M | D | F | S | S | M |
| September | D | M | D | F | S | S | M | D | M | D | F | S | S | M | D | M | D | F | S | S | M | D | M | D | F | S | S | M | D | M | |
| Oktober | D | F | S | S | M | D | M | D | F | S | S | M | D | M | D | F | S | S | M | D | M | D | F | S | S | M | D | M | D | F | S |
| November | S | M | D | M | D | F | S | S | M | D | M | D | F | S | S | M | D | M | D | F | S | S | M | D | M | D | F | S | S | M | |
| Dezember | D | M | D | F | S | S | M | D | M | D | F | S | S | M | D | M | D | F | S | S | M | D | M | D | F | S | S | M | D | M | D |
| 2027 | 1 | 2 | 3 | 4 | 5 | 6 | 7 | 8 | 9 | 10 | 11 | 12 | 13 | 14 | 15 | 16 | 17 | 18 | 19 | 20 | 21 | 22 | 23 | 24 | 25 | 26 | 27 | 28 | 29 | 30 | 31 |
| Januar | F | S | S | M | D | M | D | F | S | S | M | D | M | D | F | S | S | M | D | M | D | F | S | S | M | D | M | D | F | S | S |
| Februar | M | D | M | D | F | S | S | M | D | M | D | F | S | S | M | D | M | D | F | S | S | M | D | M | D | F | S | S | |||
| März | M | D | M | D | F | S | S | M | D | M | D | F | S | S | M | D | M | D | F | S | S | M | D | M | D | F | S | S | M | D | M |
| April | D | F | S | S | M | D | M | D | F | S | S | M | D | M | D | F | S | S | M | D | M | D | F | S | S | M | D | M | D | F | |
| Mai | S | S | M | D | M | D | F | S | S | M | D | M | D | F | S | S | M | D | M | D | F | S | S | M | D | M | D | F | S | S | M |
| Juni | D | M | D | F | S | S | M | D | M | D | F | S | S | M | D | M | D | F | S | S | M | D | M | D | F | S | S | M | D | M | |
| Juli | D | F | S | S | M | D | M | D | F | S | S | M | D | M | D | F | S | S | M | D | M | D | F | S | S | M | D | M | D | F | S |
| August | S | M | D | M | D | F | S | S | M | D | M | D | F | S | S | M | D | M | D | F | S | S | M | D | M | D | F | S | S | M | D |
| September | M | D | F | S | S | M | D | M | D | F | S | S | M | D | M | D | F | S | S | M | D | M | D | F | S | S | M | D | M | D | |
| Oktober | F | S | S | M | D | M | D | F | S | S | M | D | M | D | F | S | S | M | D | M | D | F | S | S | M | D | M | D | F | S | S |
| November | M | D | M | D | F | S | S | M | D | M | D | F | S | S | M | D | M | D | F | S | S | M | D | M | D | F | S | S | M | D | |
| Dezember | M | D | F | S | S | M | D | M | D | F | S | S | M | D | M | D | F | S | S | M | D | M | D | F | S | S | M | D | M | D | F |
| 2028 | 1 | 2 | 3 | 4 | 5 | 6 | 7 | 8 | 9 | 10 | 11 | 12 | 13 | 14 | 15 | 16 | 17 | 18 | 19 | 20 | 21 | 22 | 23 | 24 | 25 | 26 | 27 | 28 | 29 | 30 | 31 |
| Januar | S | S | M | D | M | D | F | S | S | M | D | M | |||||||||||||||||||
FAQ
Wie hoch sind die Nebenkosten?
Die Kosten für Strom, Wasser, (bei einigen Häusern Gas) werden nach tagesaktuellen Preisen abgerechnet und hängen von vielen verschiedenen Faktoren ab, wie zum Beispiel Anzahl Personen, Größe des Hauses oder Ausstattung. In der Regel lässt sich sagen, dass ein Standardhaus ohne Pool, Whirlpool und Sauna im Sommer ca. 5 kWh pro Person pro Tag verbraucht. Im Winter gerne bei 10 kWh und darüber. Bei Poolhäusern mit Whirlpool und Sauna liegt der Wert im Sommer bei ca. 20 kWh und im Winter ca. bei 40 kWh. Auch hier variieren die Preise stark von Größe des Pools, Ausstattung, Größe des Hauses, Modell des Whirlpools und individuellem Verbrauch im Haus. Der Wasserverbrauch variiert ebenfalls stark und kann bei ca. 0,1-0,2 m³ pro Person pro Tag in einem Standardhaus liegen und bei Poolhäusern bei ca. 0,4-0,5 m³. Wenn eine Kaution bei der Buchung angegeben ist, ist diese angepasst an den ungefähren Durchschnittsverbrauch an Nebenkosten im Haus.
Alle Angaben ohne Gewähr und dienen lediglich als Richtwert und nicht als tatsächliche Prognose.
Kann ich das Haus reservieren?
Reservierungen sind in der Regel nicht möglich. In einigen Fällen ist es uns jedoch möglich, Reservierungen zu erstellen. Fragen Sie gerne direkt bei uns an, ob für dieses Haus eine Reservierung möglich ist.
Wie bekomme ich den Schlüssel für das Ferienhaus?
Mittlerweile sind bei fast allen Feriepartner Ferienhäusern Schlüsselboxen an den Häusern angebracht. Über den “Mein Feriepartner”- Link in der Buchungsbestätigung erhalten Sie Zugang zu Ihrer Buchung und können im Fenster der Schlüsselübergabe 48 Stunden vor Anreise einen Zugangscode einsehen, über welchen Sie den Schlüssel am Haus erhalten.
Ab wann ist das Haus bezugsbereit?
Die Ferienhäuser werden zwischen 10 Uhr und 16 Uhr gereinigt und sind spätestens ab 16 Uhr bezugsbereit. Wann Ihr Ferienhaus am Anreisetag gereinigt wird, entscheidet das Büro vor Ort kurz vorher, in Absprache mit dem Servicepersonal und der effektivsten Route für die Servicekräfte. Sobald Ihr Ferienhaus bezugsbereit ist, erhalten Sie, sofern Ihre Mobilnummer korrekt angegeben ist, eine SMS von Feriepartner mit dem Bescheid und allen wichtigen Informationen zum Beziehen Ihres Ferienhauses.
Wie läuft die Bezahlung ab?
Nach Aufgabe der Buchung und Bestätigung seitens Feriepartner wird die erste Rate in Höhe von 25 % des Mietpreises auf Ihrem Mietvertrag sofort fällig. Sie können die Raten und Beträge im Mietvertrag oder über “Mein Feriepartner” einsehen. Bis 70 Tage vor Anreise ist die Frist für den noch offenen Restbetrag Ihrer Buchung. Sind weniger als 70 Tage bis zur Anreise, wird der gesamte Betrag in einer Rate fällig.
Wie sind die Umbuchungs- / Stornierungsbedingungen?
Bei Feriepartner ist eine Reiserücktrittsversicherung immer im Mietpreis inklusive enthalten. Sie erhalten Informationen zu den Bedingungen nach Abschluss der Buchung oder bei der Versicherungsgesellschaft Tryg A/S. Bei Stornierungen ohne den Gebrauch der Reiserücktrittsversicherung werden bis 70 Tage vor Anreise 25 % des Mietpreises fällig. Dies entspricht der ersten Rate. Ab 70 Tagen vor Anreise bis zum Anreisetag werden 80 % fällig, ab dem Anreisetag 100 %. Umbuchungen können bei Feriepartner gegen eine Gebühr von 70 € bis 70 Tage vor Anreise vorgenommen werden, allerdings nur im gleichen Kalenderjahr.
Wann erhalte ich meine Nebenkostenabrechnung?
Die Abrechnung geschieht, sofern Feriepartner alle Informationen korrekt vorliegen, innerhalb von 14 Tagen nach Abreise. Denken Sie daran Ihre IBAN und BIC bei Feriepartner zu hinterlegen, sofern Sie per Banküberweisung gezahlt haben, damit Feriepartner einen eventuellen Restbetrag auf Ihr Konto zurück überweisen kann.
Jugendgruppen unter 25 Jahren?
Bei Feriepartner gilt eine Jugendgruppe ab 3 Personen und bis 25 Jahre der einzelnen Mitreisenden. Zwei Personen unter 25 Jahre gelten i. d. R. nicht als Jugendgruppe. In speziellen Fällen können wir individuell für Sie anfragen.